New-Yorker stemning i baghus – ro. charme og historie midt i København
Træd ind i en skjult oase bag det stemningsfulde Gråbrødre Torv – en unik New-Yorker lejlighed gemt i et fredeligt baghus, hvor roen og historien smelter sammen i et atmosfærefyldt rum, du ikke finder magen til. Her, i en højloftet lejlighed med rå bjælker og masser af sjæl, finder du en sjælden boligperle.
Tilbage i 1865 blev lokalerne brugt som chokoladefabrik af de legendariske Cloetta-brødre – og selvom duften af mælkechokolade for længst har forladt rummet, hænger følelsen af noget helt særligt stadig i luften.
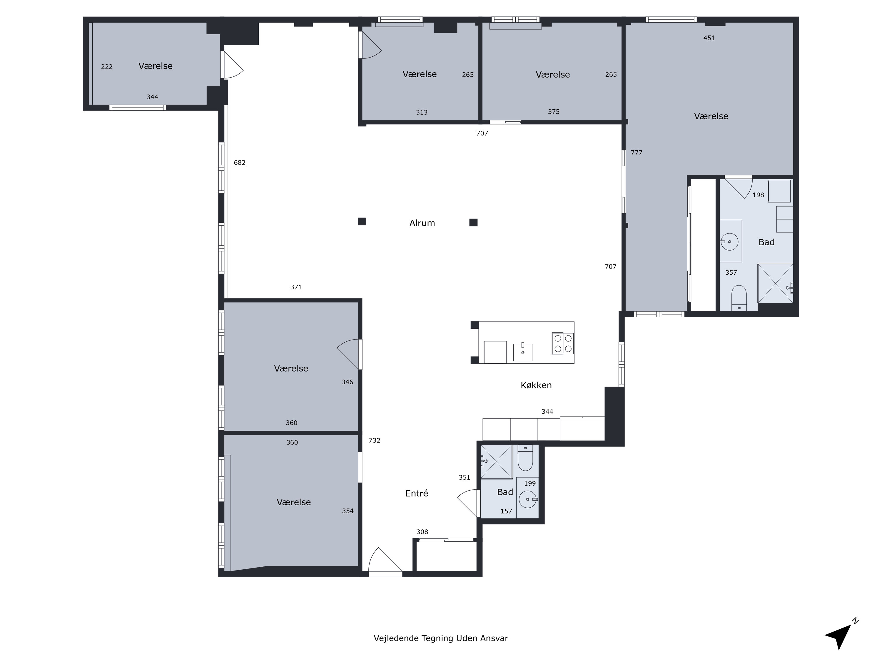
Lejligheden emmer af karakter og kant. Det store, åbne rum giver masser af lys og luft, og planløsningen kan tilpasses efter dine behov – de nuværende seks soveværelser er skabt med lette gipsvægge, som nemt kan fjernes og give plads til ét stort og åbent alrum.
Ejendommen er i en spændende udviklingsfase: Der arbejdes på at etablere altaner, gårdmiljøet fornyes med brosten og stilfulde affaldsløsninger/serumskure, og trappeopgangen står foran en nænsom renovering. Desuden er taget på forhus renoveret og baghuset har fået udskiftet taget.
Det her er ikke bare en lejlighed – det er en oplevelse. Et sted, hvor moderne komfort og historisk sjæl mødes i hjertet af København.
Skal opleves – kontakt os for en personlig fremvisning.
Økonomisk overblik
Skal du også sælge?
Bestil salgsvurdering
Kontakt
Thomas Jakobsen
Om kommunen
INDBYGGERE
GRUNDSKYLD
KOMMUNESKAT
SKOLER
BØRNEPASNING
Hvor langt er der til nærmeste?
Se hvor lang tid der er mellem denne bolig og en anden adresse