Smukt svensk sommerhus - klart til færdiggørelse indvendig
Flot sommerhusprojekt som overtages af køber til indvendig færdiggørelse.
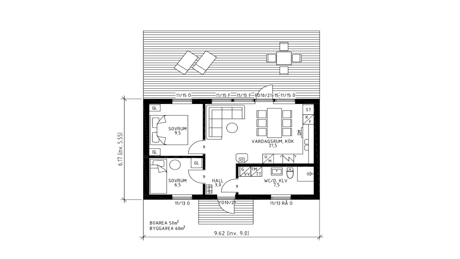
Er du fiks på fingrene og kan tømre lidt selv? Så er dette smukke nye sommerhus lige noget for dig. På en stor flot naturgrund på hele 6.185m2 med store gamle træer og med en ugeneret og privat beliggenhed på en lukket vej, er dette nye svenske skalhus på 60 m2 opført. Sommerhuset står flot udvendigt og klar til at blive færdigbygget indvendigt. Køber overtager byggetilladelsen og skal stå for færdigmelding af byggeriet. Sommerhuset er opført i 2023 og vil komme til at indeholde soveværelse, værelse, badeværelse, stue / køkken i ét med udgang. Ved opførelse af terrasse, vil du få den skønneste sydvendte terrasse. Her er muligheden for at få et dejligt nyt sommerhus til en rimelig pris og på en dejlig stor naturgrund. Huset er beliggende i cykelafstand til Vesterø Havn med fantastisk badestrand, færge- og lystbådehavn, indkøb, restauranter, fiskeforretning mv.
Følgende materialer medfølger projektet: reglar til alle indervægge, loftslægter, isolering til installationsfeltet 45 mm samt isolering til skillevægge, gipsbeklædning til alle vægge og loft samt inspektionslem til loft. Der foreligger tilbud fra elektriker på færdiggørelse af el på kr. 67.325,00. Varmepumpe~ kr. 21.200,00. En komplet VVS installation med vandvarmer, toilet , brusearmatur, håndvask , køkkenvask, blandingsbatterier, sivedræn med al arbejdsløn og materialer koster kr. 108.125,00, Heraf er der betalt kr. 18.750,00 á conto, hvor restprisen derfor udgør kr. 89.375,00. Tilslutningsafgifter til el og vand er betalt. Overslag til indvendig færdiggørelse er under udarbejdelse. Tilstandsrapport og Elrapport vil ikke blive udarbejdet og derfor vil det heller ikke være muligt at tegne ejerskifteforsikring på ejendommen.
Der er ligeledes mulighed for at bygge anneks, udhus, garage mv., skulle man ønske dette. De nærmere byggetekniske bestemmelser fremgår af lokalplan 0.3 for Læsøs Sommerhusområder. Ved færdigmeldt byggeri, så tilbyder Læsø Kommune mulighed for Ø-kort, der giver adgang til rabatter på færgebilletten. Se mere info herom på Læsø Færgens hjemmeside.
Har du spørgsmål eller ønsker du en fremvisning er du velkommen til at kontakte os på telefonnummer på 9665 8080.
Økonomisk overblik
Skal du også sælge?
Bestil salgsvurdering
Om kommunen
INDBYGGERE
GRUNDSKYLD
KOMMUNESKAT
SKOLER
BØRNEPASNING
Hvor langt er der til nærmeste?
Se hvor lang tid der er mellem denne bolig og en anden adresse