Naturskøn ejendom med plads til den store familie eller jer som ønsker plads.
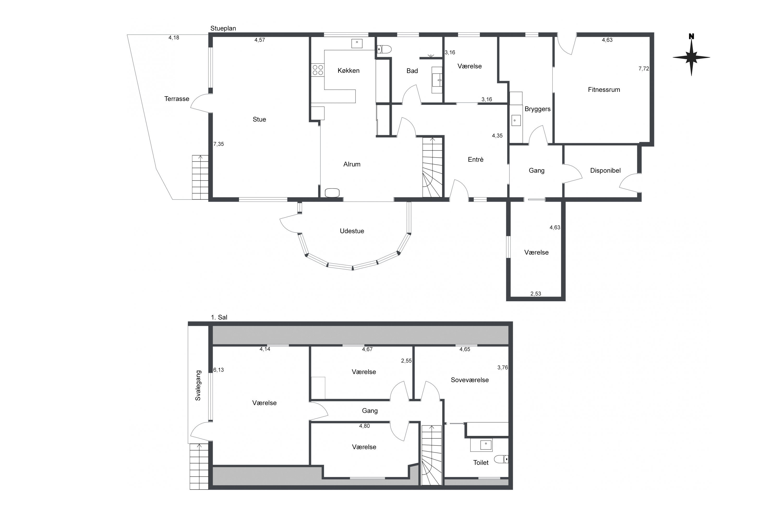
Skarpholtvej 19, 9750 Østervrå er en rummelig landejendom beliggende i naturskønne omgivelser nær Østervrå. Ejendommen kombinerer historisk charme med moderne faciliteter og tilbyder både bolig med bla. 7 værelser - stor stue - 2 toiletter samt mulighed for heste hold.
Boligen byder på dejlig lys entre med 30 x 30 fliser samt gulvvarme, herfra har man adgang til hele huset samt 1 sal. Man finder bla. et lille værelse med gulvtæppe, Bryggers med grå klinker samt vaske arrangement og en vaskesøjle til vaskemaskine & tørretumbler. Et stort værelse med udgang til haven, bliver idag brugt som træningsrum.
Yderligere finder man et værelse mere i stueplan. Et stort hvidt badeværelse med gulvvarme samt fliser fra gulv til loft samt murret brus, hvidt arrangement med terrazzo bordplade, og toilet med bidet.
Køkken, alrum samt havestuen med den mest vidunderlige udsigt har gulvvarme under de grålige klinker derudover er der udgang til haven. Selve køkkenet er et u formet med hvide låger og mørk bordplade her kan man nyde varmen fra den "nye" (2024) brændeovn mens man laver mad eller hygger sig ved barstolene. Køkkenet er i forbindelse med stuen hvor der kommer det fantastisk lysindfald ind fra vest af det store glasparti med udgang til den vestlige vendt terrasse.
Både køkkenet, stuen, badeværelset samt den lille gang er lofthøjen mindre (195 cm.) end i resten af huset, da der er charmerende synlige bjælker, som er med til at gøre det til rigtigt landlig hygge idyl, og laveste højde i dørkarm er 184 cm.
1 sal byder på 4 værelser - et med udgang til overdækket svalegang også her med fantastik udsigt samt nedgang til terrassen - et med en skabsvæg - Et med indgang til eget toilet med hvidt arrangement - alle værelser er med lyst gulvtæppe.
I Udhuset finder man en stor garage med el-port samt god plads til div.- et fyrrum med træpillefyr - et rum som i dag bliver brugt til smedearbejde, derudover er der 3 hestebokse, så lad fantasien få frit løb her, der er mulighed for lidt af hvert på de godt 3 Ha. jord hvor største dellen er beplantet med træer, som gør ejendommen virkelig unik.
Ejendommen er beliggende i landlige omgivelser med eng, skov græsningsarealer og med kort afstand til Østervrå, en driftig handelsby med supermarkeder, skoler og daginstitutioner. Området er præget af naturskønne landskaber, hvilket giver en fredelig atmosfære og mulighed for et aktivt friluftsliv
Økonomisk overblik
Skal du også sælge?
Bestil salgsvurdering
Kontakt
Pia Thestrup
Om kommunen
INDBYGGERE
GRUNDSKYLD
KOMMUNESKAT
SKOLER
BØRNEPASNING
Hvor langt er der til nærmeste?
Se hvor lang tid der er mellem denne bolig og en anden adresse