En sjælden perle i hjertet af Dalum
Midt i det eftertragtede og stemningsfulde Dalum finder du denne eksklusive perle – et enderækkehus, hvor kvalitet, ro og beliggenhed smelter sammen i perfekt harmoni. Her bor du i et velordnet og veldrevet miljø, omgivet af grønne omgivelser og med alt, hvad hjertet kan begære, lige uden for døren.
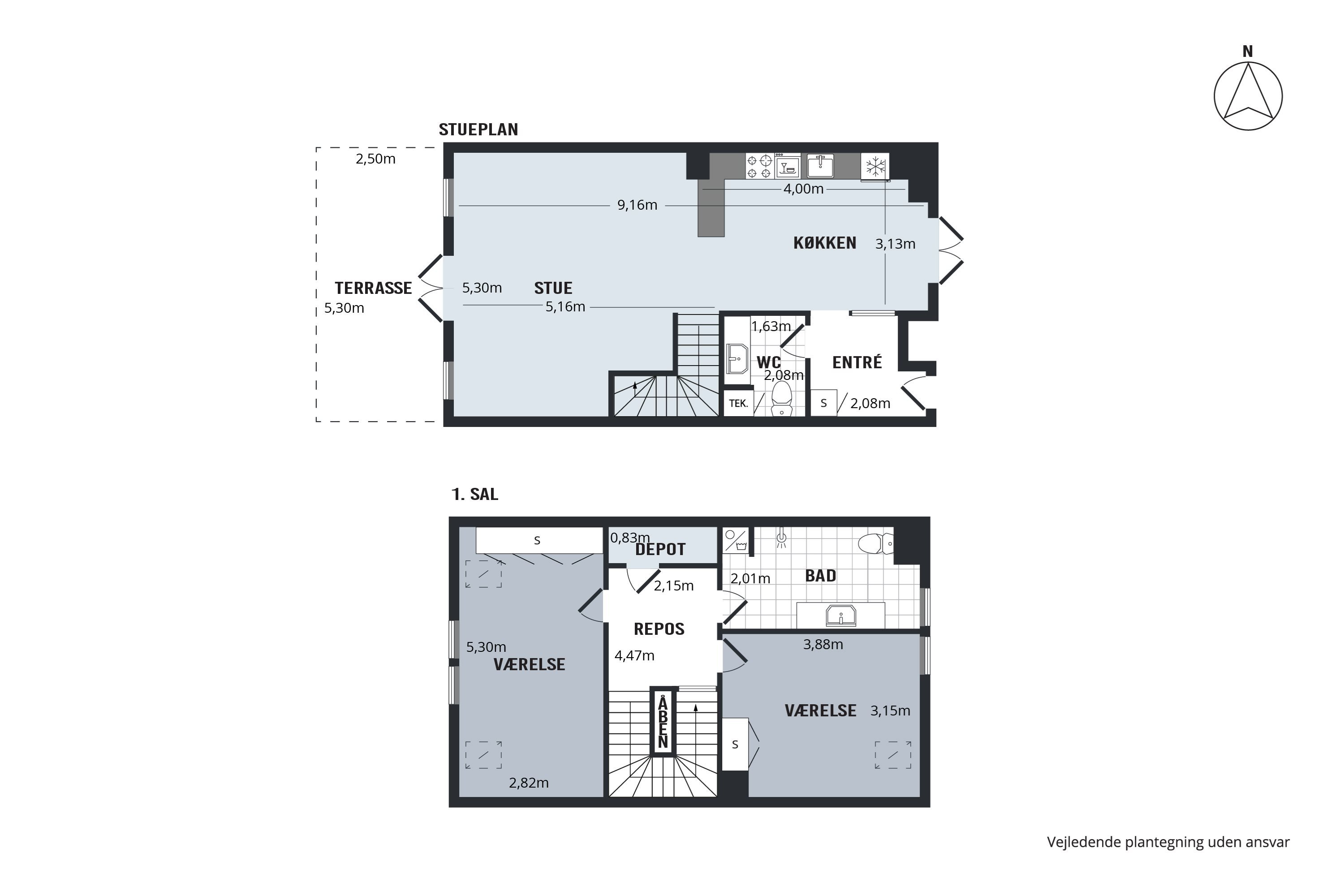
Boligen emmer af velvære og omtanke. De lyse, åbne miljøer byder velkommen med en naturlig varme, der forstærkes af gulvvarme i begge plan – en detalje, der gør hverdagen ekstra behagelig. I stueplan finder du et praktisk gæstetoilet samt et indbydende køkken-alrum med direkte adgang til de to solrige terrasser – perfekte rammer for både morgenkaffen i fred og ro og hyggelige aftener under åben himmel.
Her er intet overladt til tilfældighederne: alt fremstår velholdt, funktionelt og gennemført. Loftet rummer desuden omkring 35 m² isoleret opbevaringsplads med fuld ståhøjde – et sjældent og yderst brugbart supplement, der giver plads til både orden og overskud.
Beliggenheden er ganske unik. Fra Rikkeshave har du kort afstand til Fruens Bøge skov, hvor naturens ro og byens puls mødes i smuk balance. Indkøb, caféer, skoler og offentlig transport ligger blot få skridt væk – alt er inden for rækkevidde. Parkering er naturligvis muligt, og området er præget af tryghed og ordnede forhold.
Dette er ikke blot et hjem – det er et livssted for den kvalitetsbevidste, der ønsker både komfort, æstetik og beliggenhed i særklasse.
Økonomisk overblik
Skal du også sælge?
Bestil salgsvurdering
Kontakt
Frederik Mazanti Karnvad
Om kommunen
INDBYGGERE
GRUNDSKYLD
KOMMUNESKAT
SKOLER
BØRNEPASNING
Hvor langt er der til nærmeste?
Se hvor lang tid der er mellem denne bolig og en anden adresse