Hyggeligt byhus centralt beliggende i Middelfart.
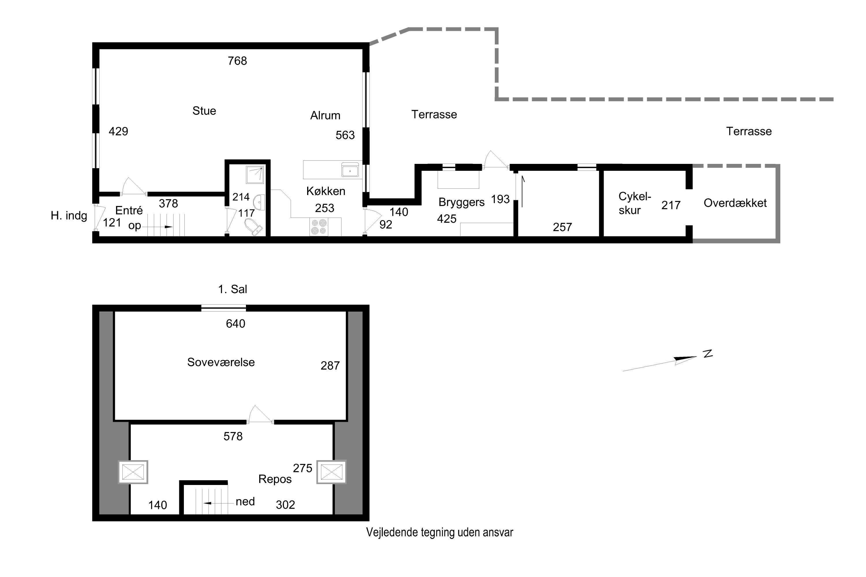
Hyggeligt byhus centralt beliggende i Middelfart.Huset ligger i gåafstand til alle byens mange faciliteter, herunder havnen, Kulturøen, gågaden de mange sportsfaciliteter og Hindsgavl. Indenfor få minutters gang finder du også mange gode indkøbsmuligheder, herunder både dagligvarebutikker og specialbutikker, ligesom du har caféer og restauranter helt tæt på.Skal du længere væk, er vi her kun 10 minutters gang fra Middelfart Station og 5 minutters kørsel fra motorvejen.Huset opvarmes med fjernvarme og har et fint energimærke C - beregnet årligt varmeforbrug på kun 7.700 kroner.Når du træder ind huset mødes du først af en dejlig lys entré med trappe til 1. salen. Bagved trappen finder du husets badeværelse, der i 2022 blev renoveret. Her blev blandt andet bruseniche og vask erstattet med nyt og væggene blev pudset.I stueplan finder du en stor lys kombineret opholds- og spisestue i åben forbindelse med det lyse køkken. I baghuset er der bryggers samt bagindgang med udgang til terrassen. Der er herudover et disponibelt rum samt et overdækket areal, der evt. kan bruges som ekstra terrasse, cykelskur eller redskabsrum.På 1. salen er der et stort lyst repos samt et stort soveværelse med god skabsplads. Der er kommet nye skråvinduer i 2025. Fra siden af huset er der adgang til haven og den solrige terrasse. Herfra er det nemt at komme om med cykler eller andet.Haven, der har god plads til flere terrasser, byder på masser af sol, hyggelige kroge og meget nem vedligeholdelse.Hvis dette skulle have vakt interesse, så kontakt os endelig for at høre mere.
Økonomisk overblik
Skal du også sælge?
Bestil salgsvurdering
Kontakt
Jan Bendorf
Om kommunen
INDBYGGERE
GRUNDSKYLD
KOMMUNESKAT
SKOLER
BØRNEPASNING
Hvor langt er der til nærmeste?
Se hvor lang tid der er mellem denne bolig og en anden adresse