Charmende byhus – centralt i Rudkøbing
Charmende byhus lige ved havnefronten i Rudkøbing.
Denne karismatiske ejendom er beliggende i det skønne Rudkøbing på Langeland. Der er fra ejendommen få minutters gang til både havnen og bymidten.
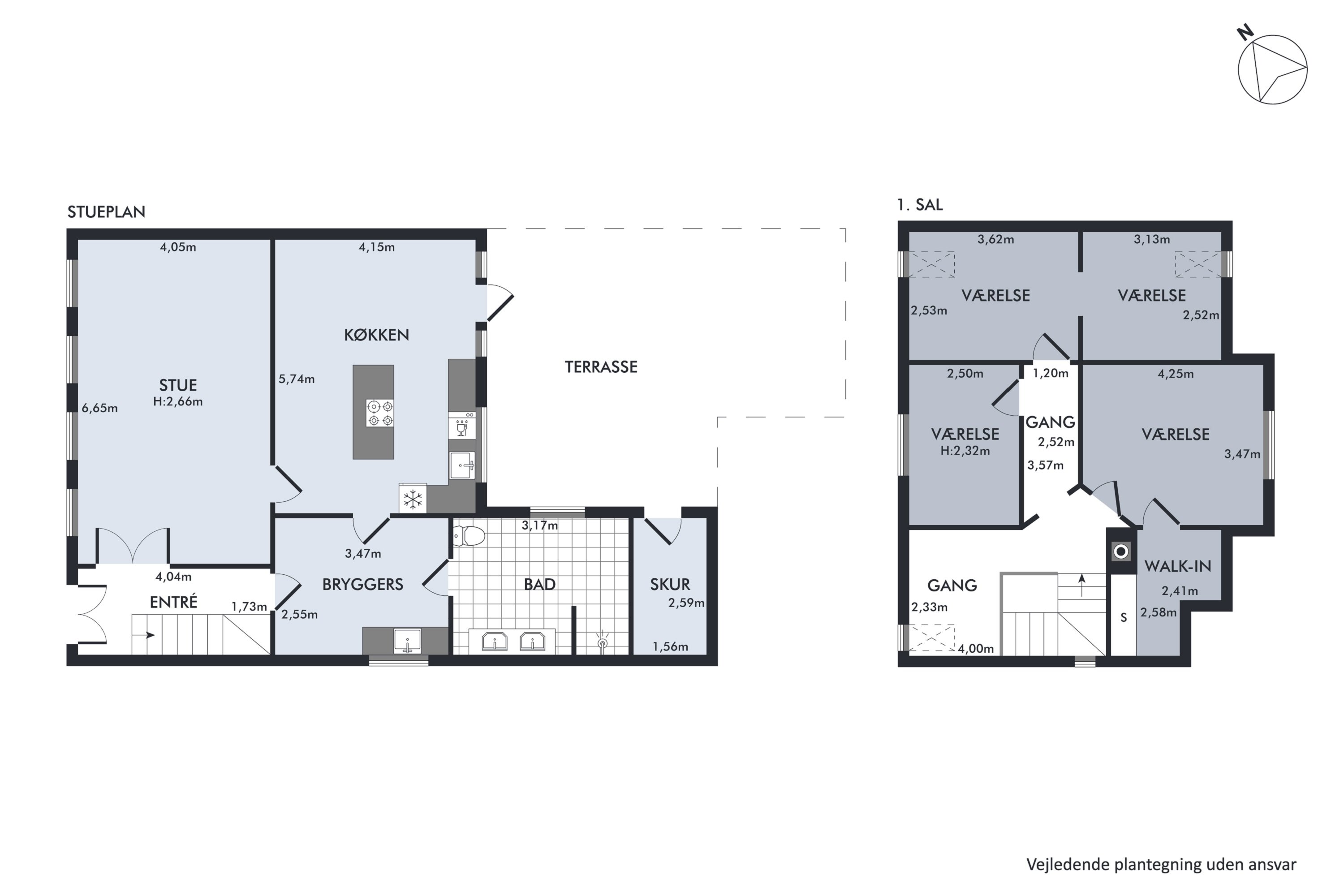
Ejendommen rummer hele 159 m2 og fordeler sig som følger:
Stueplan:
Entré med trappeopgang til ejendommens tagetage. Stor og lys stue der virkelig kommer til sin ret med de mange vinduer mod Havnegade. Lækkert køkken/alrum med udgang til ejendommens baggård med lækker træterrasse og havemiljø. Baggang/bryggers. Stort badeværelse.
Tagetagen:
Stor og rummelig fordelingsgang, samt fire værelser, hvoraf den ene er med walk-in.
En ejendom opført i gedigne materialer og en renovering i høj kvalitet.
Et lækkert hus med en eminent god beliggenhed.
Økonomisk overblik
Skal du også sælge?
Bestil salgsvurdering
Kontakt
Thejs L. Davidsen
Om kommunen
INDBYGGERE
GRUNDSKYLD
KOMMUNESKAT
SKOLER
BØRNEPASNING
Hvor langt er der til nærmeste?
Se hvor lang tid der er mellem denne bolig og en anden adresse