Etplansvilla på én af Sydstrandens rolige veje - med solrigt sommerliv og gåafstand til vandet
Har I ledt forgæves i alle verdenshjørner efter jeres næste bolig, vil vi varmt anbefale jer at sætte kurs mod Skippervænget 5E i Dragør. Her venter jer nemlig en velbygget etplansvilla, der byder på herligt store rum, en moderne planløsning og et solbeskinnet sommerliv, og som bare har koordinaterne i orden.
Boligen holder til på hjørnet af Skippervænget og Sandbakken. Begge veje har sparsom og langsom trafik (der er chikane). Vi er på Sydstranden, så vandet er tæt på. Fra hoveddøren har er der knap 10 minutters gang til Strandengenes natur, badestrande og stierne langs Øresund, der fører vidt omkring. Blandt andet til Dragør Søbad, havnemiljøet og byens historiske centrum. Inden for rækkevidde har I desuden indkøb, daginstitutioner, skole og fritidsaktiviteter.
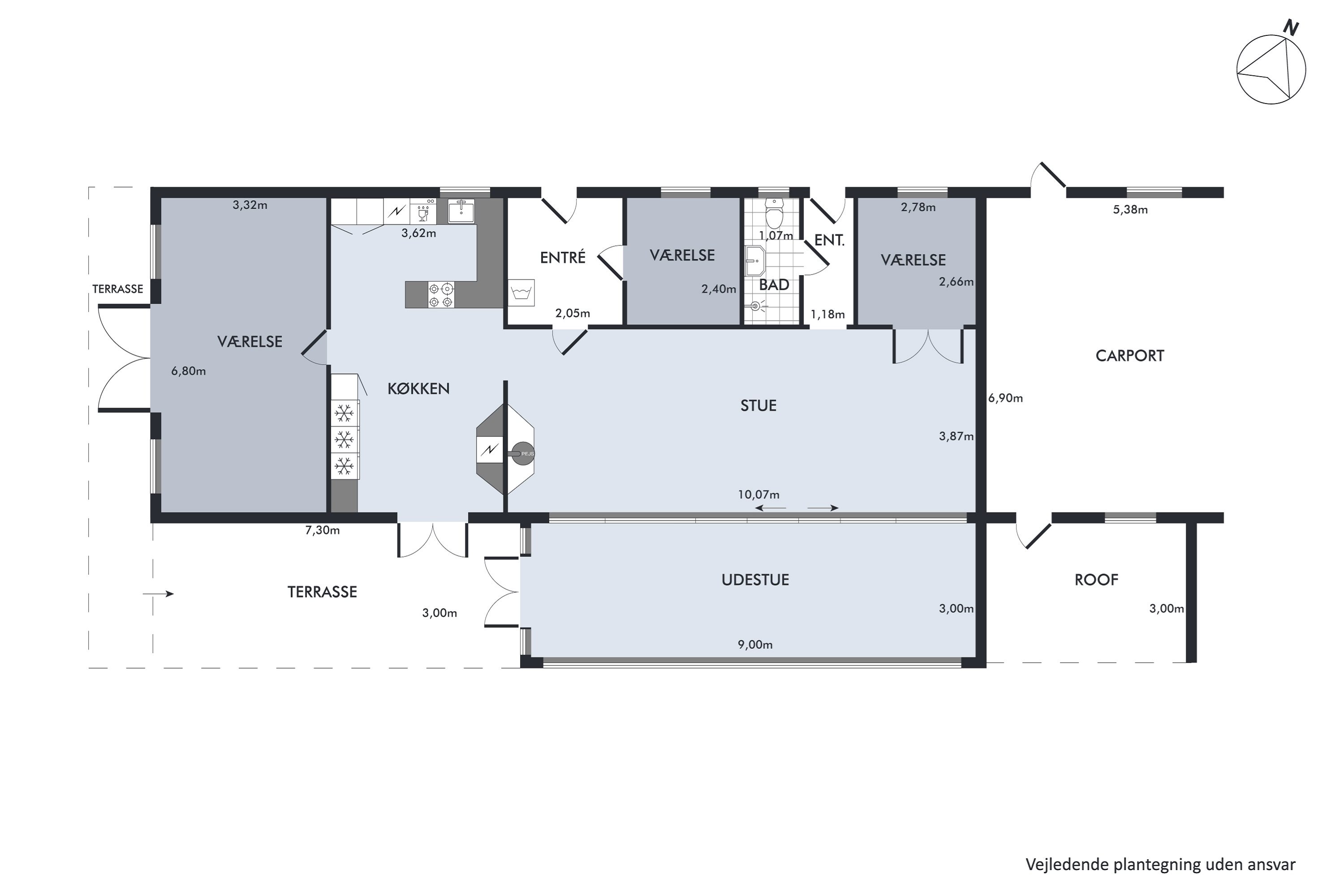
De store rum, vi indledte med at fremhæve, er især køkken-alrum og stue. Begge er etableret med pejseindsats. Begge har loftspots gavmildt fordelt som stjerner nattehimlen. Det ene af villaens rum, oplagt til forældrene, er også oppe i en rigtig god størrelse, mens badeværelse, entrè/bryggers og to værelser kører planløsningen i mål.
Glæd jer også til udestuen, der er et stort bonusrum. Når udestuen forbindes med stuen (der er glasskydedør mellem), har I en opholdsafdeling på op mod de 70 kvadratmeter. Perfekt til de store sammenkomster, til sommerfester og med mulighed for at tage det gode humør udenfor. Udestuen (og køkken-alrum) har udgang til terrassemiljøet, der også har styr på koordinaterne. Solen skinner fra syd og fra vest, altså dagen igennem til et godt stykke ud på sommerens lyse aftener.
Mod vejen er der dobbelt carport, mens haven mest af alt er en lysåben plæne. Måske vil I til en start etablere hegn eller hæk omkring villa og have - det mangler for at skabe privatliv. Men på den lange bane er der nærmest nul pligter i det grønne.
Sæt kurs mod Skippervænget 5E - kontakt Estate i dag for en fremvisning
Økonomisk overblik
Skal du også sælge?
Bestil salgsvurdering
Kontakt
Aleksander Korsholm
Om kommunen
INDBYGGERE
GRUNDSKYLD
KOMMUNESKAT
SKOLER
BØRNEPASNING
Hvor langt er der til nærmeste?
Se hvor lang tid der er mellem denne bolig og en anden adresse