Rummelig 1-plans villa med ekstra plads til hobby, gæster og hjemmekontor
På Klirevænget 71 i Bagsværd finder du en villa, der kombinerer funktionalitet med atmosfære – et oplagt valg til den moderne familie.
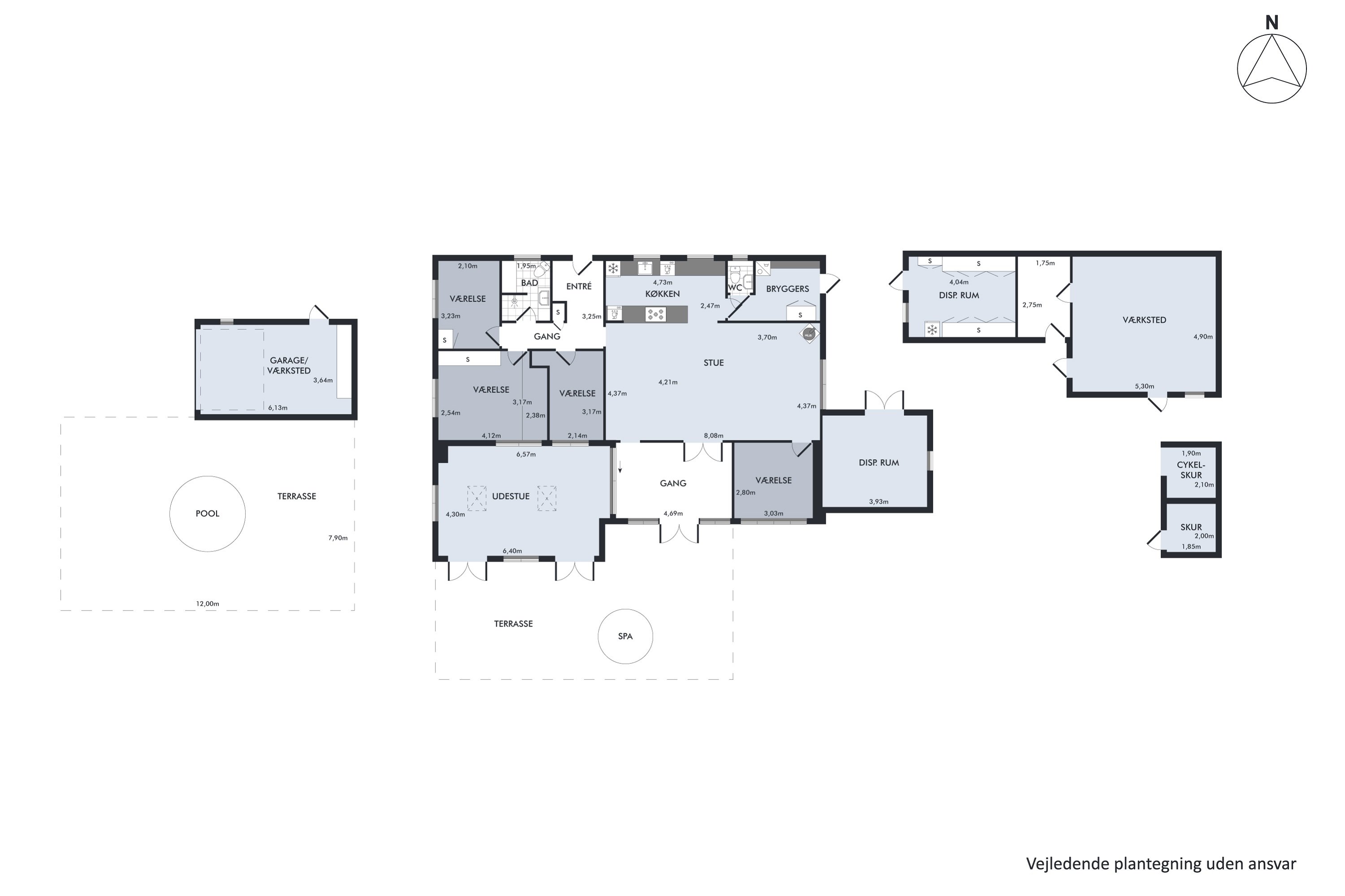
Huset byder på et lyst og indbydende køkken-alrum, som fungerer som hjemmets naturlige samlingspunkt. Her kan familien samles omkring madlavningen i det stilrene køkken, mens andre slår sig ned ved spisebordet eller i den rummelige stue, der ligger i åben forbindelse. Store vinduespartier giver et skønt lysindfald og skaber en behagelig sammenhæng mellem hverdagens aktiviteter og de hyggelige stunder. Fra stuen er der direkte adgang til en stor og lys udestue, som forlænger boligen og kan bruges til både afslapning, selskaber og børnenes leg – et fleksibelt ekstra rum, hvor ude og inde smelter sammen.
Boligen rummer desuden 4 gode værelser, et badeværelse med bruseniche, separat gæstetoilet samt et praktisk bryggers med egen indgang.
Hertil kommer flere disponible rum, som giver mulighed for kontor, gæsteværelse eller hobby.
Udenfor venter en indbydende have med solrige terrasser, spa og swimmingpool – perfekte rammer til både afslapning og samvær.
Ejendommen fuldendes af garage, værksted og skure, der giver rigelig plads til opbevaring og kreative projekter.
Beliggenheden er attraktiv i et børnevenligt villakvarter tæt på skoler, daginstitutioner, indkøb og grønne områder. Samtidig er der nem adgang til motorvej og offentlig transport, hvilket gør hverdagen fleksibel for både familier og pendlere.
Kort sagt får du her en villa med plads, komfort og skønne faciliteter – klar til at danne rammen om dit næste kapitel.
Økonomisk overblik
Skal du også sælge?
Bestil salgsvurdering
Kontakt
Daniel Ammitzbøll-Sørensen
Om kommunen
INDBYGGERE
GRUNDSKYLD
KOMMUNESKAT
SKOLER
BØRNEPASNING
Hvor langt er der til nærmeste?
Se hvor lang tid der er mellem denne bolig og en anden adresse