Virksomheden har tegnet ansvarsforsikring og garantistillelse hos HDI Global Specialty, Langebrogade 3F, 1411 København K. Telefon: 3336 9696.
Forsikring dækker kun formidling af ejendomme beliggende i Danmark fra kontorer beliggende i Europa
| Mandag: | |
| Tirs - Tors: | |
| Fredag: | |
| Lørdag: | |
| Søndag: | |
| og efter aftale |
Vi er opvokset og bor i lokalområdet, og har solgt boliger i Roskilde og omegn siden 1993. Vi har arbejdet sammen i mange år med stor succes, og er derfor et fasttømret og meget rutineret team.
Der er rigtig meget på spil, når man skal købe eller sælge bolig. Vi vil gerne være kendte for vores oprigtighed og ærlighed, frem for noget andet. Så må andre konkurrere om, hvem der er mest lokal, om de gamle salgsmetoder er bedre end de nye IT løsninger eller om der findes hemmelige formler på boligsalg.
Det kræver både forstand på boliger og forstand på mennesker, når din bolig skal sælges på den bedst tænkelige måde. Men det kræver også de rigtige salgsværktøjer, og som Estate mæglere råder vi over nogle af branchens bedste.
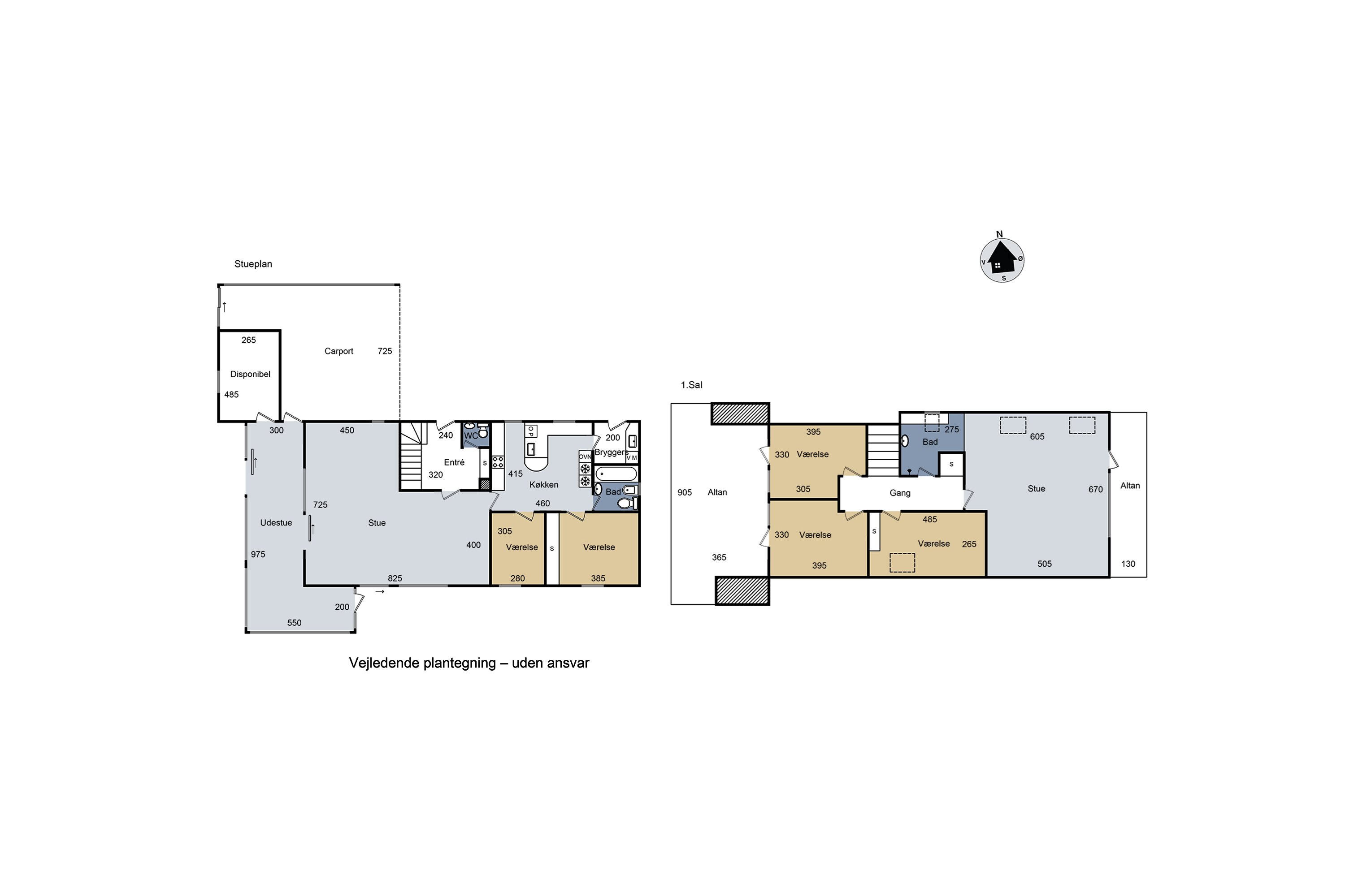
Vi sælger boliger i Roskilde og Lejre kommune. Vi sælger villaer, lejligheder, sommerhuse og nedlagte landbrug. Fra vores salgskontor i Hornsherred, sælger vi også boliger i store dele af Frederikssund kommune.
Kontakt os på telefon 4640 4800 eller 4000@estate.dk – boligsalg alle har råd til
Virksomheden har tegnet ansvarsforsikring og garantistillelse hos HDI Global Specialty, Langebrogade 3F, 1411 København K. Telefon: 3336 9696.
Forsikring dækker kun formidling af ejendomme beliggende i Danmark fra kontorer beliggende i Europa
Køberrådgivning

Få en gratis salgsvurdering af din bolig og kom ét skridt tættere på at realisere dine drømme om et nyt hjem.