250 m2 arkitekttegnet villa med naturskøn udsigt til marker
Det er ikke hver dag en villa af denne karakter kommer til salg, så det er med stor fornøjelse, at vi nu byder jer velkommen på Bytoftevej 20 i smørhullet mellem Ringsted og Køge. Faktisk findes der få af netop denne type hus, som er arkitekttegnet med fokus på at kombinere en planløsning i forskudte niveauer med funktionalitet og masser af plads til familien.
Boligen afspejler i den grad at være en arkitekts værk. Den forskudte planløsning giver jer således mulighed for at nyde en pragtfuld udsigt i udvalgte rum, hvilket gør selv opvasken til en fornøjelse.
Der er løbende lavet forbedringer på huset. Mere eller mindre alle vinduer og døre er af nyere dato, mens underetagen er renoveret for 3-4 år siden, så den i dag er yderst anvendelig. Der er desuden lagt lækre naturklinker i stue, værelse og fyrrum, for at skabe en gennemgående rød tråd. Sidste år er der også installeret en luft-til-vand varmepumpe, hvilket giver er flot energimærke B. Tagpappet er skiftet på hovedhuset og garagen og har garanti frem til 2040.
Boligens hjerte er køkkenalrummet, der byder på rigelig plads at være kreativ i maduniverset. Det er for nyligt blevet opdateret med maling og akustikpaneler, hvilket giver et flot moderne touch til rummet. Fra køkkenet er der udgang til en lækker overdækket terrasse, hvor grillen og havemøblerne kan få en plads.
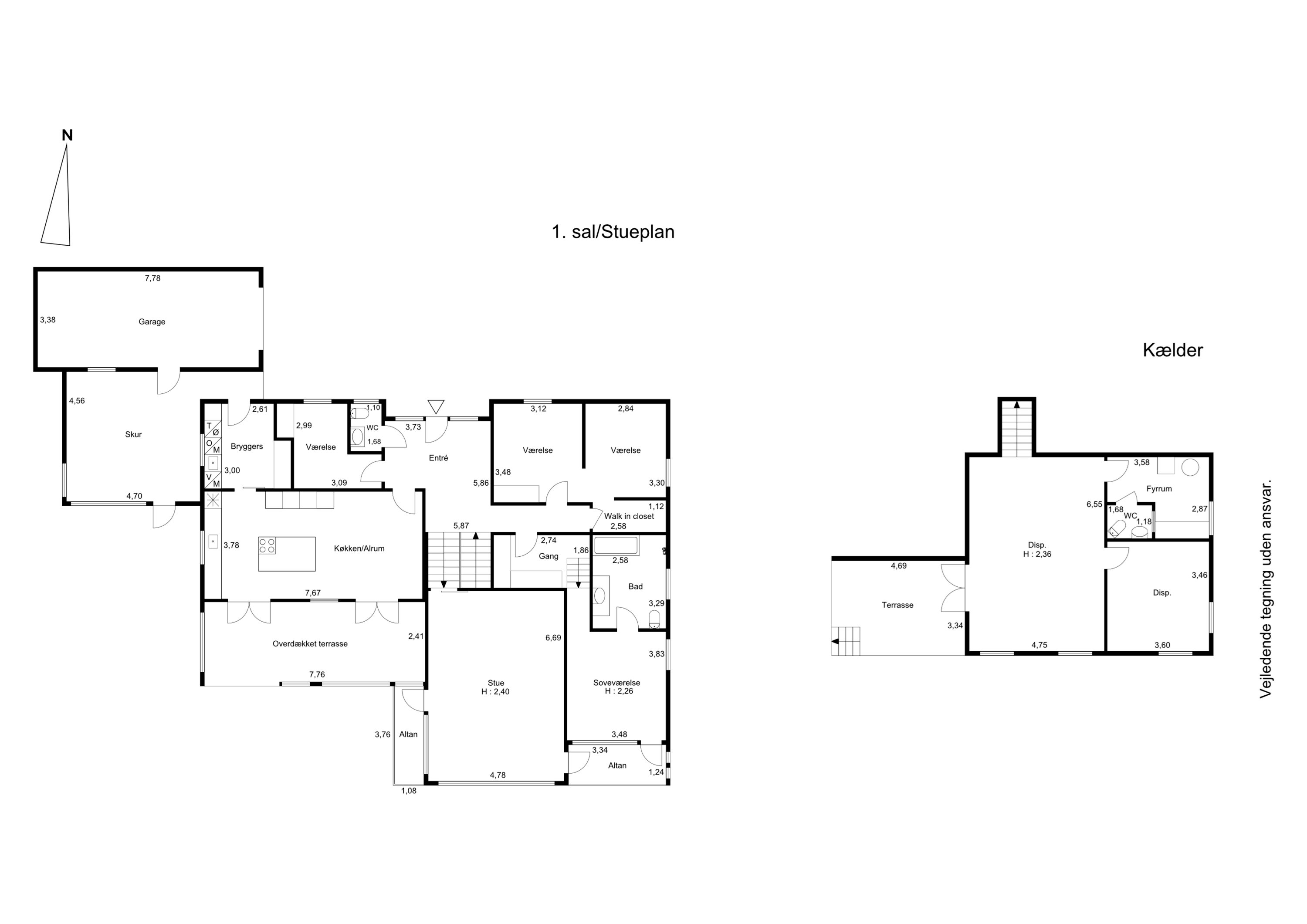
I hævet niveau finder I spisestuen, der er designet med store panoramavinduer mod syd, som bidrager med et fantastisk lys og en imponerende udsigt. Denne bør opleves! Samme niveau byder på en værelsesafdeling med soveværelse og et badeværelse i original retrostil. Både soveværelse og spisestue har desuden udgang til altaner, så I nemt kan lufte dyner eller nyde en kop kaffe. Stueplan fuldendes af tre værelser, walk-in og en bred entré med et gæstetoilet i moderne stil. Underetagen supplerer yderligere med to gode rum, et toilet og fyrrum.
Masser af plads, er også at finde i haven, der er sirligt anlagt med flere skønne terrasser og fine detaljer som en hyggelig sti nede bagved. Der er mange fine træer og buske, som skaber en privat stemning på grunden. Om sommeren kan I f.eks. glæde jer til moreller, mens foråret bydes velkommen med farverige tulipaner. Grunden en højtbeliggende og I skal derfor ikke bekymrere jer om oversvømmelse eller lignende.
Nu nåede vi slet ikke at fortælle jer om fællesskabet i Slimminge Ringsted og beliggenhedens mange goder - men bestil en fremvisning, så fortæller vi jer gerne meget mere!
Økonomisk overblik
Skal du også sælge?
Bestil salgsvurdering
Om kommunen
INDBYGGERE
GRUNDSKYLD
KOMMUNESKAT
SKOLER
BØRNEPASNING
Hvor langt er der til nærmeste?
Se hvor lang tid der er mellem denne bolig og en anden adresse