BYVILLA - TÆT PÅ ALLE BYENS FACILITETER
Velkommen til denne charmerende villa beliggende på Holbækvej 14 i den naturskønne og velplacerede bydel af Kalundborg, hvor du kan finde en balance mellem et roligt boligområde og den umiddelbare nærhed til byens mange faciliteter. Med et boligareal på 115 kvadratmeter tilbyder denne villa en praktisk og velindrettet ramme for den lille til mellemstore familie.
Ejendommen byder på en særdeles hyggelig, sydvendt have, der inviterer til både leg og afslapning i det fri. Her er der rig plads til at dyrke blomsterbede, spille bold med børnene, eller samle familien omkring et bål på en lun sommeraften. Haven er et skønt fristed, hvor den grønne ro let kan nydes, måske endda med en friskbrygget kop te i hånden.
Til ejendommen hører også en større udhusbygning, som for nylig er blevet opdateret med et nyt tag, hvilket sikrer en solid og funktionsdygtig praktisk opbevaringsløsning. Denne bygning består af to rummelige rum, der kan anvendes til både opbevaring og hobbyprojekter.
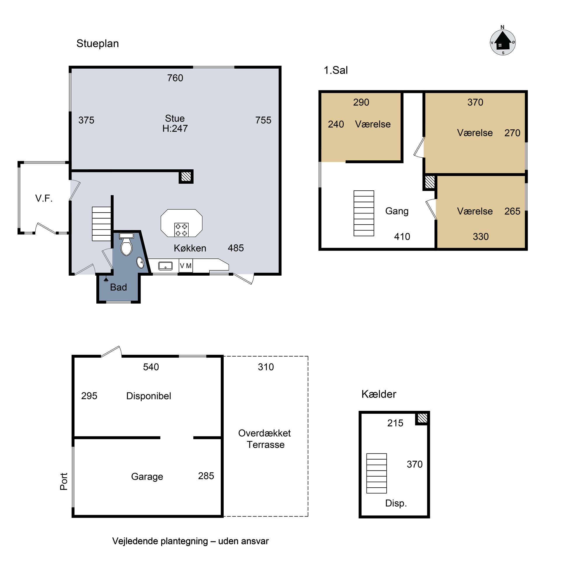
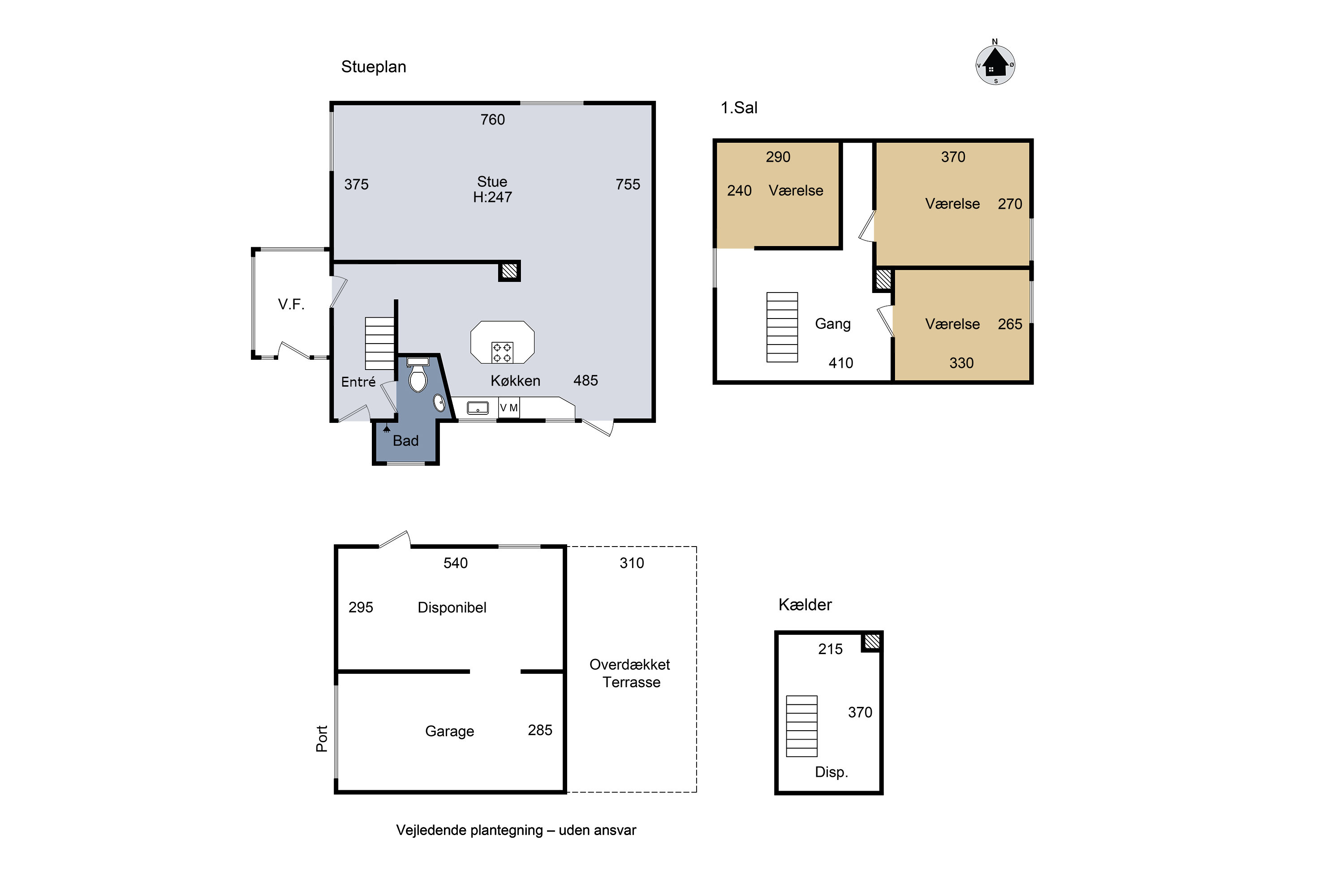
Husets indretning starter i det mindre, men funktionelle indgangsparti, der leder videre til den lyse og åbne stue og køkkenområde. Køkkenet er indrettet i åben forbindelse med opholdsstuen, hvilket skaber et dejligt socialt samlingspunkt for familien. Her kan man forestille sig hyggelige middage eller afslappede stunder omkring spisebordet.
Badeværelset, som netop er nyrenoveret, er udstyret med en bruseniche og tilbyder de nødvendige faciliteter.
Fra entreen fører en trappe op til 1. salen, hvor du finder husets soveafdeling. Her er to regulære værelser, der kan bruges som soveværelser eller hjemmekontor, afhængig af familiens behov. Derudover findes et tredje værelse, som er delvist åbent og dermed giver mulighed for kreative indretningsløsninger - måske som et hyggeligt legeområde til de yngste eller en ekstra stue til afslapning.
Under huset findes en kælder, som består af et disponibelt rum med fjernvarmeinstallation, hvilket sikrer en stabil og vedvarende varmeløsning til boligen.
Denne villa på Holbækvej 14 tilbyder en harmonisk kombination af bylivets nemme adgang til de nødvendige faciliteter og en hjemlig base, hvor der er plads til ro og fordybelse i hverdagen. Er du på udkig efter et funktionelt hjem med en god beliggenhed i Kalundborg, kunne denne ejendom måske være det sted, hvor du vil skrive næste kapitel i dit liv.
Økonomisk overblik
Skal du også sælge?
Bestil salgsvurdering
Kontakt
Thomas Ziegler Linnemann Jensen
Om kommunen
INDBYGGERE
GRUNDSKYLD
KOMMUNESKAT
SKOLER
BØRNEPASNING
Hvor langt er der til nærmeste?
Se hvor lang tid der er mellem denne bolig og en anden adresse