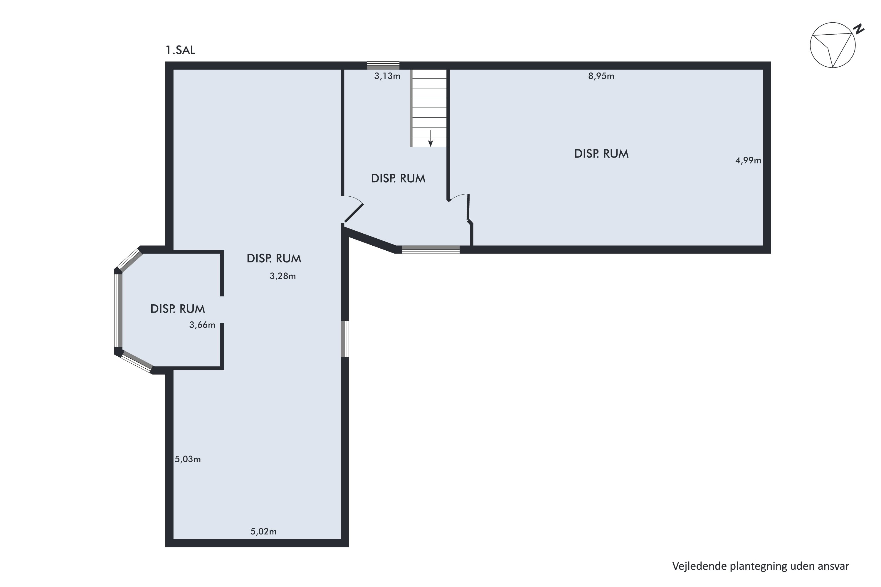
HÅNDVÆRKER SE HER – RENOVERET STUEPLAN, 1. SAL ER KLARGJORT TIL YDERLIGERE BOLIG KVM.
Velkommen til Elmelundsvej 193 – et charmerende stuehus fra 1870 med renoveret stueplan, naturskøn beliggenhed og masser af potentiale for den, der ønsker at sætte sit eget præg.
Denne ejendom byder på 117 m² indflytningsklar bolig i stueplan, hvor der er tænkt både funktionalitet og æstetik ind i indretningen. Her får du:
- Et lyst og indbydende soveværelse
- Lækkert køkken/alrum med stort vinduesparti og åben forbindelse til stue
- Hyggelig stue med brændeovn og store vinduespartier med flot lysindfald
- Stort badeværelse med god skabsplads
- Gæstetoilet og entré
- Værksted/udhus med plads til vaskemaskine og tørretumbler (ikke renoveret)
Ejendommen er siden 2018 løbende renoveret gennem de seneste år – blandt andet med nye døre og vinduer, el installationer, kloakering mv. – hvilket gør stueplanet funktionelt og moderne, samtidig med at husets oprindelige charme er bevaret.
Grunden på hele 14.676 m² er noget helt særligt. Haven omkring huset byder på fliseterrasse og græsplæne, omgivet af træer og buske – ideelt til både leg, afslapning og udeliv. Resten af grunden er udlagt som naturgrund med bl.a. et lille idyllisk vandhul, hvilket skaber en sjælden fredfyldt atmosfære.
Beliggenheden i Odense SV kombinerer landlig idyl med nem adgang til bylivet. Ejendommen tilhører skoledistriktet for Ubberud Skole.
Kort fortalt: En spændende ejendom med en renoveret stueplan, en ualmindelig stor og naturskøn grund – og masser af muligheder på 1. sal. Perfekt for den handy køber eller håndværkeren, der drømmer om en bolig med både sjæl og udviklingspotentiale.
Kontakt os for en fremvisning – og oplev mulighederne på Elmelundsvej 193.
Fakta om boligen
Boligareal:
117 m²
Stue/Værelser:
1/1
Bygget/Ombygget:
1870
Grundstørrelse:
14676 m²
Energimærke:
Økonomisk overblik
Kontantpris
1.795.000 kr.
Ejerudgift pr. md.
1.736 kr.
Udbetaling
90.000 kr.
Brutto ekskl. ejerudgift
9.667 kr.
Netto ekskl. ejerudgift
7.828 kr.
Skal du også sælge?
Bestil salgsvurdering
Kontakt
Michael Grill
Indehaver, Vurderingskonsulent for Totalkredit, Lægdommer Boligretten
Estate Mortensen & Grill Aps - Dalum
Tlf. 6614 5547
Mobil. 4015 4966
Om kommunen
INDBYGGERE
210.803
GRUNDSKYLD
5,700‰
KOMMUNESKAT
25,50%
SKOLER
32
BØRNEPASNING
Vuggestue 3.443 kr./md.
Børnehave 2.158 kr./md.
Hvor langt er der til nærmeste?
Afstand til nærmeste
Transport:
1,65 km
Indkøb:
3,98 km
Daginstitution:
1,07 km
Skole:
2,82 km
Sport og fritid:
2,83 km
Sundhed:
4,51 km
Ladestandere:
2,06 km
Lynladere:
2,06 km
Rejsetid
Se hvor lang tid der er mellem denne bolig og en anden adresse
I bil:
- min
På cykel:
- min
Med offentlig transport:
- min
Køberkartotek
Skriv dig op i vores køberkartotek Mit Estate. Så får du besked, når vi får den bolig, der matcher dine drømme. Det er både nemt, enkelt og smart.
Læs mere KøberRådgivning
Ønsker du et trygt og godt boligkøb? Med KøberRådgivning kan du få hjælp til f.eks. pristjek, gennemgang af dokumenter, prisforhandlinger og meget mere.
Læs mere Formuerådgivning
Nye boligplaner er en god anledning til at give økonomien et serviceeftersyn. Vores mæglere kan henvise dig til nogle af landets dygtigste formuerådgivere.
Kontakt os