Sjældent set før!
Vil du skille dig ud fra mængden? - Så er det nu du skal slå til!
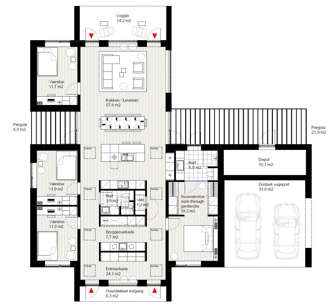
Denne ejendom på 187 kvm. står klar til indflytning ultimo 2025. Som det ses på illustrationerne er dette ikke typisk hus - det er nemlig meget unikt og ikke set mange steder i landet!
Ejendommen opføres i kvalitetsmaterialer og som et energioptimeret hus med jordvarme mv.
Ejendommen er beliggende i den nydelige og nyere udstykning i Sdr. Nærå, hvor skole, indkøb mv., findes kort fra ejendommen.
Samlet set er ejendommen 238 kvm., hvoraf de 51 kvm. er integreret carport. Planløsningen er som følger: Lækker og åben entré til bryggers. Stor forældreafdeling med soveværelse, walk-through-closet til badeværelse. Tre store og lyse værelser. Badeværelse. Husets hjerte - det knap 60 kvm. store alrum med loft til kip og masser af lysindfald og udsigt via det kæmpe vinduesparti.
Dette er en ejendom der virkelig skal opleves og det glæder vi os til at dele med dig!
OBS, ejendommen er ved at blive bygget, så skulle ejendommen være noget for dig, så vil du kunne være medbestemmende på eventuelle ændringer i processen. Kontakt os for nærmere info.
Økonomisk overblik
Skal du også sælge?
Bestil salgsvurdering
Kontakt
Thejs L. Davidsen
Om kommunen
INDBYGGERE
GRUNDSKYLD
KOMMUNESKAT
SKOLER
BØRNEPASNING
Hvor langt er der til nærmeste?
Se hvor lang tid der er mellem denne bolig og en anden adresse