Bolig og erhverv midt i Nordby – 475 m2, talrige muligheder og havkig
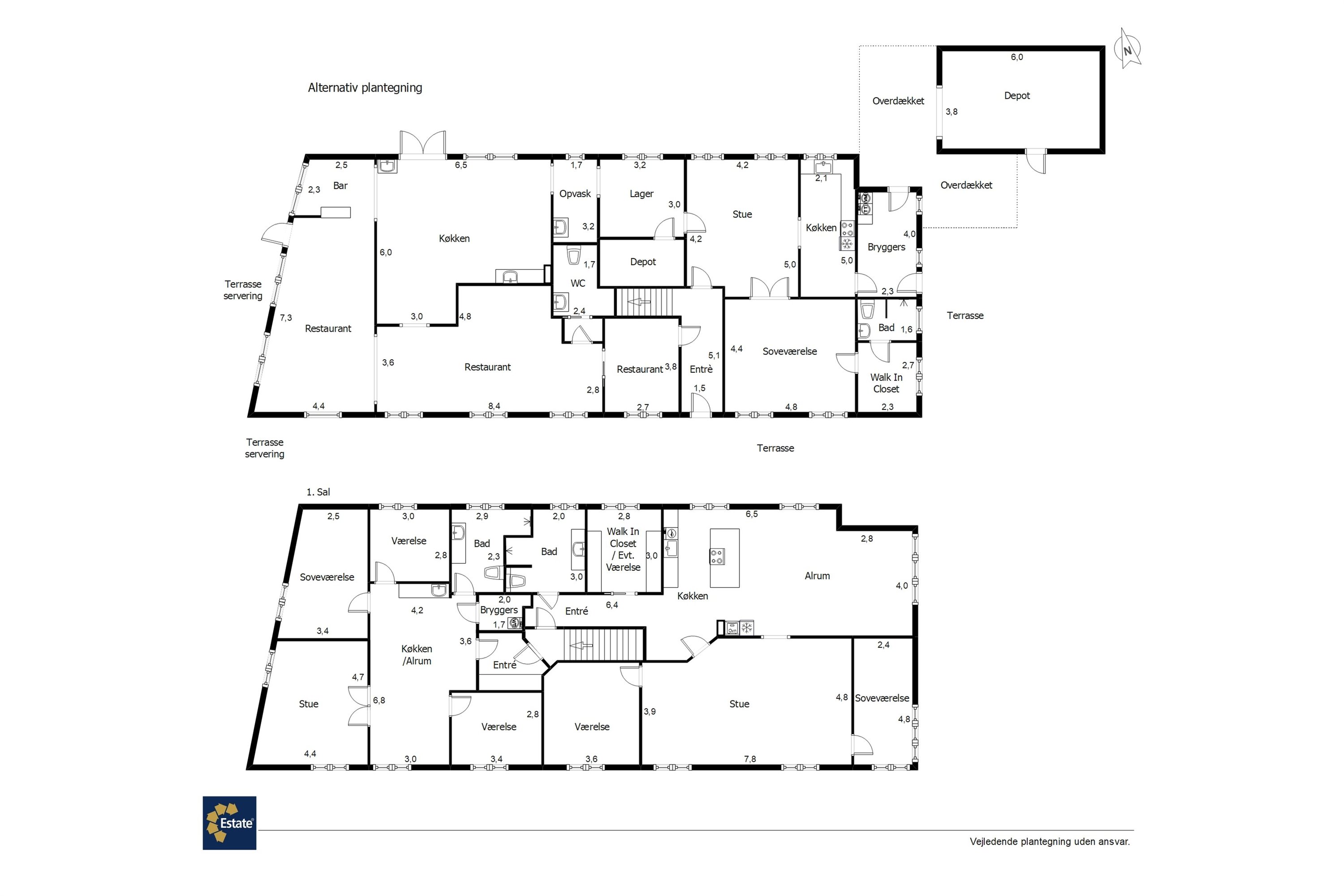
Skal restaurationsdrømmen udleves på hyggelige Fanø og eller savner du bare plads og udfoldelsesmuligheder, bør du rette blikket mod Hovedgaden 90 centralt i Nordby. Her kan du se frem til 475 m2 kombineret bolig og erhverv i flot opdateret stand med oplagt mulighed for at drive spisested i forening med op til tre boligenheder – ideelt, hvis du vil bo flere under samme tag eller ønsker at udleje.
Selve ejendommen daterer sig tilbage til 1898 og er rig på historie og charme. Den har i 2024 gennemgået en totalrenovering af overetagen samt en optimering af underetagen, så du som restauratør får optimale arbejdsvilkår og kan huse større selskaber på op til 60 mennesker ad gangen.
De mange opdateringer er gjort med respekt for husets karakter, hvorfor detaljer som de originale plankegulve er bevaret trods en forvandlet 1. sal. Her er en klar rød tråd med gedigne materialer og kvalitetshvidevarer samt stemningsfuldt kig til vandet og Esbjerg mod øst.
Såvel overetagen som boligdelen i underetagen kan nemt tilpasses dine behov, så det er muligt at indrette sig med tre separate lejligheder, der alle har køkken og bad. Du kan naturligvis også benytte dig af hele boligarealet og rumme enhver familiestørrelse. Der foreligger en alternativ plantegning med ændringer af boligen til inspiration.
Sidstnævnte fordeler sig over køkken, opvaskerum og restaurant over tre rum med bar og et toilet. Blandt flere opdateringer i denne del af ejendommen er nye akustiklofter og nyt el. I de lune måneder kan du etablere udeservering langs hovedgaden, og bag ejendommen er der privat have med terrasse og udhuse.
Placeringen midt på hovedgaden i Fanøs hovedby giver et naturligt flow af mennesker hele året. Du kommer til at bo 30 sekunders gang fra SuperBrugsen og ligeledes tæt på skole, institutioner, fritidsfaciliteter og Nordby Havn, hvor færgen bringer dig til Esbjerg på 12 minutter.
Her kan du ubekymret rykke ind og tage hul på dine drømme – vi venter kun på dig!
Økonomisk overblik
Skal du også sælge?
Bestil salgsvurdering
Kontakt
Robin Thybo
Om kommunen
INDBYGGERE
GRUNDSKYLD
KOMMUNESKAT
SKOLER
BØRNEPASNING
Hvor langt er der til nærmeste?
Se hvor lang tid der er mellem denne bolig og en anden adresse