Unik villa og beliggenhed.
Imponerende bolig med en super beliggenhed i Holstebro by. Her bor du tilbagetrukket i skønne omgivelser ved Storåen samtidig med, at du er i gåafstand til gågaden og nabo til flot natur.
Flot arkitektur, udsøgt materialevalg og indretning kombineret med en perfekt beliggenhed ved Storåen i centrum af Holstebro gør denne bolig helt særlig.
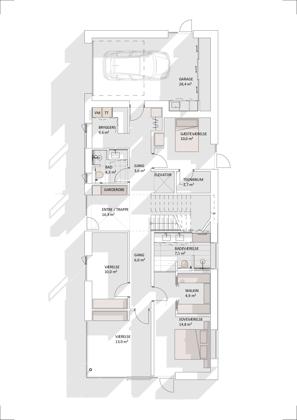
Indrettet i stueplan med hall med lift og flot trappeopgang til 1.sal, åben og lys fordelingsgang til badeværelse med brus, bryggers, værelse og integreret garage. Endvidere byder stueplan på skønt multirum/stue og soveværelse med tilhørende walk-in og badeværelse med brus. I stueplan er der mulighed for at etablere ekstra værelse.
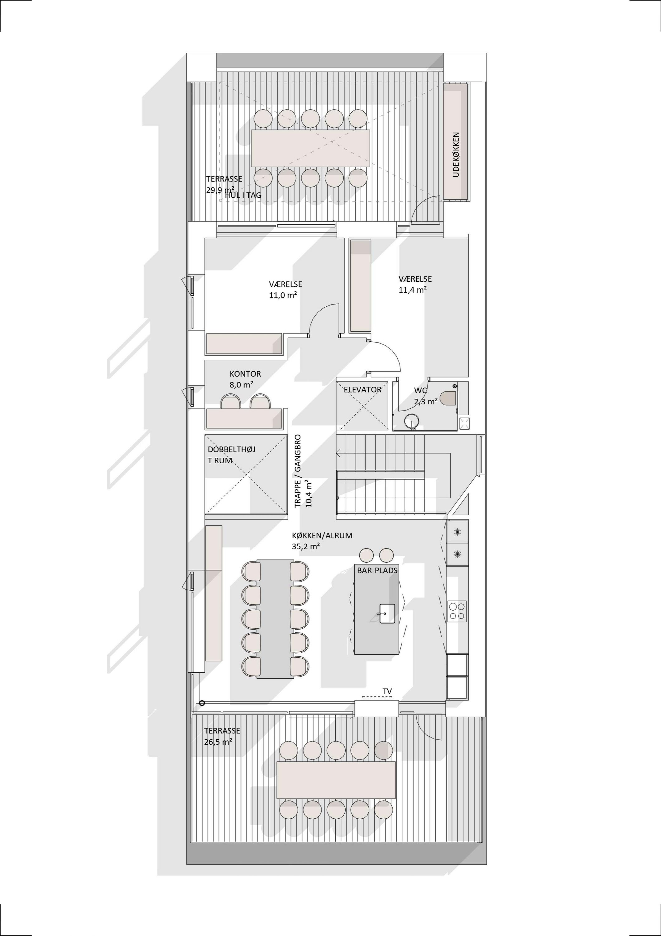
1. sal er indrettet med stort køkken/alrum med flot og godt indrettet køkken og udgang til skøn altan med imponerende udsigt over Storåen og området. Endvidere hyggelig stue med adgang til kontorafsnit og udgang til husets anden store altan.
Udearealet med hyggekroge og terrasser ved Storåen kombineret med de 2 store altaner gør det nemt at nyde udelivet og sommeren ved huset.
En af de få.
Økonomisk overblik
Skal du også sælge?
Bestil salgsvurdering
Kontakt
Leif Lægsgaard
Om kommunen
INDBYGGERE
GRUNDSKYLD
KOMMUNESKAT
SKOLER
BØRNEPASNING
Hvor langt er der til nærmeste?
Se hvor lang tid der er mellem denne bolig og en anden adresse