Et stort hus fuld af potentiale midt i Rask Mølle
Lige midt i Rask Mølle, ja, faktisk på Hovedgaden, kan I nu overtage et hus med muligheder og potentiale. Huset er fra 1904, og det trænger til kærlige hænder og generel renovering, så I får mulighed for at indrette præcis det hjem, I drømmer om. Hele 288 etagemeter står klar til nye ejere, der har spændende indretningsidéer med i bagagen.
Rask Mølle er et dejligt sted at slå sig ned. Det er en aktiv by med alt, hvad I skal bruge, og med adresse på Hovedgaden er I tæt på det hele: heriblandt den moderne skole til 9. klasse, børneuniverset, det rige foreningsliv i hallerne, fitnesscentret, Dagli'Brugsen og de gode busforbindelser. Både busserne og bilen gør det nemt at komme videre ud i landet, og Rask Mølle ligger helt perfekt mellem mange større byer, så det er nemt at pendle. I kan eksempelvis køre til Horsens og Vejle på ca. 20 minutter, til Kolding på en halv time og til Aarhus på omkring 45 minutter.
Med adressen på plads er det blevet tid til at vende blikket mod huset og dets mange muligheder. Ejendommen har tidligere dannet ramme om bl.a. en slagter og en grillbar, før den blev omdannet til privat bolig. Nu er tiden inde til et nyt kapitel, hvor I opdaterer med alt fra nye vinduer til moderne design.
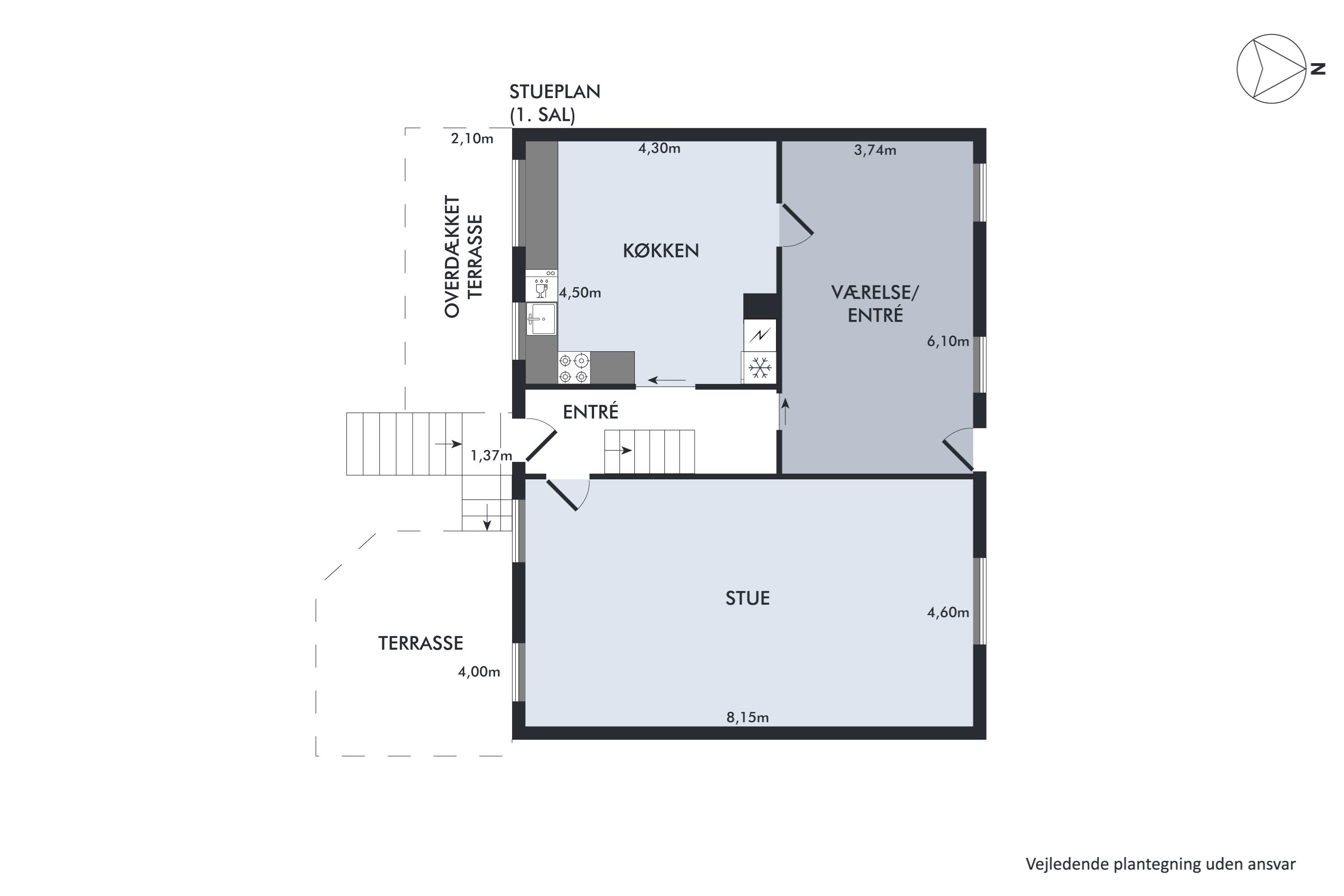
Huset råder over kælder, stueplan og førstesal. Øverst oppe rummer førstesalen mange kvadratmeter i skunkene, så det er oplagt at fjerne og rykke vægge, så I giver plads til nogle gode værelser – her er desuden badeværelse. Stueetagen derimod giver jer et pænt spisekøkken fra 2019, en stor stue og et rum fuld af muligheder. Her kan I eksempelvis give plads til et hjemmekontor eller en forældreafdeling med eget bad – slip fantasien løs. Til slut kommer kælderens 103 m2 fordelt på toilet og disponible rum.
Huset ligger på en 336 m2 stor og overskuelig grund, der foruden huset danner ramme om en gårdhave, nogle gode udhuse med plads til hobbyliv samt to sydvendte terrasser – én overdækket og én fuld af sol.
Økonomisk overblik
Skal du også sælge?
Bestil salgsvurdering
Kontakt
Kasper Lundsgaard
Om kommunen
INDBYGGERE
GRUNDSKYLD
KOMMUNESKAT
SKOLER
BØRNEPASNING
Hvor langt er der til nærmeste?
Se hvor lang tid der er mellem denne bolig og en anden adresse