Spændende ejendom med potentiale – perfekt til dig, der søger et renoveringsprojekt eller investering
Spændende ejendom med potentiale – perfekt til dig, der søger et renoveringsprojekt eller investering (Har du mod på mere og gerne vil udvikle et attraktivt område i vestbyen har vi også naboerne Kirkebækvej 106 og 108 til salg - spørg ejendomsmægleren)
Er du på jagt efter et spændende projekt med masser af muligheder? Så bør du se nærmere på Kirkebækvej 104 – en ejendom med en god base for en bolig efter dit hoved, en central beliggenhed og uanede muligheder for at skabe dit drømmehjem eller et attraktivt investeringsprojekt.
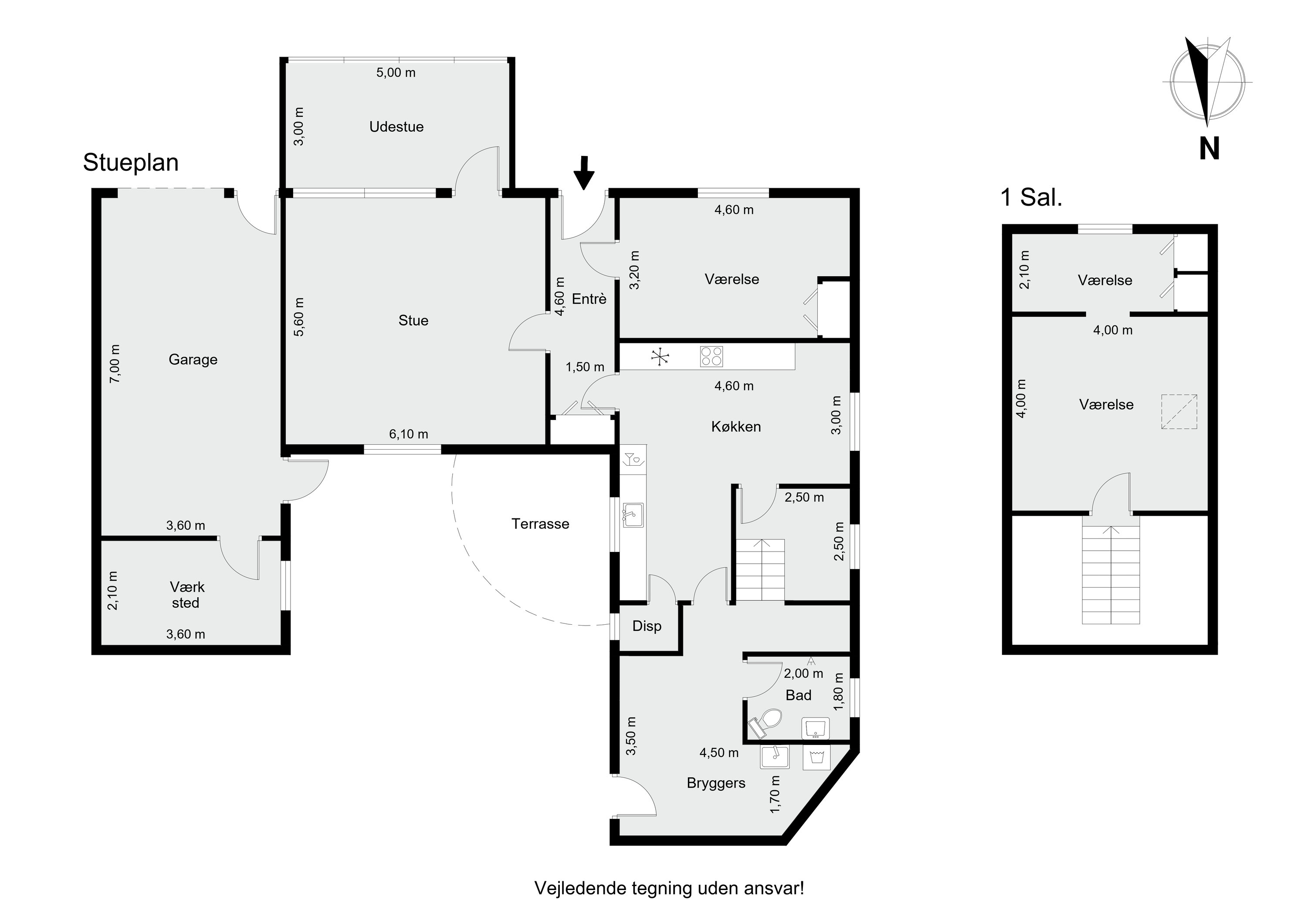
Ejendommen byder på 140 m² bolig fordelt på to plan og fremstår i ældre stand, men med en sund grundstruktur og et godt udgangspunkt for modernisering. Her har du chancen for at sætte dit eget præg og skabe et lyst, indbydende og funktionelt hjem, hvor detaljerne bliver præcis, som du ønsker det.
Beliggenheden er helt ideel – her bor du tæt på alt, hvad hverdagen kræver. Indkøb, skole, daginstitutioner og offentlig transport ligger inden for kort afstand, og Viborgs hyggelige bymidte med caféer, butikker og kulturliv er kun få minutter væk. Her får du en kombination af bynær beliggenhed og tæt på grønne omgivelser.
Den eksisterende planløsning byder i stueplan på entré, stue med udgang til udestue, soveværelse, køkken, stort viktualierum, badeværelse og bryggers. På førstesalen finder du et ekstra værelse samt kontor, som nemt kan indrettes efter behov – eksempelvis som børneværelse, gæsteværelse eller hjemmekontor.
Udendørs venter en grund med mange muligheder. Her er plads til at anlægge terrasse, gårdhave bag huset, have eller andre hyggelige opholdsarealer, hvor du kan nyde sommeren i fredelige omgivelser. Derudover får du garage med elport og værksted, som giver ekstra fleksibilitet og gode opbevaringsmuligheder.
Alt i alt får du her en særdeles attraktiv mulighed for at realisere dit næste bolig- eller investeringsprojekt i Viborg. Uanset om du drømmer om at renovere, modernisere eller udvikle ejendommen fra bunden, er rammerne her til stede.
Hurtig overtagelse er mulig – perfekt, hvis du ønsker at komme i gang med projektet med det samme.
Økonomisk overblik
Skal du også sælge?
Bestil salgsvurdering
Kontakt
Jesper Edward Rasmussen
Om kommunen
INDBYGGERE
GRUNDSKYLD
KOMMUNESKAT
SKOLER
BØRNEPASNING
Hvor langt er der til nærmeste?
Se hvor lang tid der er mellem denne bolig og en anden adresse