Stærk rødstensvilla belliggende i Lendum by tæt på indkøb, skole og idrætsfaciliteter mv.
Stærk rødstens villa beliggende med kort afstand til indkøb, skole, fritidsfaciliteter mv. og med mange daglige busafgange til Frederikshavn og Hjørring.
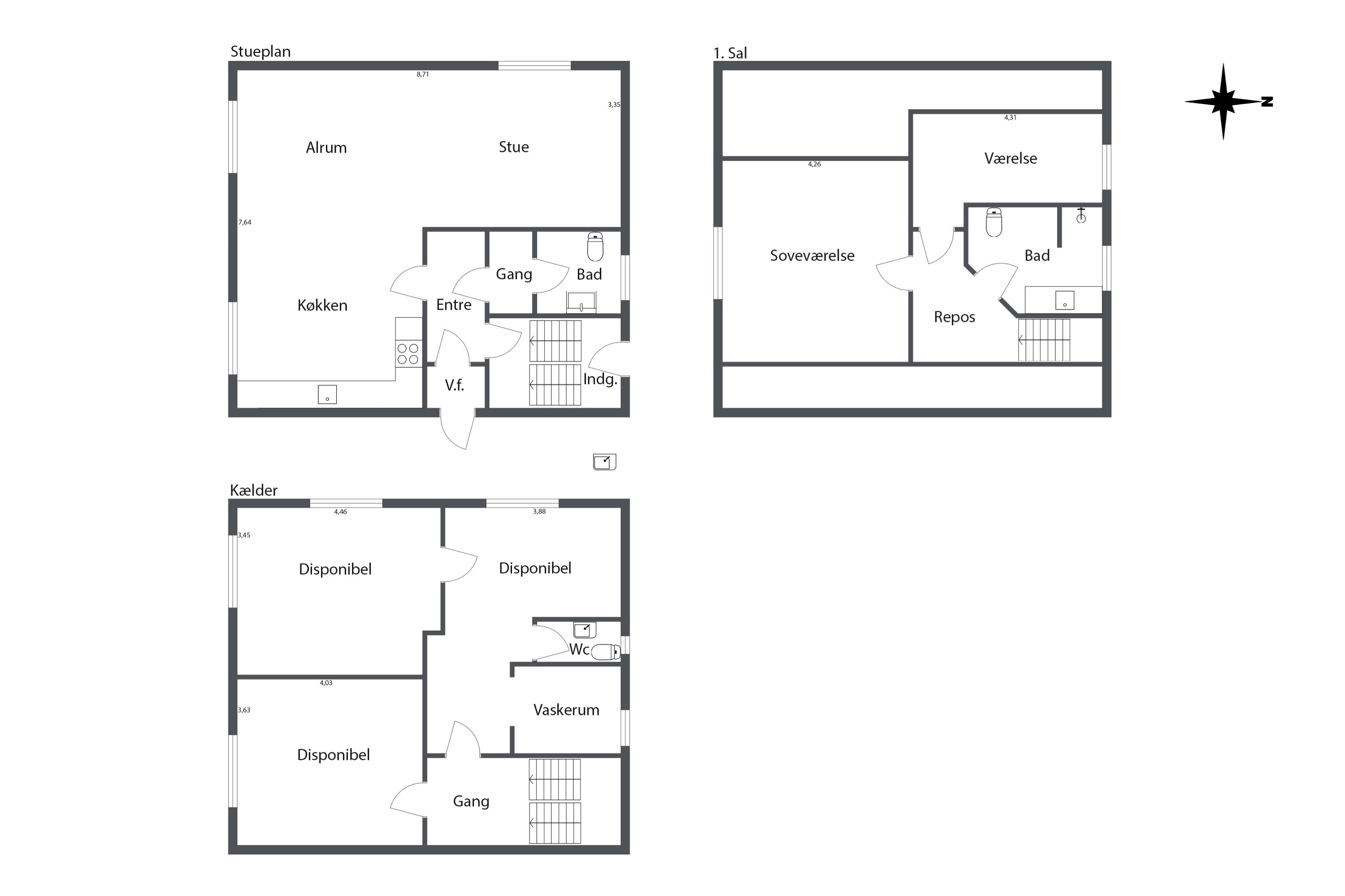
Villaen er i 3 plan og indrettet i stueplan med vf, entre, trapperum, toilet, HTHkøkken med hvide elementer og åben forbindelse til alrum og stue med plankegulv.
1. sal er indrettet med stort soveværelse, værelse og lyst badeværelse med bruseniche og spabad.
Endvidere god kælder som dog ikke er godkendt til beboelse. I kælderen er der fleres disp rum og toilet.
Lukket have med carport med redskabsrum.
Fakta om boligen
Boligareal:
126 m²
Stue/Værelser:
1/4
Kælderstørrelse:
72 m²
Bygget/Ombygget:
1950/1992
Grundstørrelse:
352 m²
Energimærke:
Økonomisk overblik
Kontantpris
525.000 kr.
Ejerudgift pr. md.
1.288 kr.
Udbetaling
30.000 kr.
Brutto ekskl. ejerudgift
2.867 kr.
Netto ekskl. ejerudgift
2.296 kr.
Skal du også sælge?
Bestil salgsvurdering
Kontakt
Pia Thestrup
Indehaver, Ejendomsmægler MDE, KøberRådgiver m/Tryghedsmærke
Estate Boligmægleren Tårs - Tårs
Tlf. 9896 8333
Mobil. 2033 1457
Om kommunen
INDBYGGERE
63.311
GRUNDSKYLD
16,500‰
KOMMUNESKAT
26,20%
SKOLER
7
BØRNEPASNING
Vuggestue 3.547 kr./md.
Børnehave 2.164 kr./md.
Hvor langt er der til nærmeste?
Afstand til nærmeste
Transport:
135 m
Indkøb:
139 m
Daginstitution:
339 m
Skole:
355 m
Sport og fritid:
461 m
Sundhed:
8,4 km
Ladestandere:
8,51 km
Lynladere:
0 m
Rejsetid
Se hvor lang tid der er mellem denne bolig og en anden adresse
I bil:
- min
På cykel:
- min
Med offentlig transport:
- min
Køberkartotek
Skriv dig op i vores køberkartotek Mit Estate. Så får du besked, når vi får den bolig, der matcher dine drømme. Det er både nemt, enkelt og smart.
Læs mere KøberRådgivning
Ønsker du et trygt og godt boligkøb? Med KøberRådgivning kan du få hjælp til f.eks. pristjek, gennemgang af dokumenter, prisforhandlinger og meget mere.
Læs mere Formuerådgivning
Nye boligplaner er en god anledning til at give økonomien et serviceeftersyn. Vores mæglere kan henvise dig til nogle af landets dygtigste formuerådgivere.
Kontakt os