Velholdt og lys endelejlighed i naturskønne Søllerød Park
I den rolige ende af attraktive Søllerød Park, helt uden gennemkørende trafik, finder du denne sjældent udbudte endelejlighed med optimal beliggenhed, lysindfald og moderne opgraderinger.
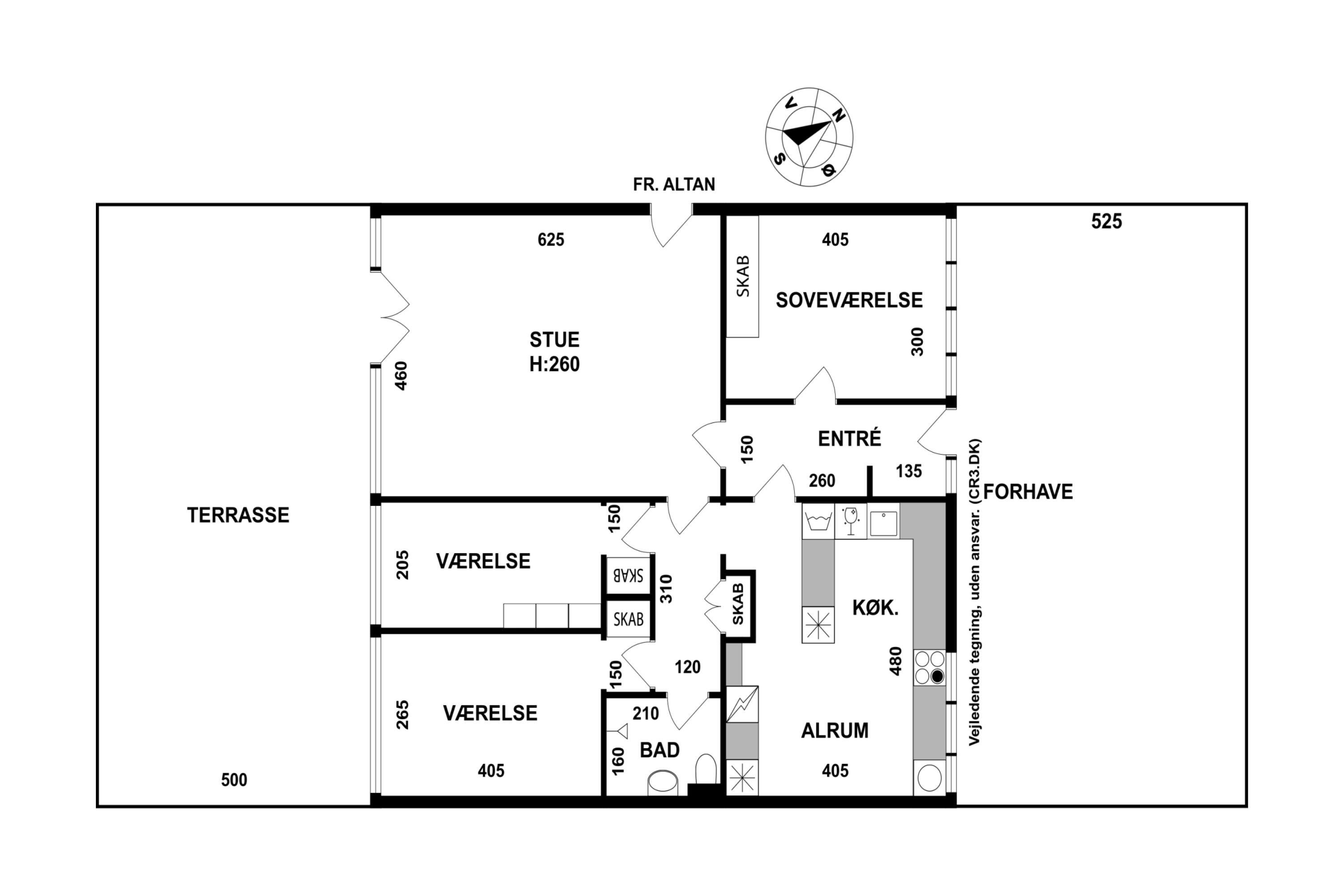
Lejligheden er oprindeligt en rummelig 5-værelses, som i 2002 blev ombygget med et stort og indbydende spisekøkken, hvor køkken og værelse er slået sammen. Det skaber et naturligt samlingspunkt i boligen med plads til både hverdag og gæster. Stuen er lys og imødekommende med vinduer mod både syd og vest, hvilket giver et fantastisk naturligt lys hele dagen. Udgang til nyanlagt sydvendt terrasse fra 2023 forlænger boligen ud i det grønne og fredelige gårdmiljø.
Boligen er løbende moderniseret og vedligeholdt med nyere thermovinduer og -døre. Ydervæggene er efterisoleret og derfor det lave varmeforbrug med nye radiatorer i 3 af rummene. I 2002 blev al strøm omlagt til IHC-elinstallationer og opgraderet til version 3 i 2025. Derudover får I et nyrenoveret badeværelse fra 2023 med gulvvarme, hvor alle gulve er afhøvlede og lakerede gulve med 3 lags lak i 2023
Her oser af hjemlig atmosfære og indretningen er lys og tidløs. I køkkenet med shakerskabe i lyst træ, på badeværelset med et lækkert, stilrent udtryk i grå og hvide toner og gennem hele boligen med lyse vægge og trægulve.
Her får du altså en solid og indflytningsklar bolig i en veldrevet bebyggelse med grønne fællesarealer, gode parkeringsforhold og kort afstand til både skov, sø, indkøb, Holte Station og gode institutioner. En oplagt mulighed for dig, der søger en komfortabel bolig i fredelige omgivelser med højt til himlen, og med moderne bekvemmeligheder lige ved hånden.
Til jer, der ønsker letheden ved lejlighed, men ikke kan undvære en lille have. Til jer, der holder af godt naboskab og trygge rammer om livet. Til jer, der ønsker at være tæt på både natur og alt det praktiske.
Vi glæder os til at vise jer rundt.
Økonomisk overblik
Skal du også sælge?
Bestil salgsvurdering 
                Om kommunen
INDBYGGERE
GRUNDSKYLD
KOMMUNESKAT
SKOLER
BØRNEPASNING
Hvor langt er der til nærmeste?
Se hvor lang tid der er mellem denne bolig og en anden adresse