Perfekt villa til den pladskrævende familie
OMRÅDE:
Rosmosevej er en hyggelig villavej i et absolut børnevenligt villakvarter. Du har hurtig adgang til flere indfaldsveje, hvis du skal ud af eller ind til byen. Lige rundt om hjørnet har du en god busforbindelse med linje 1A, som går gennem Valby og videre til Københavns centrum, og du har bare 2½ km til S-tog. Endelig er der ikke langt til store grønne arealer og skov. Sidst, men ikke mindst, så er der gåafstand til både skole, daginstitutioner samt et væld af fritidsaktiviteter.
EJENDOMMEN:
Huset er opført i 1955 og er godt placeret på grunden. Du får en meget stor, solrig baghave med flere terrasser og en stor græsplæne, som hele familien kan boltre sig på. Den ene er en hyggelig stor overdækket terrasse med aftensol. Endfelig får du også en ufattelig fin garage, der kan få det til at krible i hænderne på enhver der "roder med motorcykler" eller lignende i fritiden.
INDRETNING:
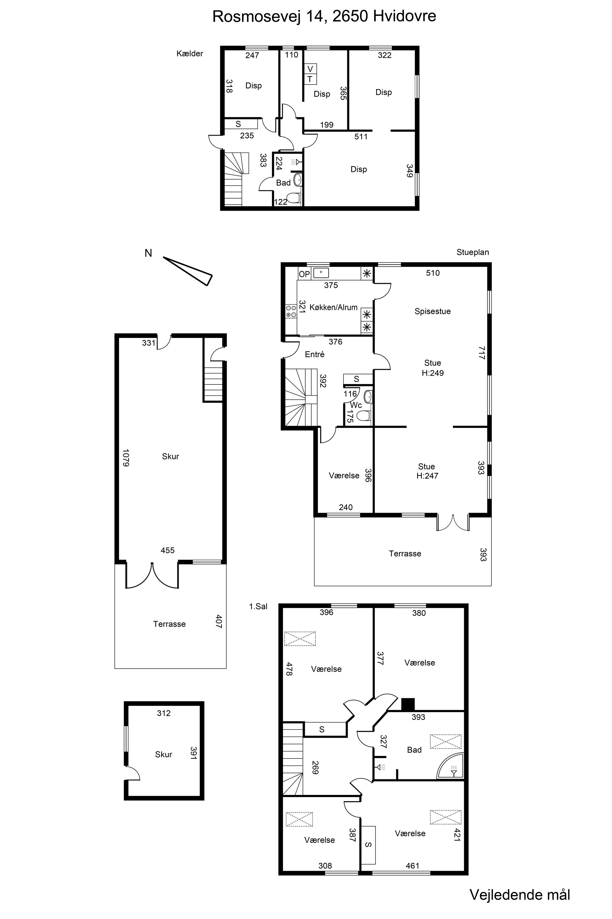
Ejendommens planløsning byder på 3 etager. I stueplan træder man indenfor i møblérbar hall med åben trappe til 1. sal. Her er god fornemmelse af lys og luft og et godt sted at tage imod dine gæster. Fra entréen har du adgang til det første af husets mange gode værelser samt et gæstetoilet. Du kan også træde lige frem og ind i de vildeste stuer – der er hele tre stk., i let forskudte plan. Den ene stue ligger i forbindelse med køkkenet og er oplagt som spisestue. Man kunne åbne, hvis drømmen går i retningen af køkken/alrum. I den anden ende er der nærmest havestuestemning med store vindues- og dørpartier mod haven. På 1. sal træder du op på stor fordelingsrepos med adgang til hele 4 værelser og et stort badeværelse med både badekar og bruseniche. Underetagen er et kapitel for sig og fortjener i den grad at blive udnyttet til andet end blot opbevaring. Her får du et badeværelse, et bryggers/fyrrum og 3 gode, beboelige disponible rum.
Økonomisk overblik
Skal du også sælge?
Bestil salgsvurdering
Kontakt
Jesper Glerup
Om kommunen
INDBYGGERE
GRUNDSKYLD
KOMMUNESKAT
SKOLER
BØRNEPASNING
Hvor langt er der til nærmeste?
Se hvor lang tid der er mellem denne bolig og en anden adresse