Fantastisk familievilla i Dragørs hyggelige Søvang
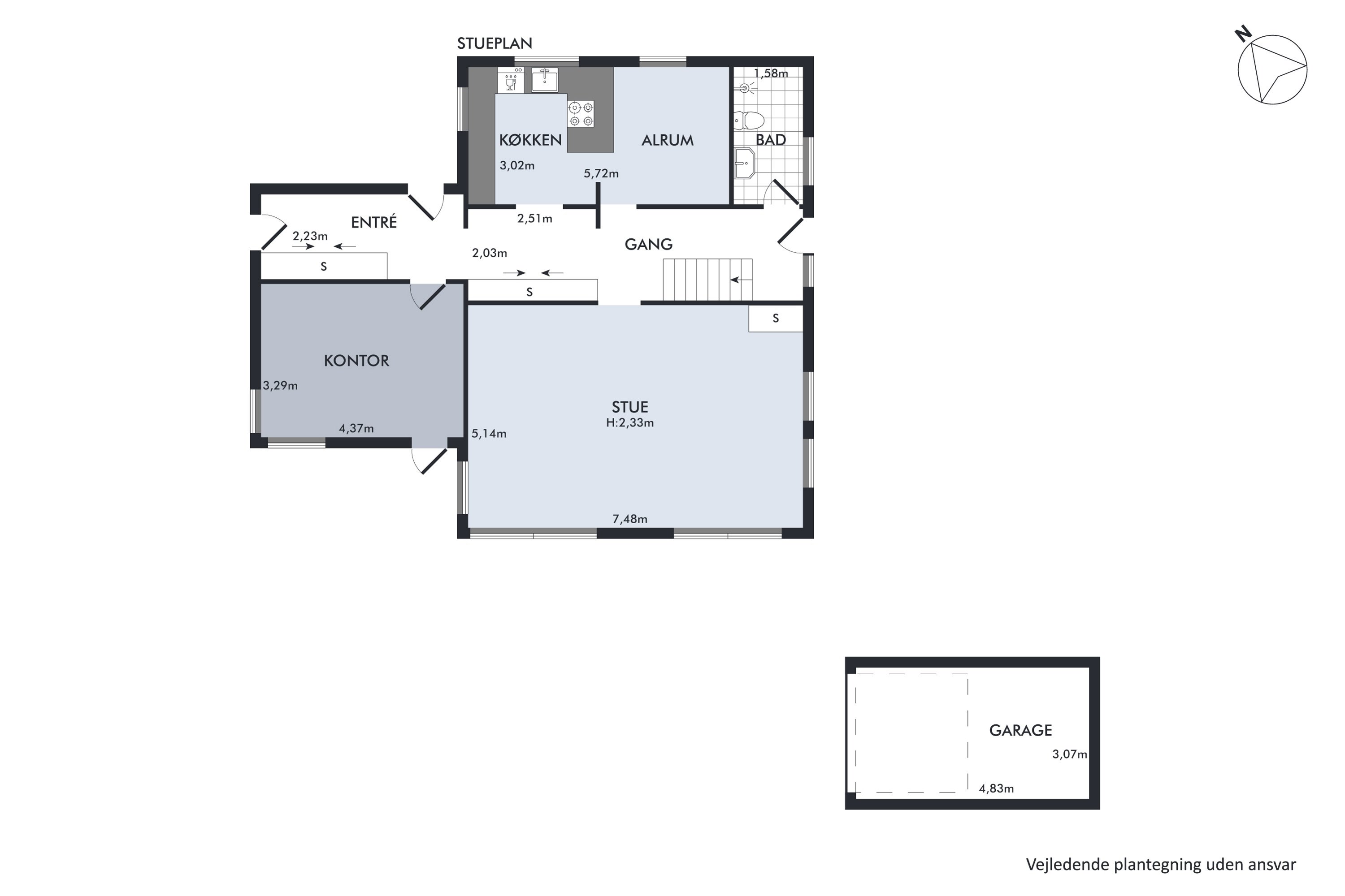
Med en gennemtænkt plan når man ofte store resultater, og det er netop sagen på Søvej 126 i Søvang, der har en rigtig god indretning til familielivet. Udgangspunktet er en bolig i to plan og 188 kvadratmeter at gøre godt med. Planløsningen siger pænt tak og udnytter pladsen optimalt. Resultatet er et hjem, der blandt andet byder på 2 gange toilet og badeværelse, 4 soveværelser og nærmest en hel etage til fælles samvær i køkken og stue. Den rummelige stil fortsætter under åben himmel med masser af albuerum i haven, ligesom adressen i Søvang giver hurtig adgang til natur i stor skala.
Til alle sider er Søvang omgivet af marker, skov og vandet i Øresund. Trafikken er begrænset, villavejene i Søvang er stille, og Søvej er en af dem. Et par minutters gang fra hoveddøren møder man såvel åbne landskaber som kystlinjen. Bølgerne er som oftest børnevenlige, men også den næsten 300 meter lange badebro, der er forbeholdt de lokale i Søvang, er populær. Børnepasning og fritidsaktiviteter hører til nabolagets indslag, mens børnene kan cykle eller tage skolebussen til skolen i St. Magleby. I bil er køretiden 10 minutter til Dragør og 25 minutter til Københavns centrum. Den sociale arena er placeret i grundplanet og formes af køkken og stue. Det store fællesrum slår hjemmets lyse tone an, som solens stråler trækkes ind fra tre verdenshjørner og ikke mindst takket være store glasflader mod syd. Etagen fuldendes af bryggers, badeværelse og stor entré med trappe til første sal. Her venter en god soveafdeling bestående af badeværelse og tre værelser. Villaen er velholdt og kombinerer den lyse stil med et indbydende udtryk.
Matriklen tæller 910 kvadratmeter, og der er tale om en ugenere grund med lys, luft - og på en sommerdag sol til hen ved 21-tiden. Haven er lukket og for børnene et legeland i liebhaverklassen med trampolin, legeredskaber, legehus og græs til at sparke bold. Det grønne sætter scenen, men er samtidig holdt uden de store pligter med blomster under kontrol i højbede, krukker og drivhus. Terrassen ud for stuen er sydvendt. Et godt sted at nyde matriklens ro og måske udtænke flere gode planer i stil med dén, der præger villaen på Søvej 126 i Søvang.
Kontakt Estate for en fremvisning
Økonomisk overblik
Skal du også sælge?
Bestil salgsvurdering
Kontakt
Aleksander Korsholm
Om kommunen
INDBYGGERE
GRUNDSKYLD
KOMMUNESKAT
SKOLER
BØRNEPASNING
Hvor langt er der til nærmeste?
Se hvor lang tid der er mellem denne bolig og en anden adresse