Stor villa med masser af plads og skøn beliggenhed nær Guldborgsund
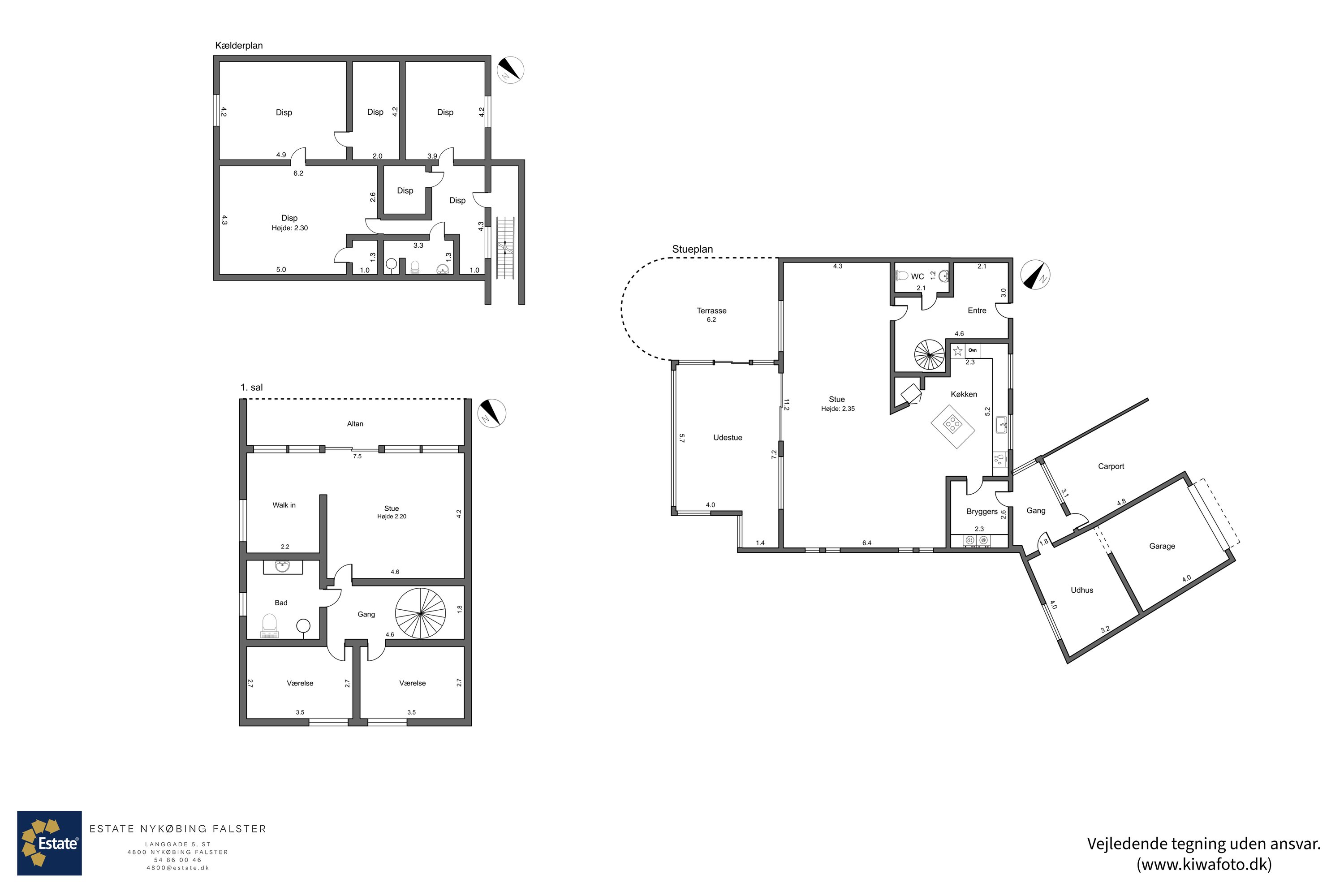
På Luxemborgvej 8 finder du en rummelig villa på hele 204 m² bolig, fordelt på to etager samt en anvendelig kælder. Huset er opført i 1972 og byder på masser af plads til både hverdagsliv, hobby og fritid og dejlige udendørsarealer. Ligeledes er her hele 50 m² garage med carport og udhusareal. Ejendommen ligger i den sydlige del af Nykøbing F, blot 5 minutters kørsel fra centrum og kun ca. 500 meter fra vandkanten af Guldborgsund ved Prinsholmen. Her får du en fredelig og børnevenlig beliggenhed tæt på både indkøb, skole, daginstitutioner og fritidsfaciliteter.
Villaen fremstår med en pudset grå facade og høj tagrejsning. Forhaven er overskuelig, mens baghaven er hyggeligt anlagt med hæk hele vejen rundt, så privatlivet er sikret. Her finder du en skøn, afskærmet terrasse, plæneareal til børneleg og et drivhus. Terrassen ligger med nem adgang fra husets udestue, hvor store vinduespartier skaber flot lysindfald og binder udelivet sammen med boligen.
Indvendigt møder du en lys og indbydende bolig med mange fine detaljer – bl.a. den romantiske trappe til førstesalen. I stueplan findes en rummelig entré, gæstetoilet og stort køkken/alrum i åben forbindelse med stuen, hvor en brændeovn skaber hygge. Fra stuen er der udgang til en lys udestue og videre adgang til haven. Desuden rummer etagen et bryggers med adgang til garage, carport og udhus.
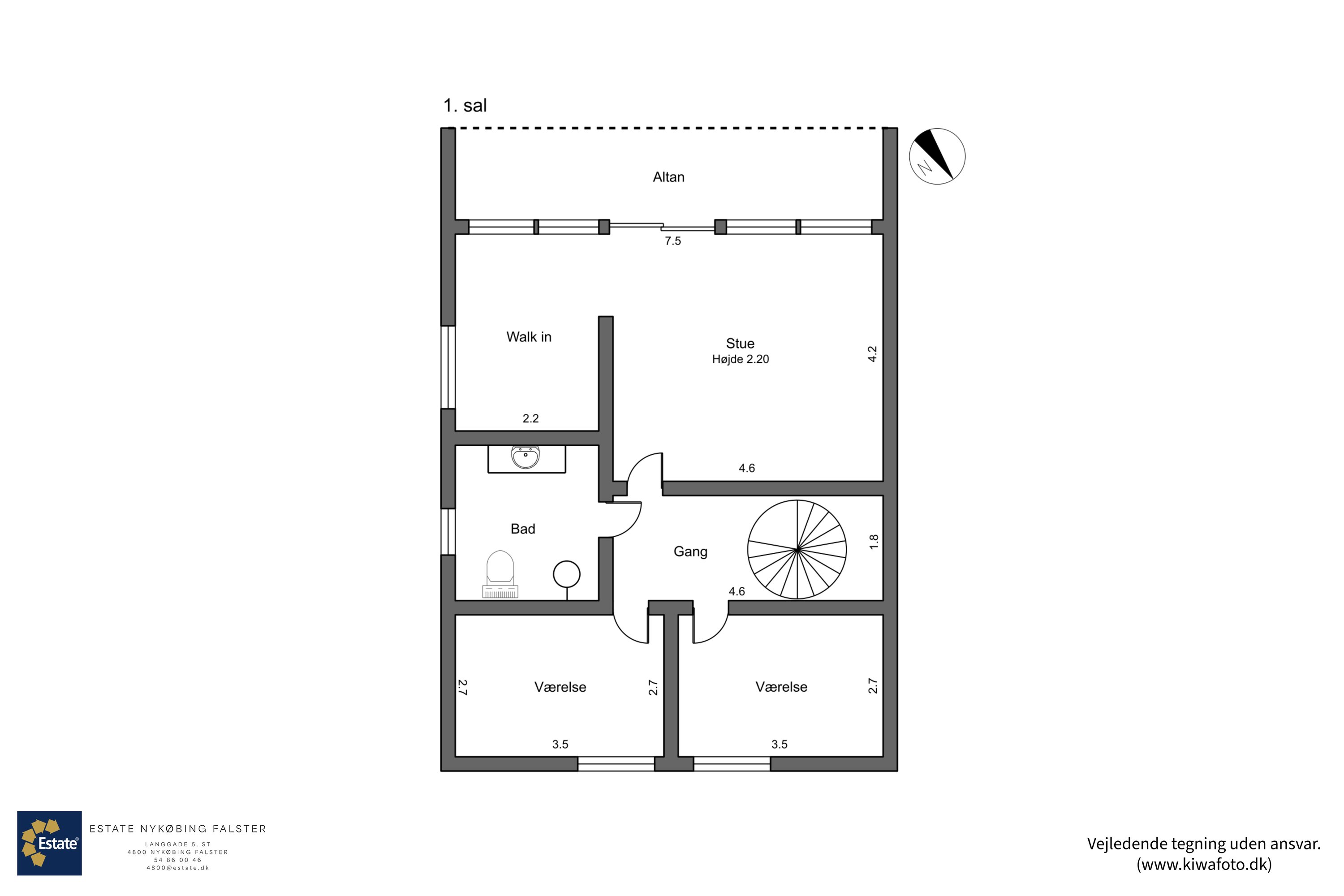
På førstesalen er der repos, et badeværelse og tre værelser, hvoraf det ene også kan anvendes som ekstra stue. Herfra er der udgang til en overdækket altan, hvor du kan nyde udelivet både dag og aften. Kælderen fuldender boligen med hele seks disponible rum, et badeværelse og gode opbevaringsmuligheder – oplagt til hobby, fitness eller gæster.
Kom og oplev denne villa med masser af plads, skønne detaljer og en attraktiv beliggenhed tæt på by og vand.
Økonomisk overblik
Skal du også sælge?
Bestil salgsvurdering
Kontakt
Thomas Kruse
Om kommunen
INDBYGGERE
GRUNDSKYLD
KOMMUNESKAT
SKOLER
BØRNEPASNING
Hvor langt er der til nærmeste?
Se hvor lang tid der er mellem denne bolig og en anden adresse