Gåafstand til Nakskov centrum
Yderst charmerende og centralt beliggende Ørnsholt villa, - beliggende i roligt kvarter.
Villaen er løbende renoveret med respekt for arkitektens streger og indretninger.
Ejendommen opvarmes med fjernvarme.
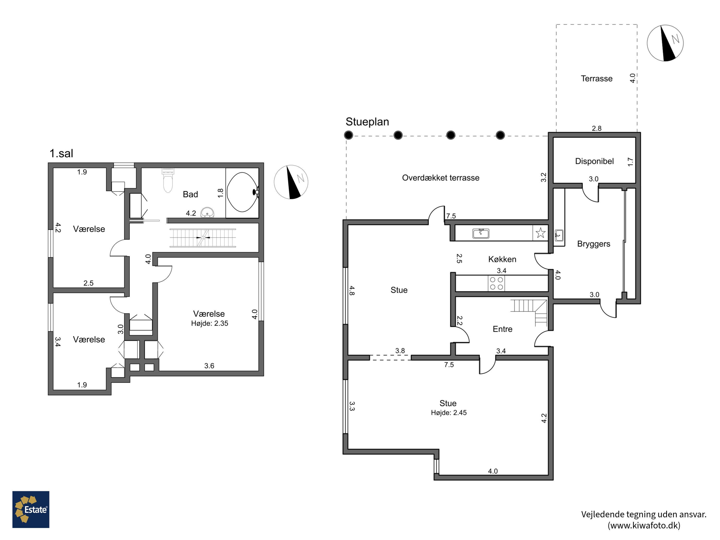
Indh. Entre med trappe til 1. sal og indgang til spisestue med originale egetræs parketgulve og udgang til vestvendt overdækket terrasse og have.
Hyggelig opholdsstue med plankegulve, original pudsede lofter m.v.
Køkken med nyere Aubo inventar, egetræs bordplader og nyere hårde hvidevarer.
Særdeles funktionel baggang og bryggers med klinkegulve og faste skabe. Depotrum m.v.
1. sal indrettet med pænt badeværelse med bruseniche, toilet, håndvask og el-gulvvarme.
Soveværelse og 2 gode børneværelser - alle med skabe og trægulve.
Indkørsel samt god lukket grund og have.
Ejendommen er beliggende i umiddelbar nærhed af Nakskov centrum - nær togstation, indkøb m.v.
Ejendommen fremtræder i meget hyggelig og charmerende stand overalt.
Ejendommen er løbende renoveret med nye vinduer, efterisolering m.v.
Årligt forbrug til fjernvarme udgør kr. 13.000,00 !
Økonomisk overblik
Skal du også sælge?
Bestil salgsvurdering
Kontakt
Ole K. Jørgensen
Om kommunen
INDBYGGERE
GRUNDSKYLD
KOMMUNESKAT
SKOLER
BØRNEPASNING
Hvor langt er der til nærmeste?
Se hvor lang tid der er mellem denne bolig og en anden adresse