Veludnyttet etplansvilla i Kvaglund med hobbygarage og flot have
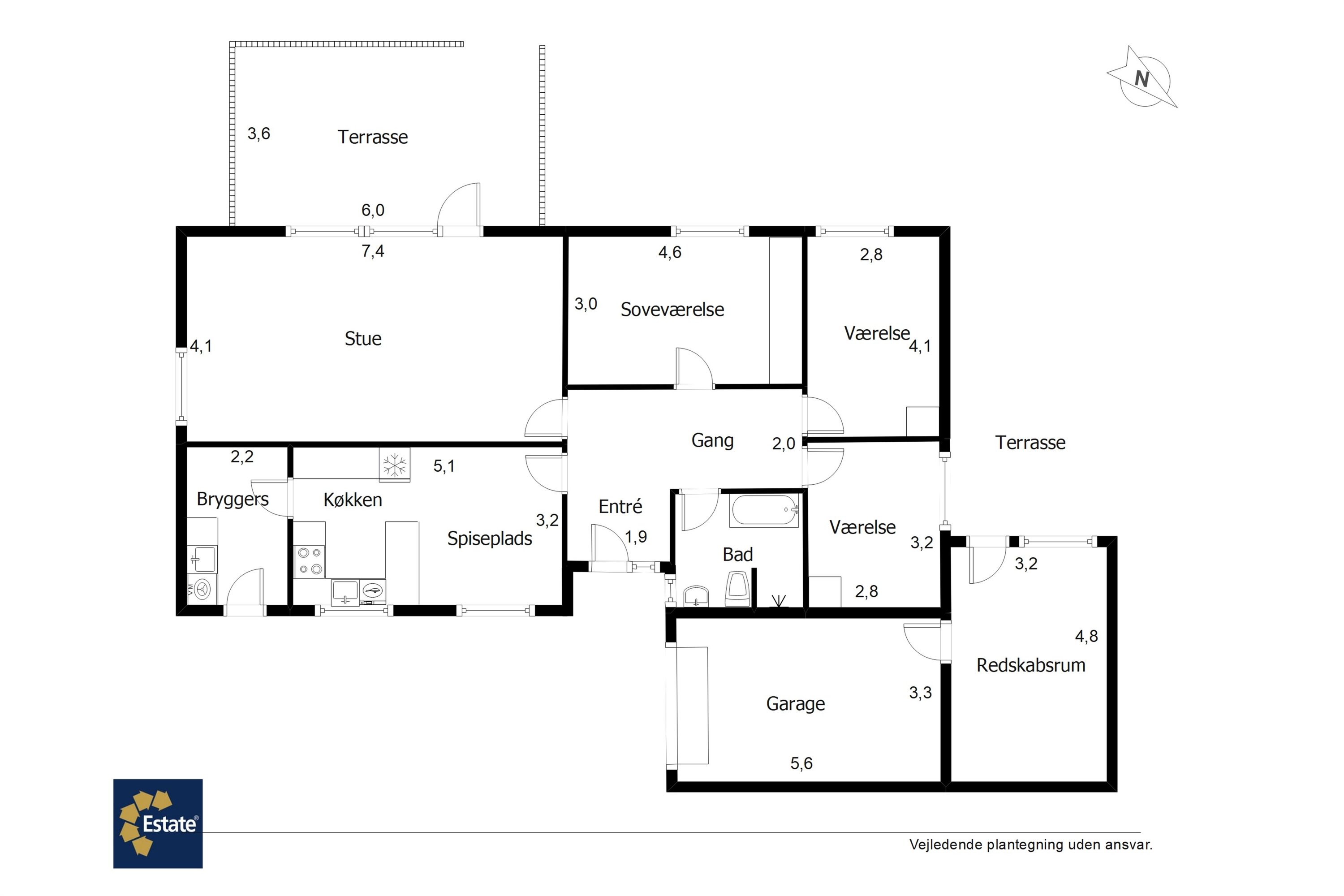
Godt placeret i bunden af et lukket vænge i Kvaglund står denne solide rødstensvilla klar til at byde nye ejere velkommen. Boligen er født med en god planløsning, der opdeler soveafsnit med tre værelser og opholdsmiljø, mens udelivet leves i en velanlagt have med hyggelige terrasser og optimale solforhold. Hertil følger 40 m2 garage med opvarmet rum til værksted og hobby.
Huset ligger i et roligt kvarter, hvor trygge stisystemer forbinder dig med grønne arealer, legepladser og den åbne natur, der omfavner Kvaglund. Stierne giver også sikker vej til Kvaglundskolen, ligesom der er kort afstand til børnepasning, fritidsfaciliteter, indkøb og ungdomsuddannelse. Der er ligeledes let adgang til Esbjergs bymidte og motorvejsnettet.
Ejendommen, der blev opført i 1975, er passet med nænsom hånd, men fremtræder hele vejen rundt i original stand. Det giver mulighed for at sætte eget præg på stil og indretning, hvis du går efter et mere moderne hjem. Eksempelvis kommer du langt med en opdatering af boligens vådrum og ved at åbne op mellem spisekøkken og stue for ét stort, åbent opholdsområde.
Hvis du ikke har behov for at ændre nu, kan du se frem til et funktionelt køkken-alrum i forbindelse med en rummelig stue, hvorfra der er udgang til en sydvestvendt fliseterrasse. Ved siden af køkkenet får du et bryggers med selvstændig indgang, og via husets entré er der adgang til alle tre værelser og et badeværelse med bruser og badekar. Alle værelser har desuden indbygningsskabe.
Du kan også nyde godt af den murede garage med to rum som integreret del af huset. Her er god plads til at etablere værksted til diverse hobbysysler.
Huset ligger ”rigtigt” på grunden og er omkranset af tæt hæk og gamle, charmerende træer, hvilket danner en ugeneret ramme om haven. Haven er ligesom huset passet flot og indbyder både til leg og afslapning på terrasserne.
Velkommen til Lindelunden 19 i Kvaglund!
Økonomisk overblik
Skal du også sælge?
Bestil salgsvurdering
Kontakt
Robin Thybo
Om kommunen
INDBYGGERE
GRUNDSKYLD
KOMMUNESKAT
SKOLER
BØRNEPASNING
Hvor langt er der til nærmeste?
Se hvor lang tid der er mellem denne bolig og en anden adresse