+ 56
Smedegårdvej 11 Tvis, 7500 Holstebro
Villa | 352 m2 | 7 vær. | 4.495.000 kr.
Bo på landet i byen
Vil du bo på landet i byen, så er her en sjælden mulighed.
På Smedegårdvej 11 har du de landlige omgivelser, god plads både ude og inde samt meget anvendlige udbygninger - vel at mærke samtidig med, at du er gå-/cykelafstand til skole, børnepasning, indkøb og idrætshal.
Ejendommen præsenterer sig utrolig flot og allerede, når du kommer til ejendommen, fornemmer du ved den elektriske port til allén, at her er tale om noget helt særligt.
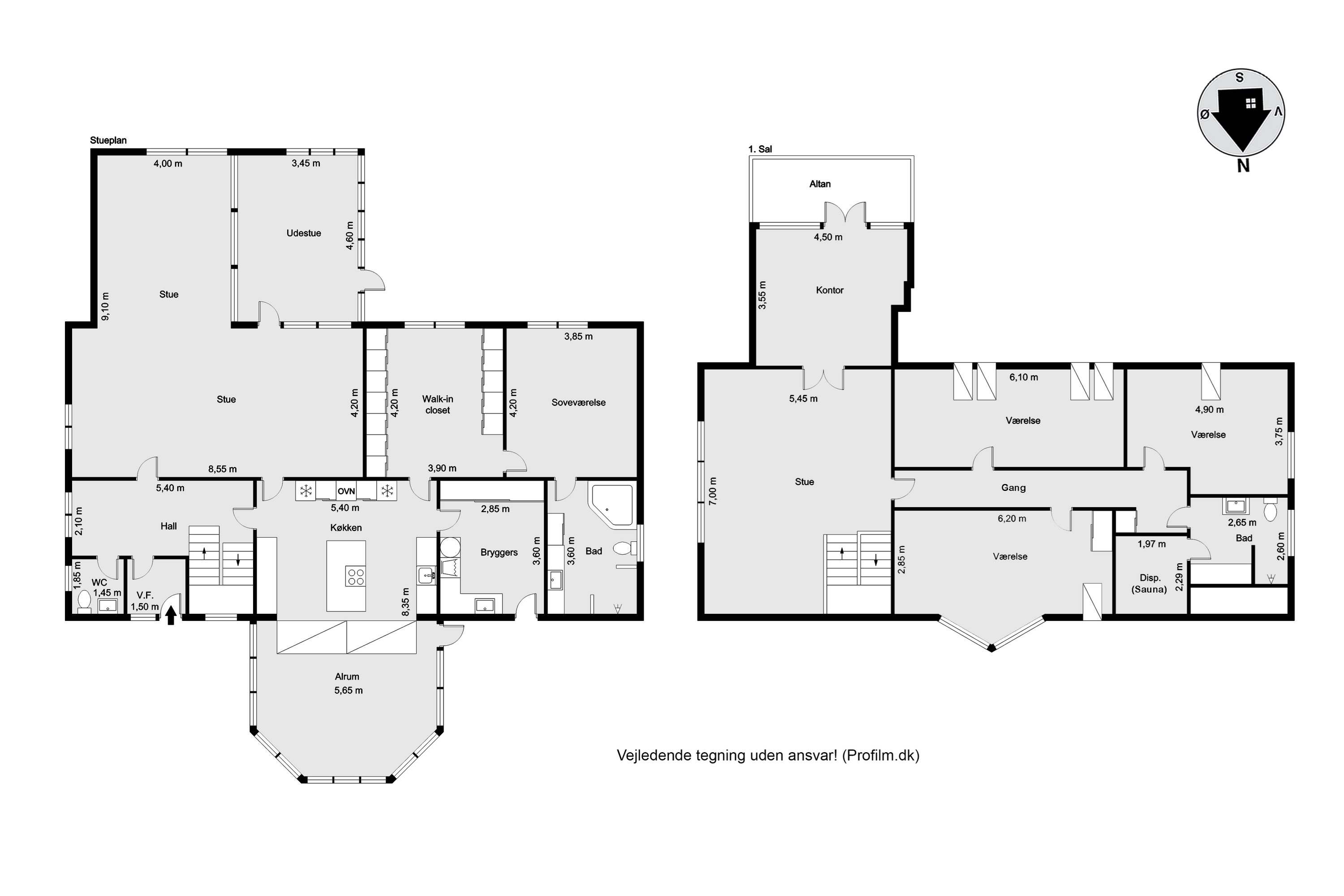
Stuehuset, som er idéel til den pladskrævende familie, er indrettet med bryggers, dejligt køkken-alrum med skønt lysindfald, stor vinkelstue med udgang til udestue, forældreafdeling med stort walk-in, soveværelse og badeværelse med brus og spa.
Husets anden indgang er til hall med gæstetoilet og med opgang til 1. sal samt adgang til stuen og alrummet.
1. salen byder på stue med dejligt kik til haven, kontor/værelse, børneafdeling med fordelingsgang til 3 værelser og badeværelse med brus og depot.
Super spændende udhusbygning med mange anvendelsesmuligheder - se billederne, men vurder selv på en fremvisning - det er ret interessante kvadratmeter.
Endvidere særskilt dobbelt garage.
Flot anlagt have med allé, lille sø, stier, græsplæner og mange hyggekroge.
Slutteligt består en del af grunden af mark.
En spændende ejendom med en super beliggenhed.
Økonomisk overblik
Skal du også sælge?
Bestil salgsvurdering
Kontakt
Peter Elmholdt Lauridsen
Om kommunen
INDBYGGERE
GRUNDSKYLD
KOMMUNESKAT
SKOLER
BØRNEPASNING
Hvor langt er der til nærmeste?
Se hvor lang tid der er mellem denne bolig og en anden adresse
Køberkartotek
KøberRådgivning
Formuerådgivning
Lignende boliger
-
Villa: Østergade 40, 7500 HolstebroVilla
Østergade 40, 7500 Holstebro
8 vær. | 280/114 m2 | 3.950.000 kr. -
Villa: Granbakken 9, 7500 Holstebro
Ny pris
VillaGranbakken 9, 7500 Holstebro
7 vær. | 296/125 m2 | 5.345.000 kr. -
Villa: Skorstensfejeren 2, Mejrup, 7500 HolstebroVilla
Skorstensfejeren 2, Mejrup, 7500 Holstebro
6 vær. | 250 m2 | 3.995.000 kr. -
Villa: Kløvermarken 27, 7500 HolstebroVilla
Kløvermarken 27, 7500 Holstebro
5 vær. | 186 m2 | 3.250.000 kr. -
Villa: Lyngkrogen 26, Mejdal, 7500 Holstebro
Nyhed
VillaLyngkrogen 26, Mejdal, 7500 Holstebro
6 vær. | 179 m2 | 3.195.000 kr. -
Villa: Ole Rømers Vej 21, 7500 HolstebroVilla
Ole Rømers Vej 21, 7500 Holstebro
6 vær. | 208 m2 | 2.545.000 kr. -
Villa: Lægårdvej 59, 7500 HolstebroVilla
Lægårdvej 59, 7500 Holstebro
5 vær. | 150/75 m2 | 2.595.000 kr. -
Villa: P O Pedersens Vej 65, 7500 HolstebroVilla
P O Pedersens Vej 65, 7500 Holstebro
5 vær. | 141 m2 | 2.235.000 kr. -
Villa: Rudesvej 6, 7500 HolstebroVilla
Rudesvej 6, 7500 Holstebro
2 vær. | 140/75 m2 | 1.695.000 kr. -
Villa: Viborgvej 225, Skave, 7500 HolstebroVilla
Viborgvej 225, Skave, 7500 Holstebro
6 vær. | 204/42 m2 | 500.000 kr. -
Villa: Gl. Hornshøjvej 7, 7500 HolstebroVilla
Gl. Hornshøjvej 7, 7500 Holstebro
3 vær. | 80/80 m2 | 1.995.000 kr. -
Villa: Ryesvej 26, 7500 HolstebroVilla
Ryesvej 26, 7500 Holstebro
4 vær. | 82/73 m2 | 1.350.000 kr. -
Villa: Fredensgade 1, 7500 HolstebroVilla
Fredensgade 1, 7500 Holstebro
2 vær. | 80 m2 | 975.000 kr.