Indflytningsklar landejendom med egen ridebane og masser af plads
Drømmer du om livet på landet med god plads, egen ridebane og fredelige omgivelser? Så byder denne velholdte og indflytningsklare ejendom i Villendrup på den perfekte ramme – uanset om du er hestemenneske eller blot ønsker natur og albuerum omkring dig. Ejendommen ligger naturskønt og roligt, og grunden på hele 4.339 m² rummer både stor græsplæne og privat ridebane. Der er desuden mulighed for at leje ekstra jord af naboen, hvilket giver ideelle forhold til sommergræs og fold.
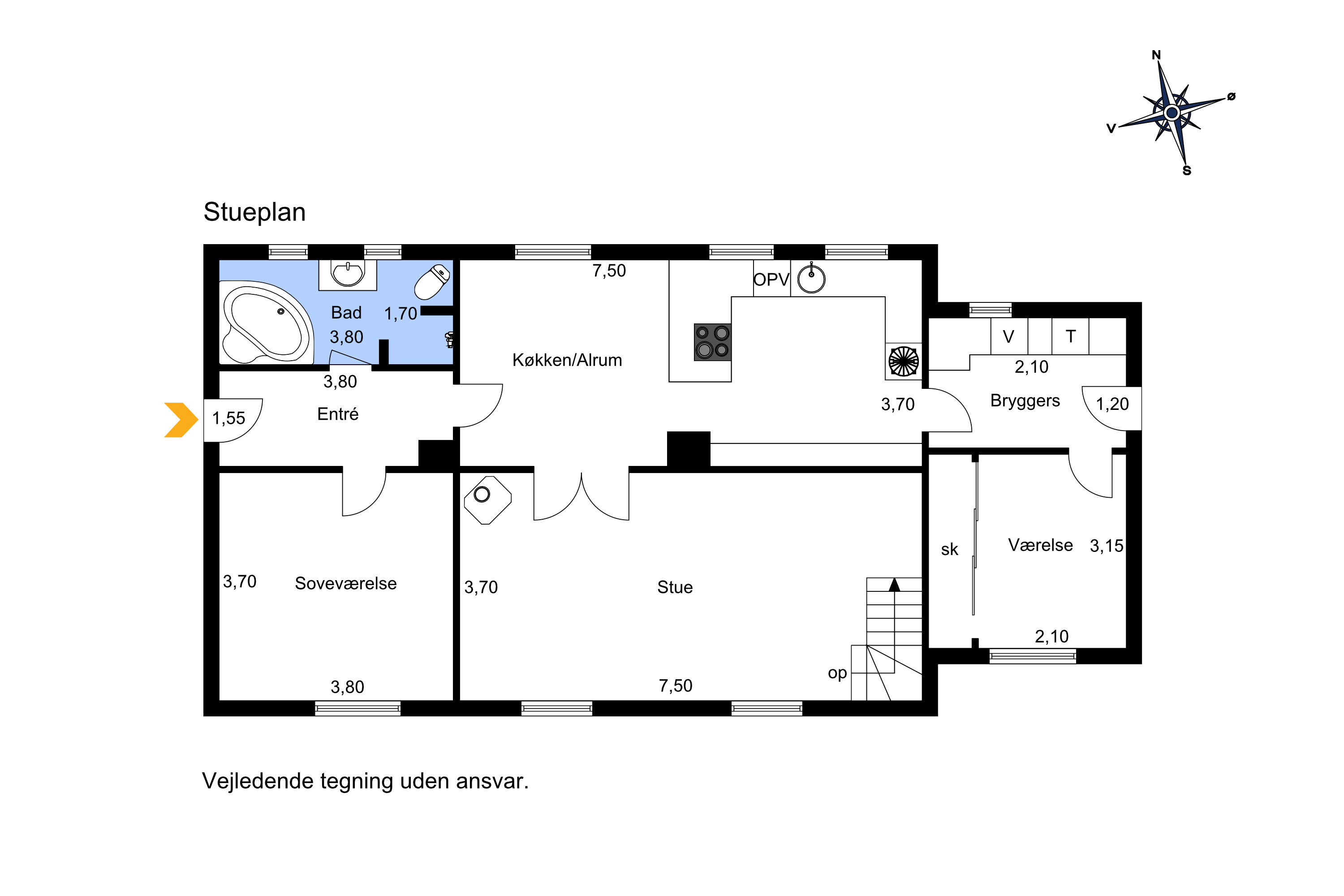
Boligen er løbende moderniseret og fremstår i flot stand både inde og ude. Der er blandt andet gulvvarme i hele stueplan (undtagen badeværelset), nyt tag fra omkring 2013, delvist udskiftede vinduer, døre og gulve – og opvarmning sker via pillefyr og hyggelig brændeovn. Huset er velindrettet med et lyst og rummeligt køkken-alrum med hvide elementer fra HTH/IKEA, god skabsplads og moderne hårde hvidevarer. Køkkenet har åben forbindelse til alrummet og videre til en hyggelig stue med brændeovn og udsigt til ridebanen – perfekt, hvis man gerne vil holde øje med børnene, mens man laver mad. I stueplan findes desuden to gode værelser – placeret i hver sin ende af huset – samt et stort badeværelse med hjørnespa, bruseniche og et praktisk bryggers.
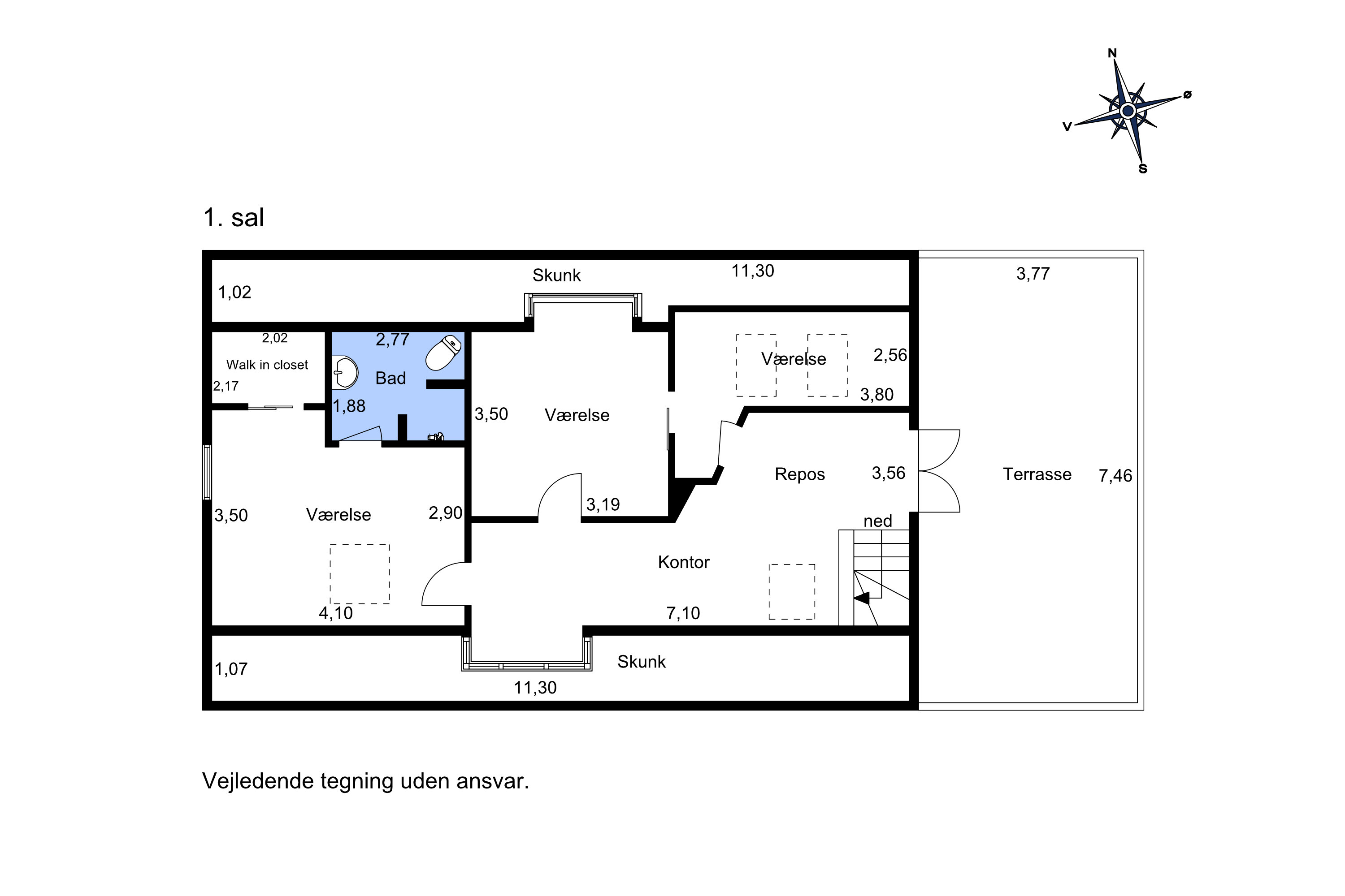
På førstesalen mødes du af et stort og lyst repos med plads til kontor eller hyggekrog og udgang til en dejlig altan med udsigt over markerne. Heroppe er der to gode værelser samt et soveværelse med walk-in closet og eget badeværelse med bruseniche. Loft til kip flere steder skaber en behagelig rumfornemmelse.
Til ejendommen hører et stort udhus på ca. 138 m², hvor du i dag finder to hestebokse og god plads til opbevaring af hø og halm. Derudover er her fyrrum og en lukket garage. Der er allerede forberedt til nem installation af luft-til-vand-varmepumpe, hvis du ønsker en mere energieffektiv løsning.
Ejendommen ligger mellem Randers og Aarhus, med kun 10 minutter til motorvej E45, 15 minutter til Randers Storcenter og ca. 30 minutter til Aarhus C. Skolebussen kører til Ådalskolen i Skørring, og der er også gode busforbindelser til daginstitutioner, privatskole og dagligvareindkøb i Voldum og Mejlby. Til de større børn er der fine transportmuligheder til ungdomsuddannelser i Randers.
Her får du en skøn og rummelig ejendom i naturskønne omgivelser med god plads til både familie og fritidsinteresser – og med muligheden for at skabe netop det fristed, du drømmer om.
Økonomisk overblik
Skal du også sælge?
Bestil salgsvurdering
Kontakt
Thomas Hansen
Om kommunen
INDBYGGERE
GRUNDSKYLD
KOMMUNESKAT
SKOLER
BØRNEPASNING
Hvor langt er der til nærmeste?
Se hvor lang tid der er mellem denne bolig og en anden adresse