Charmerende villa med udsigt til Nørreådalen
Tag med til Stationen 3 i den hyggelige by Vejrumbro, som grænser op til den smukke Nørreådal.
Vejens navn stammer fra fortiden, hvor jernbanen mellem Viborg og Randers løb lige neden for nabohuset. I dag er jernbanen omdannet til en vandre- og cykelsti, der stadig forbinder de to byer – til stor glæde for både motionister og områdets beboere. Stationen er en lille, rolig vej med en vendeplads, som sjældent benyttes af andre end de fire husstande med adresse her.
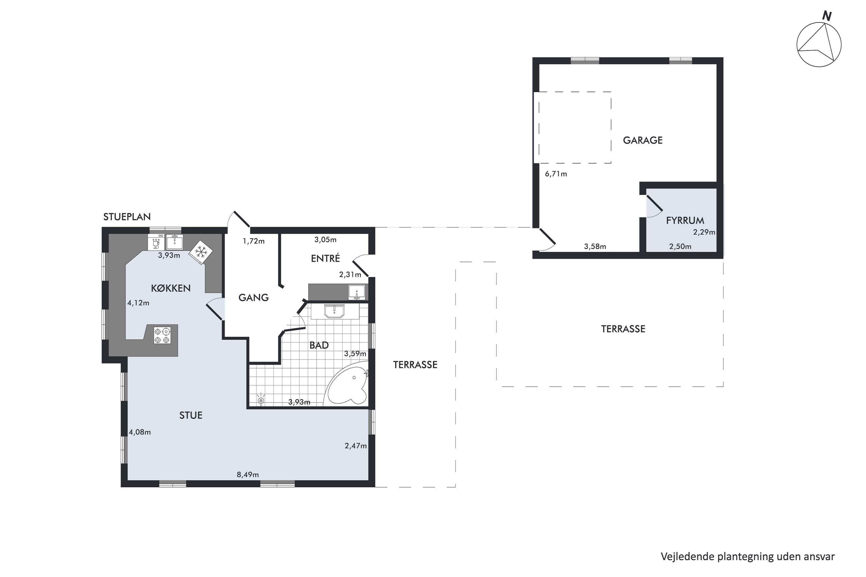
Selve ejendommen er en klassisk murermestervilla fra 1933, som løbende er blevet forbedret og moderniseret. I dag fremstår den som et moderne og indbydende hjem – blandt andet med gulvvarme i både kælder og stueplan. Senest i 2001 blev huset renoveret med blandt andet nyt køkken og badeværelse samt opført garage på hele 49 m².
Indenfor bydes du velkommen i en entré med klinkegulv og god opbevaringsplads samt vaskefaciliteter. Hallen ligger centralt i huset, og herfra fører den klassiske halvsvingstrappe op til første sal. Badeværelset i stueplan er rummeligt og har både badekar og bruseniche. Køkkenet er større, end man normalt forventer af denne type ejendom – installeret af en tidligere ejer med erfaring fra køkkenbranchen, så her er der ikke sparet på noget. Et lyst alrum og en hyggelig spiseafdeling smelter flot sammen og skaber et dejligt opholdsrum med masser af atmosfære.
På første sal finder du endnu et badeværelse med bruseniche, et værelse samt et stort soveværelse, som nemt kan opdeles i to, som det tidligere har været (se plantegning). Loftsrummet har allerede trægulv og loftsbeklædning og kan nemt indrettes med hems til værelserne – spørg gerne om at se det ved fremvisning.
Kælderen byder på gulvvarme i det meste af arealet og rummer tre gode disponible rum, der kan anvendes efter behov. Sælger bruger i dag ét af rummene som påklædningsværelse og et andet som legeværelse. En teenager vil elske at have sin egen etage her.
Haven skaber en fredfyldt ramme om huset, med udsigt til naboens græssende heste og den smukke, bølgende Nørreådal. Her er også et haveskur samt en overdækket terrasse. Garagen har port og plads til én bil, da der også er indbygget fyrrum med pillefyr.
En meget harmonisk ejendom i en landsby med både skole, daginstitution, købmand, sportsfaciliteter og meget mere.
Drømmer du om et flot hjem i rolige og naturskønne omgivelser, bør du opleve denne ejendom, inden du beslutter dig.
- Egen have
Økonomisk overblik
Skal du også sælge?
Bestil salgsvurdering
Kontakt
Jesper Edward Rasmussen
Om kommunen
INDBYGGERE
GRUNDSKYLD
KOMMUNESKAT
SKOLER
BØRNEPASNING
Hvor langt er der til nærmeste?
Se hvor lang tid der er mellem denne bolig og en anden adresse