En attraktiv bolig uden spildplads
Idræts Allé 9, Stenhøj, 9900 Frederikshavn er en attraktiv bolig med en central beliggenhed og gode rammer for både børnefamilier og andre, der ønsker at bo tæt på naturen og samtidig have en praktisk bolig i rolige omgivelser.
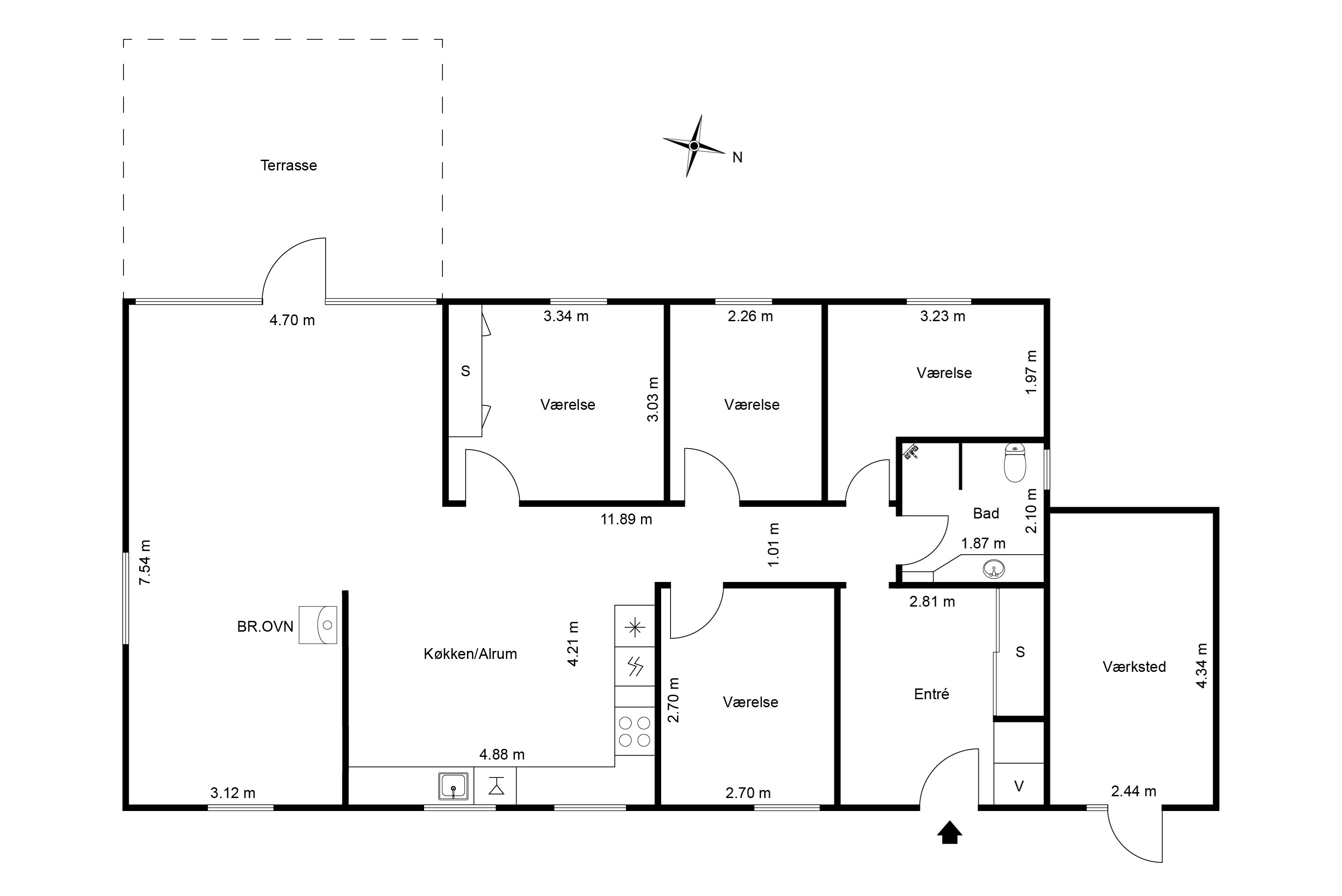
Forhaven er flisebelagt helt ind til fordøren, så du kan komme tørskoet ind i boligen - Her bliver du mødt af flot renoveret bryggers med store flotte 60 x 60 grå fliser - skydedørsvæg til teknik samt plads til vaskemaskinen og der er bordplads , så vasketøjet kan ordnes her. Herfra kommer man ind i en fordelingsgang. Går man til højre har man badeværelset med hvidt arrangement og hjørne brus. Derudover finder man 3 værelser og et soveværelse med skabsvæg. Alle værelser er med laminat gulve og hvide lofter.
Fordelingsgangen går direkte ind i køkken/alrum samt stuen. Dejlig hvidt køkken med grebsfri låger samt massiv træbordplade. Ovnen sidder i ergonomisk højde og der er plads til spisebordet. køkkenet er i åben forbindelse til stuen, hvor man finder brændeovn - Akustikvæg - Stort vinduesparti med udgang til syd vest vendt træterrasse med udsigt udover haven og området.
Beliggenheden på lukket villavej gør at børnene kan lege sikkert og der er en stor græsplæne med til huset, så boldspil både hjemme og på stadion vil være en mulighed. På den ekstra grund er der mindre skur til plæneklipper / brænde / cykler mv. og der er lavet en ekstra terrasse på grunden.
For enden af boligen er den tidligere garage indrettet til fint hobbyrum / værksted, så der vil være mulighed for at lave aktiviteter der.
Stenhøj byder derudover også på skøn natur tæt på byen, hvilket giver gode muligheder for både gåture, cykelture og udendørsaktiviteter. Med gode vejforbindelser er med til at gøre det let at pendle til og fra byen.
En attraktiv bolig som virkelig fortjener et besøg.
Økonomisk overblik
Skal du også sælge?
Bestil salgsvurdering
Kontakt
Pia Thestrup
Om kommunen
INDBYGGERE
GRUNDSKYLD
KOMMUNESKAT
SKOLER
BØRNEPASNING
Hvor langt er der til nærmeste?
Se hvor lang tid der er mellem denne bolig og en anden adresse