Stort og eksklusivt indrettet enderækkehus fra 2023
I Ullerød bliver I en del af en rolig og tryg bydel, omgivet af grønt og med udbredte stisystemer, der fører rundt til både skole, daginstitutioner, indkøb og smuk natur. Her er det hele ganske tæt på og Hillerøds centrum nås på få minutter i bil og du har gå-afstand til bus.
De rummelige rækkehuse på Amorbuen er opført i 2023 og opfylder all de ønsker man kunne have til en moderne bolig. Rummene er store og lyse og suppleres i de varme måneder af skønne udemiljøer i både for- og baghave.
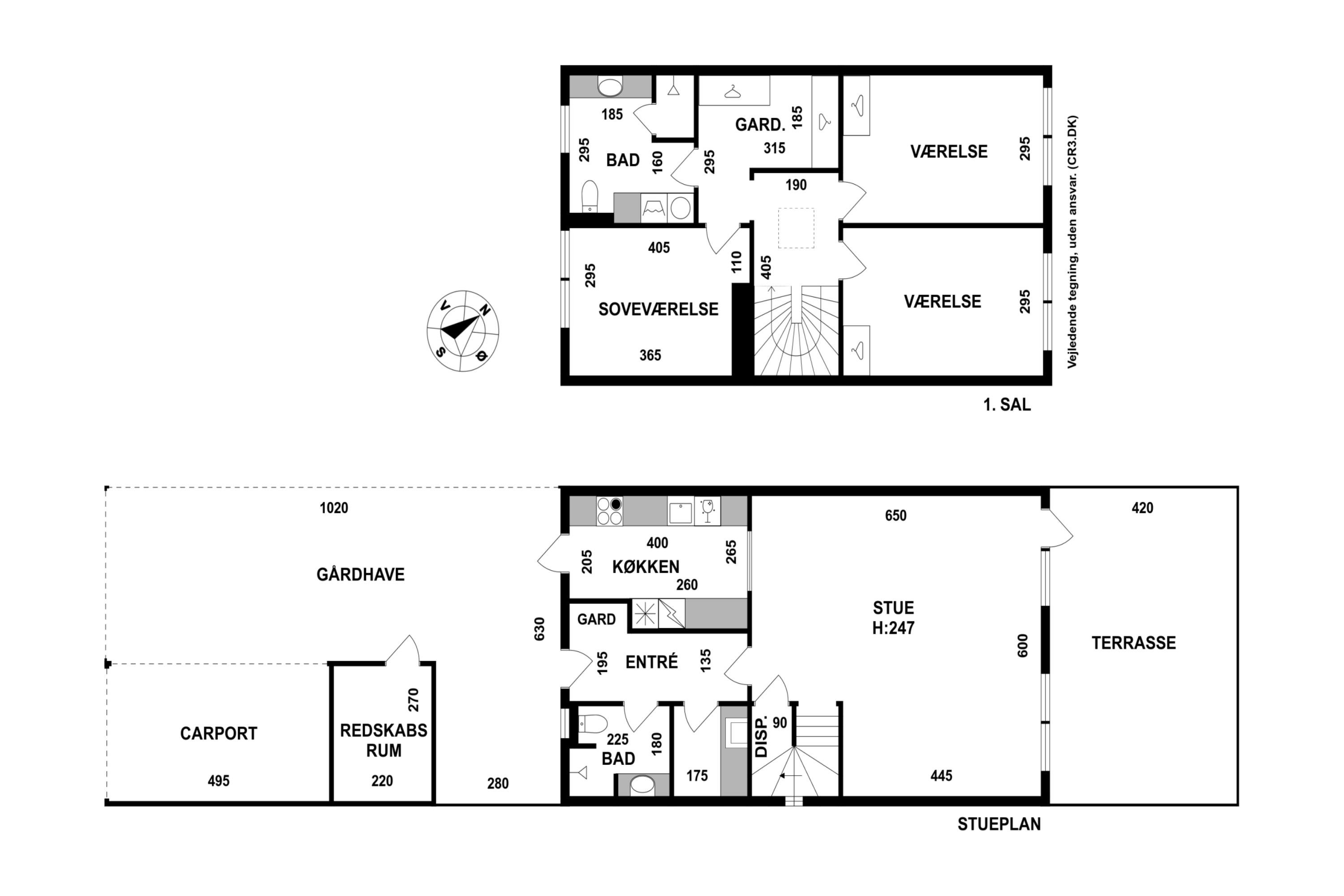
Boligen fordeler sig over to fulde plan, så du har ingen skråvægge på 1. salen. Opført af Ling & Risør, prioriteret med store lyse rum og med et materialevalg i topklasse. Her kan bl.a. nævnes at alle hvidevarer er fra Miele og huset tag er et bæredygtigt Sedums tag. Her inviterer en rummelig entré med plads til sko og tøj indenfor og giver videre adgang ind i hjemmet. Det ene af husets to badeværelser, et praktisk bryggers/viktualierum og et lyst og lækkert køkken i åben forbindelse med en stor og indretningsvenlig stue optager pladsen her. Fra køkkenet er der udgang til den skønne gårdhave foran huset og fra stuen til en hyggelig terrasse bag huset. De to udemiljøer fungerer i de lyse måneder som naturlige forlængelser af fællesrummene, hvor I kan invitere venner og familie til sommerens selskaber og holde øje med børnene, når de løber ud i kvarteret og leger. Terrasse fra stuen er korrekt placeret så du får sol lige fra middag og resten af dagen.
På førstesalen venter en rummelig og lys repos, med elektrisk tagvindue, 2 store værelser, begge med indbyggede skab. Slutligt men ikke mindst en forældreafdeling med stort soveværelse, wallk-in garderoberum samt husets andet badeværelse, som er indrettet med vaskemaskine og tørretumbler samt mange smagfuldt valg af materialer.
Med til bolig høre egen carport, isoleret udhus samt gode muligheder for elbillader og gæsteparkerings- pladsen tæt herpå.
Rundt i huset er valgene faldet på kvalitetsmaterialer i lyse og neutrale farver. Her får I altså det perfekte, blanke kanvas til jeres individuelle stil, hvor I nemt kan sætte jeres eget præg.
Vi glæder os meget til at vise jer rundt.
Økonomisk overblik
Skal du også sælge?
Bestil salgsvurdering
Om kommunen
INDBYGGERE
GRUNDSKYLD
KOMMUNESKAT
SKOLER
BØRNEPASNING
Hvor langt er der til nærmeste?
Se hvor lang tid der er mellem denne bolig og en anden adresse