Ejendom til totalrenovering
Denne villa beliggende på Hømvej 1 i 4100 Ringsted repræsenterer en ejendom, der venter på at blive vækket til live gennem en kærlig og omfattende renovering. Med sit boligareal på 123 m² fordelt på to etager, tilbyder denne bolig et utal af muligheder for dem, som kan se potentialet i ældre bygninger.
Høm byder på en behagelig nærhed til hverdagsfaciliteter såsom indkøbsmuligheder og skole, hvilket gør det til et praktisk valg for både familier og par. Afstanden til Ringsted Station er overkommelig med kun 4 km, og for dem der har behov for at pendle, er der blot 6,5 km til Vestmotorvejen, hvilket sikrer nem adgang til større byer.
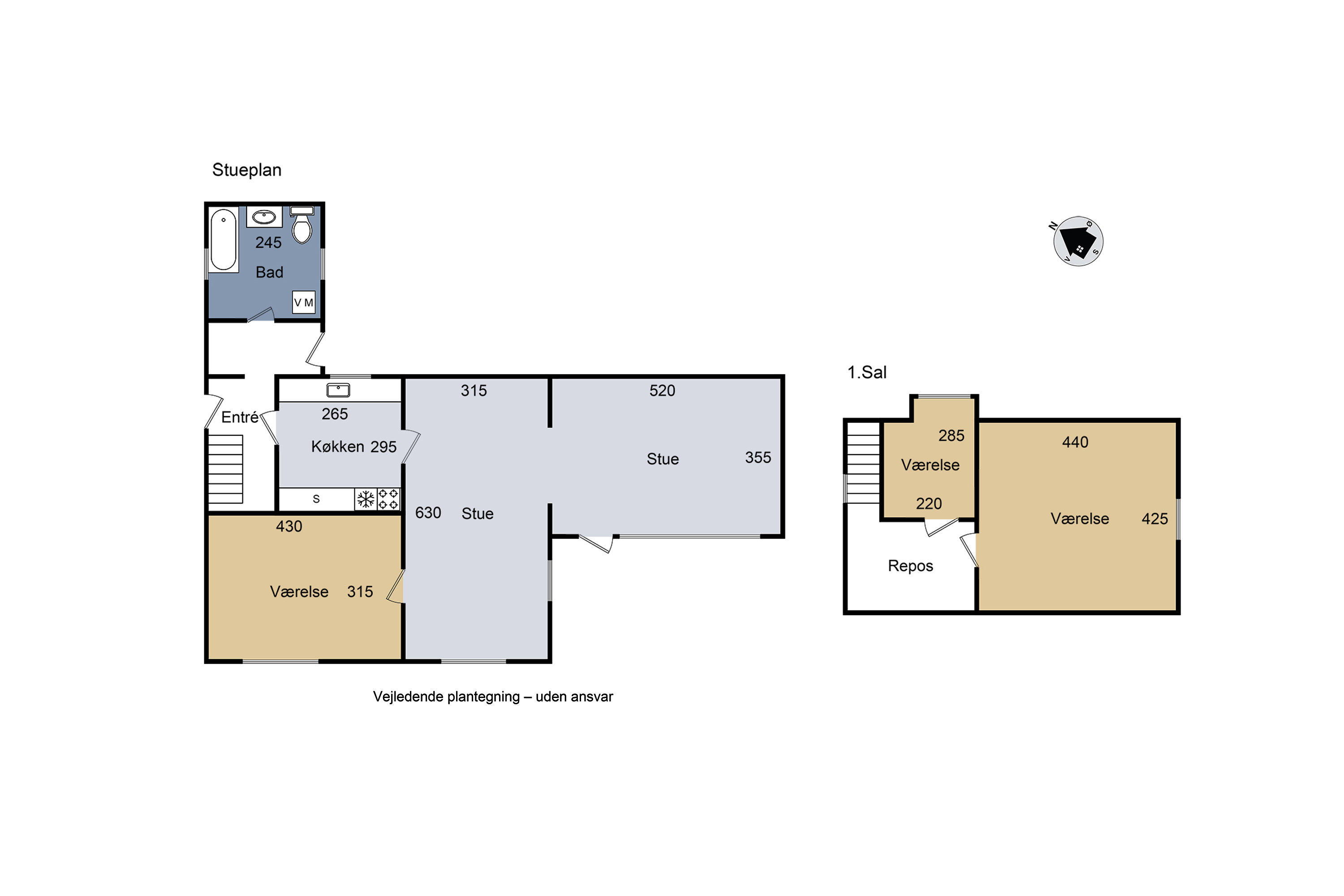
Husets stueetage, med sine 91 m², indleder med en funktionel entré, der fører videre til resten af boligens rum, herunder to stuer, der tidligere har dannet ramme om daglig socialt samvær. Køkkenet ligger i forlængelse heraf og har mulighed for en ombygning, så det fremstår som et nutidigt køkken-alrum. Stueetagen indeholder desuden et soveværelse samt et badeværelse, der begge kræver nænsom istandsættelse for at møde moderne standarder.
På 1. salen finder vi to værelser, der byder på kreative muligheder for indretning. Disse 32 m² er ideelle til enten børneværelser, hjemmekontor eller gæsteværelser.
Den omgivende grund på 1.213 m² er bemærkelsesværdig generøs, hvilket giver plads til diverse udendørsprojekter. Om det er en prydhave, køkkenhave eller blot et åbent område til afslapning, begrænses mulighederne kun af din egen fantasi.
Selvom ejendommen er i ældre stand og kræver en større indsats for at opnå fuld modernisering, byder den på mange muligheder. Med den rette indsats kan denne villa blive det varme og indbydende hjem, som den tidligere har været. Den nærhed, man har til både byliv og transportknudepunkter, kombineret med de åbne muligheder for tilpasning og udvikling, gør denne ejendom til et meget attraktivt projekt for den rette person.
Økonomisk overblik
Skal du også sælge?
Bestil salgsvurdering
Kontakt
René Lauridsen Kryger
Om kommunen
INDBYGGERE
GRUNDSKYLD
KOMMUNESKAT
SKOLER
BØRNEPASNING
Hvor langt er der til nærmeste?
Se hvor lang tid der er mellem denne bolig og en anden adresse