Sønderho: Charmerende stråtækt helårshus med udsigt til Esbjerg
Midt i idylliske Sønderho ligger dette rummelige og velholdte helårshus, opført i klassisk Fanø-stil med røde mursten, sprossevinduer og stråtag. Huset har en smuk udsigt over naturen, vandet – og med Esbjergs lys i horisonten. Her får du et hjem med masser af sjæl, god plads til storfamilien og mulighed for både fast bopæl og udlejning af værelser til turister.
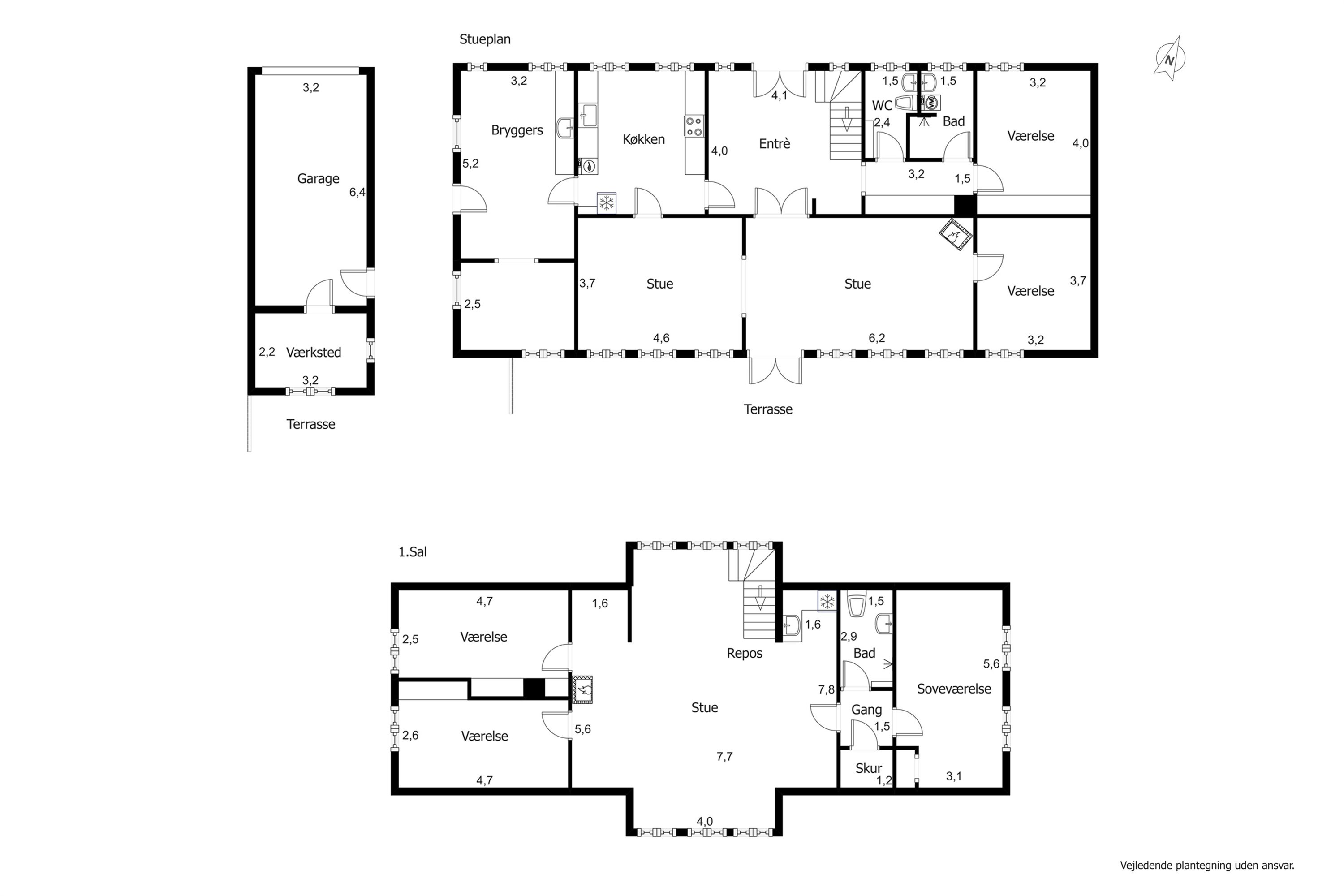
Huset har været i samme families eje siden opførelsen i 1978 og er løbende passet på og vedligeholdt. Her er gavmild loftshøjde, samtidig med at atmosfæren er åben, venlig og fuld af charme. På din vej rundt i den 268 m2 store bolig møder du blandt andet rustikke bjælker i lofterne, brede plankegulve og fyldningsdøre, mens du mærker hyggen og varmen fra husets to brændeovne.
Du bydes velkommen i en imponerende hall med trappe til førstesalen. I stueplan ligger to stuer i forlængelse af hinanden sammen med et gedigent snedkerkøkken i massivt træ, specialbygget af en lokal tømrer.
Planløsningen rummer i alt fem værelser fordelt på de to etager. Derudover er der to badeværelser, gæstetoilet, bryggers og gode opbevaringsrum samt en ekstra stue med både billard og klaver – som kan medfølge, hvis det ønskes. Tidligere har førstesalen været brugt til bed & breakfast med gæsteadgang via hallen og nøgle til værelserne. Nemt at gå til – nemt at holde.
Den 1.345 m2 store grund er enkelt beplantet og nem at holde med træer i stedet for hæk. I haven står et lille drivhus, som fungerer perfekt som lækrog, når vestenvinden tager fat. Der er gode terrasseforhold og kig mod Esbjerg – især smukt, når byen lyser op i aftenmørket.
Vil du tættere på naturen og leder du efter et stort, charmerende hus med masser af muligheder? Så bestil en fremvisning af Digevej 13 og kom en tur til fremvisning i Sønderho.
Økonomisk overblik
Skal du også sælge?
Bestil salgsvurdering
Kontakt
Robin Thybo
Om kommunen
INDBYGGERE
GRUNDSKYLD
KOMMUNESKAT
SKOLER
BØRNEPASNING
Hvor langt er der til nærmeste?
Se hvor lang tid der er mellem denne bolig og en anden adresse