Villa med 7660 m2 stor grund i landsby ved Nationalpark Vadehavet
Denne spændende familievilla i Vadehavsbyen Kærbøl ligger direkte ud til åbne marker på en kæmpestor grund, der delvist er holdt som naturgrund med høje træer og lysninger. Boligen byder på hele 180 m2 med bl.a. et stort køkken og en dejlig lys stue.
Selve ejendommen er spændende, fordi den rummer et væld af muligheder og en god portion sjæl og charme. Faktisk vides det ikke, i hvilket år ejendommen er opført, men man ved, at den er gennemgribende renoveret i slutningen af 70’erne. Siden da er der løbende lavet istandsættelser og forbedringer gennem tiden, så i dag trænger den blot til en opfriskning før indflytning. Det drejer sig primært om, at væggene skal shines op, men i samme ombæring har du naturligvis rig mulighed for at sætte dit eget præg på stilen.
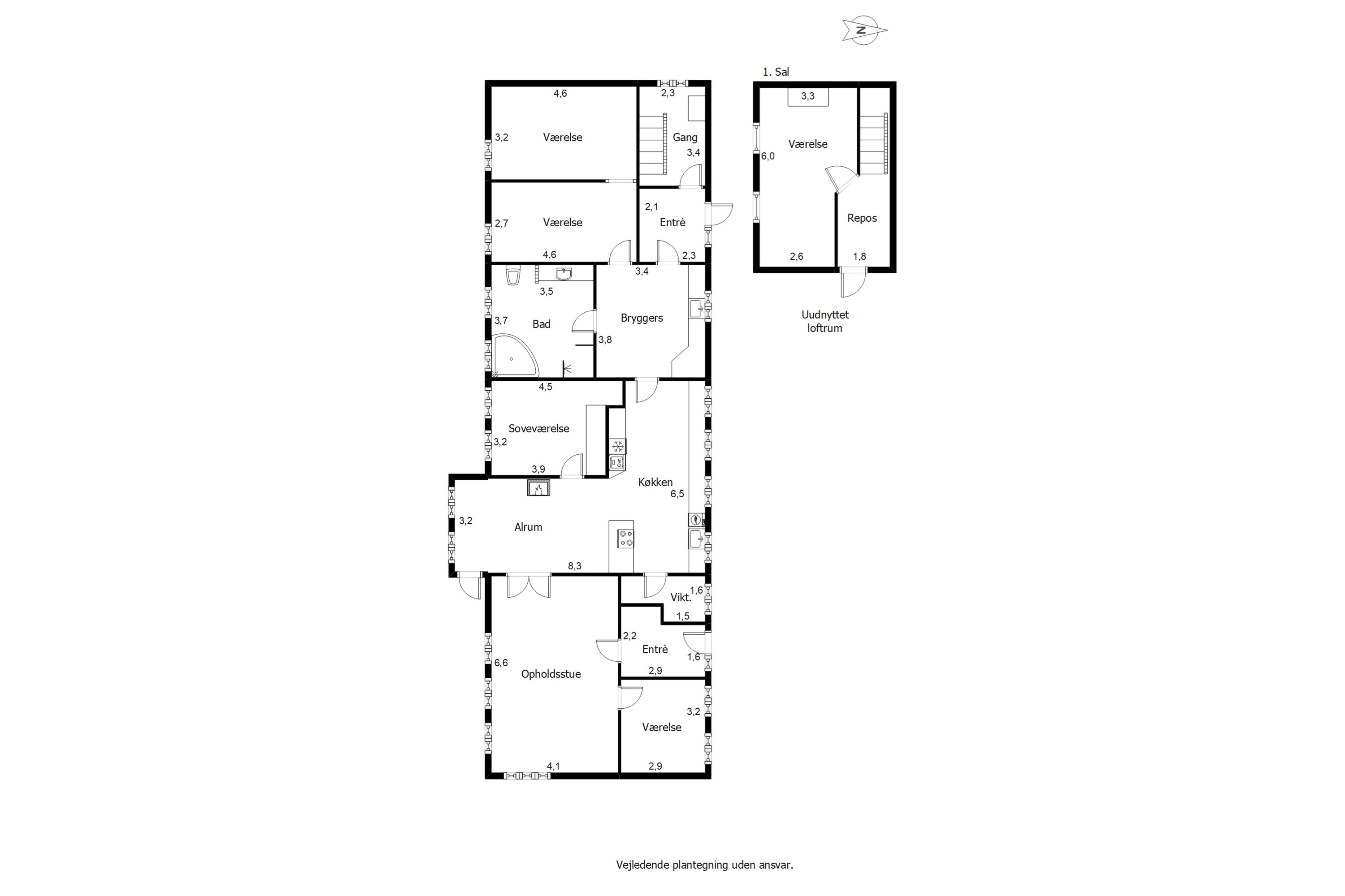
I alt byder boligen på 180 m2 fordelt på stueplan og førstesal. Huset har et dejligt køkkenalrum med brændeovn, som udgør det ideelle samlingspunkt med sin gode rummelighed og dejlige lysindfald. I forlængelse heraf ligger der en opholdsstue med store vinduespartier mod øst og syd.
Huset byder derudover på fem gode soveværelser, hvoraf de to ligger forbundet, så den ene halvdel med fordel kan bruges som et kæmpestort påklædningsværelse eller et fedt hjemmekontor. Endelig byder huset på et stort, praktisk bryggers og et lækkert badeværelse med et flot muret spabad og en hyggelig bruseniche.
Stilen er afdæmpet og landlig med synlige bjælker, sprossevinduer og masser af klinker og træ. Samtidig er funktionaliteten tænkt ind overalt. Der er f.eks. masser af opbevaringsplads, og værelserne er placeret, så man nemt kan give ekstra privatliv til teenagere, gæster eller forældre.
Kærbøl er en lille landsby, der i dag er vokset sammen med Farup Kirkeby og til dels Nørre Farup. Den lille samling byer ligger omgivet af naturbeskyttede små vandløb og søer og Nationalpark Vadehavet. Fra Kærbøl er der cykelsti mod Ribe, hvor der er alt, hvad du skal bruge i dagligdagen.
En dejligt stor og velbeliggende grund - og en spændende ejendom for jer, der drømmer om at skabe et hjem tæt på naturen. Bestil en fremvisning Estate.
Økonomisk overblik
Skal du også sælge?
Bestil salgsvurdering
Kontakt
Robin Thybo
Om kommunen
INDBYGGERE
GRUNDSKYLD
KOMMUNESKAT
SKOLER
BØRNEPASNING
Hvor langt er der til nærmeste?
Se hvor lang tid der er mellem denne bolig og en anden adresse