Familievenlig etplansvilla med masser af lys og luft
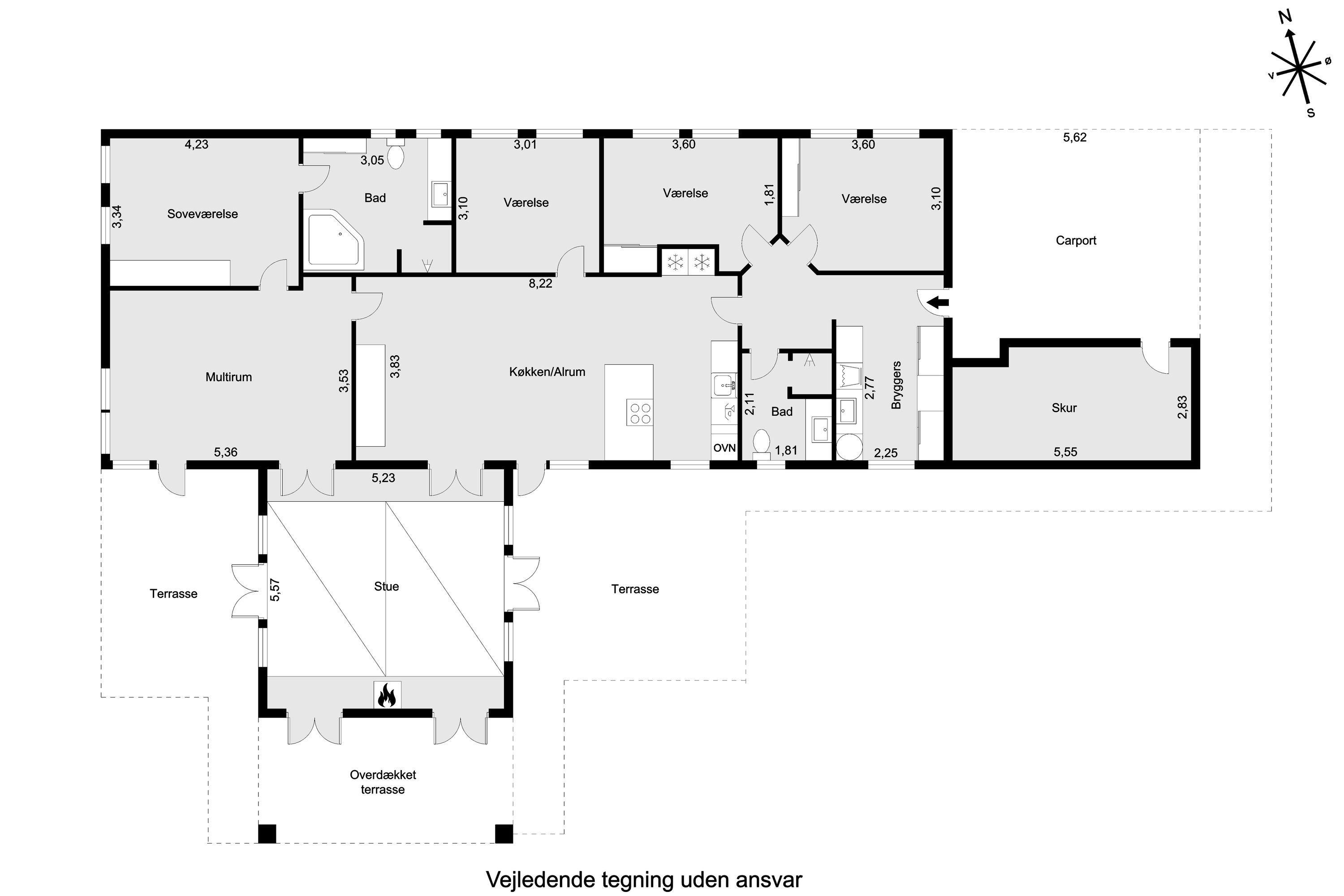
På en rolig, lukket vej i det attraktive og børnevenlige kvarter Hybenhaven i Lystrup finder I denne moderne og rummelige etplansvilla fra 2011. Her får I hele 180 m² bolig fordelt på fem værelser, to badeværelser, stort køkken-alrum, multirum, bryggers, carport og udhus – alt sammen med en gennemtænkt planløsning, der er perfekt til familien med behov for både fællesskab og privatliv.
Boligens hjerte er det store og åbne køkken-alrum, hvor Designa-køkkenet fra 2011 fremstår stilrent og funktionelt med god bord- og skabsplads. Herfra er der udgang til terrasser, hvilket skaber en naturlig forlængelse af opholdsrummet ud i haven – perfekt til hyggelige sommeraftener eller børneleg i det fri.
I direkte forbindelse med alrummet ligger den flotte stue med loft til kip og store ovenlysvinduer, som giver et helt unikt lysindfald dagen igennem. Rummet har et fantastisk lysindfald med masser af luft og varme fra brændeovnen, og med udgang til den sydvestvendte terrasse og den dejlige have med åbent udsyn – her har I luft omkring jer fremfor naboer tæt på.
Planløsningen er ideelt opdelt i separate afdelinger. Forældreafdelingen består af et rummeligt soveværelse med eget badeværelse med bruseniche. I samme afdeling ligger et praktisk multirum, en oplagt løsning til legeområde, kontorafdeling eller hobbyrum. I husets anden ende finder I børneafdelingen med tre gode værelser og endnu et badeværelse.
Et praktisk bryggers med plads til vaskefaciliteter og opbevaring er placeret med direkte adgang fra carporten, hvilket giver en effektiv og velfungerende hverdag. Derudover medfølger et godt udhus, ideelt til opbevaring eller værksted.
Sælgerne fremhæver især det fantastiske lysindfald i stuen og den rummelige stemning i køkken-alrummet som store plusser ved hjemmet. Derudover er området kendetegnet ved et rigtig godt naboskab, hvor man samles til hyggelige traditioner som fastelavn og Halloween – et sted, hvor fællesskabet lever.
Beliggenheden er i top – I bor i gåafstand til både skole, institutioner og indkøb, og børnene kan færdes trygt via gode stisystemer. Letbanens stoppested nås på cirka 10 minutter på cykel, og der er nem adgang til motorvejen for pendleren. Alt dette gør Hybenhaven 4 til en ideel base for den moderne familie, der ønsker at bo tæt på Aarhus – men stadig med natur og ro lige uden for døren.
Så er I på udkig efter en indflytningsklar og velindrettet familievilla med masser af lys, luft og plads – så bør I tage et nærmere kig på Hybenhaven 4
Økonomisk overblik
Skal du også sælge?
Bestil salgsvurdering
Kontakt
Jakob Møller
Om kommunen
INDBYGGERE
GRUNDSKYLD
KOMMUNESKAT
SKOLER
BØRNEPASNING
Hvor langt er der til nærmeste?
Se hvor lang tid der er mellem denne bolig og en anden adresse