Familievenlig villa med plads til den helt store familie - med udsigt til Rødding Sø
I den nordlige del af Rødding med udsigt til Rødding Sø finder I på adressen Korsbakken 10, en villa der med sine 196 m2 og hele 6 reelle værelser, kan rumme selv den store familie med dine, mine og vores børn.
I Rødding, der er en hyggelig landsby få kilometer udenfor Viborg, får I ikke langt til hverken købmanden, skole og pasningstilbud. Her finder I også gode idrætsfaciliteter såvel som et godt foreningsliv, hvor der er noget for alle aldre. Når byen kalder, er der cykelsti fra Rødding til Viborg.
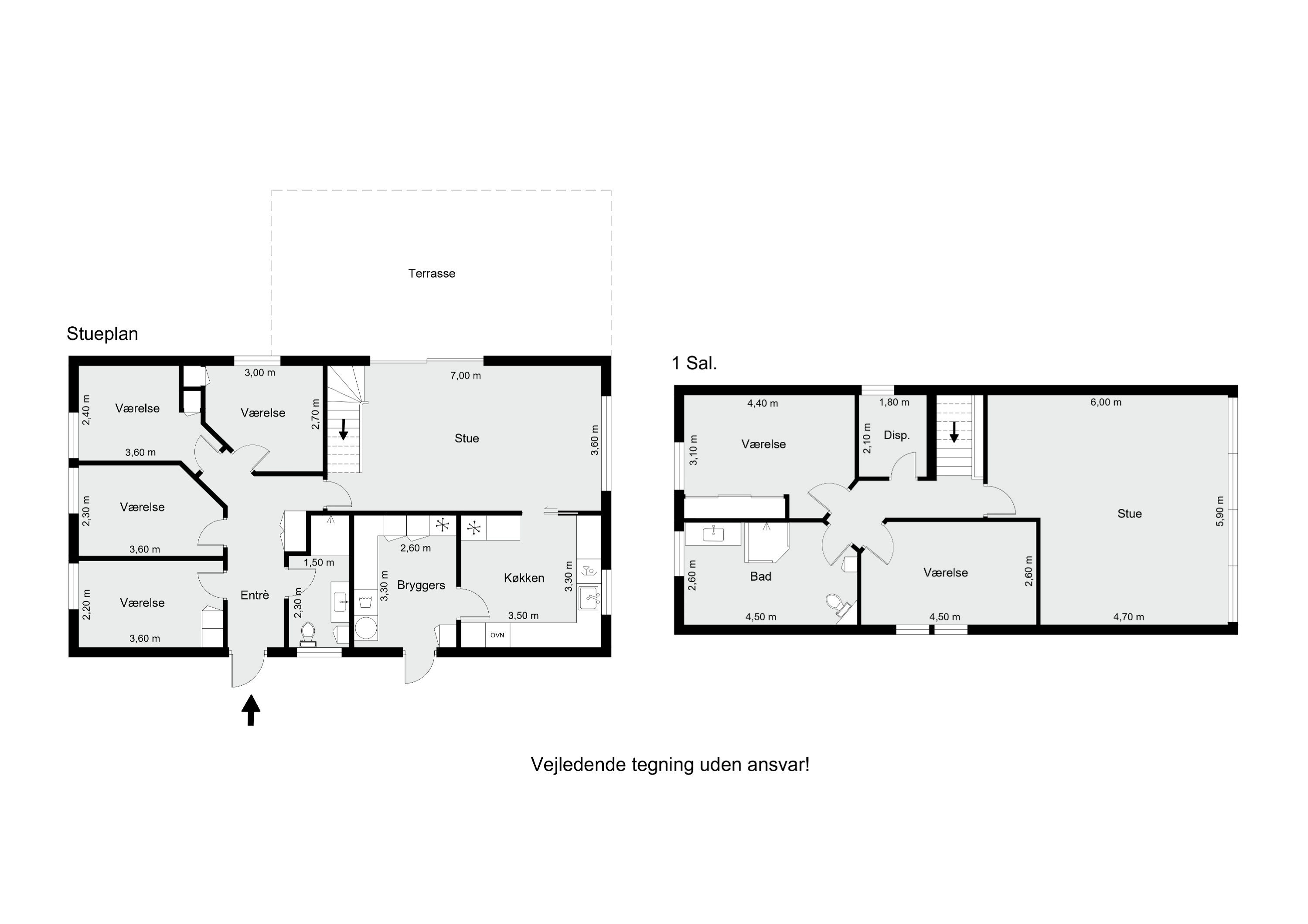
Når I ankommer til denne velholdte villa, gør I det ved den nylagte indkørsel, hvor der er plads til familiens bil – og evt. opførelse af carport såfremt I skulle ønske sådan en. Herfra er der adgang til husets to mulige indgange. Kommer I indenfor i husets bryggers får I direkte adgang til husets køkken, som fremtoner klassisk, lyst og velholdt med god plads til både madlavning såvel som opbevaring. Fra køkkenet er der adgang til den store spisestue, der med store skydedøre og vinduespartier lader lyset fylde rummet og giver adgang til et stort terrassemiljø med udsigt til Rødding Sø.
Den anden indgang ligger i forbindelse med badeværelset med bruseniche og fire af hjemmets seks værelser. Her er plads til at indrette gode børne-/ungeuniverser,kontor og hvad I end måtte ønske.
Øverst oppe får I en førstesal, der blev renoveret i 2008, hvor der blandt andet blev installeret et lækkert, rummeligt badeværelse med bruseniche og hvor I kan se frem til to rummelige værelser, et disponibelt rum og ikke mindst den fantastiske stue, der med herlige lysindfald og udsigt via panoramavinduet, er den perfekte ramme for familielivet. Med loft til kip, fritlagte bjælker og stor hems, oser der bare af hygge, - her er plads til alle.
Ude venter en have, der er omlagt til en stor græsplæne med skrånede bede/plantekasser med prydbede og mulighed for køkkenhave. Så her får I en have, der er nem at passe og hvor I får mulighed for at sætte jeres eget præg.
Kontakt os allerede i dag for en fremvisning.
Økonomisk overblik
Skal du også sælge?
Bestil salgsvurdering
Kontakt
Lasse Christensen
Om kommunen
INDBYGGERE
GRUNDSKYLD
KOMMUNESKAT
SKOLER
BØRNEPASNING
Hvor langt er der til nærmeste?
Se hvor lang tid der er mellem denne bolig og en anden adresse