Indflytnings klar Villa på 150 m² centralt i Østervrå by
Her får du et rigtig flot hus, der løbende er renoveret og som står yderst velholdt både inde som ude. Der er enkelte mahogni vinduer - resten er pvc vinduer. Taget er et nyrenoveret sort eternittag som evt. fint kan bære et betontegltag, hvis man ønsker at "shine" boligen endnu mere.
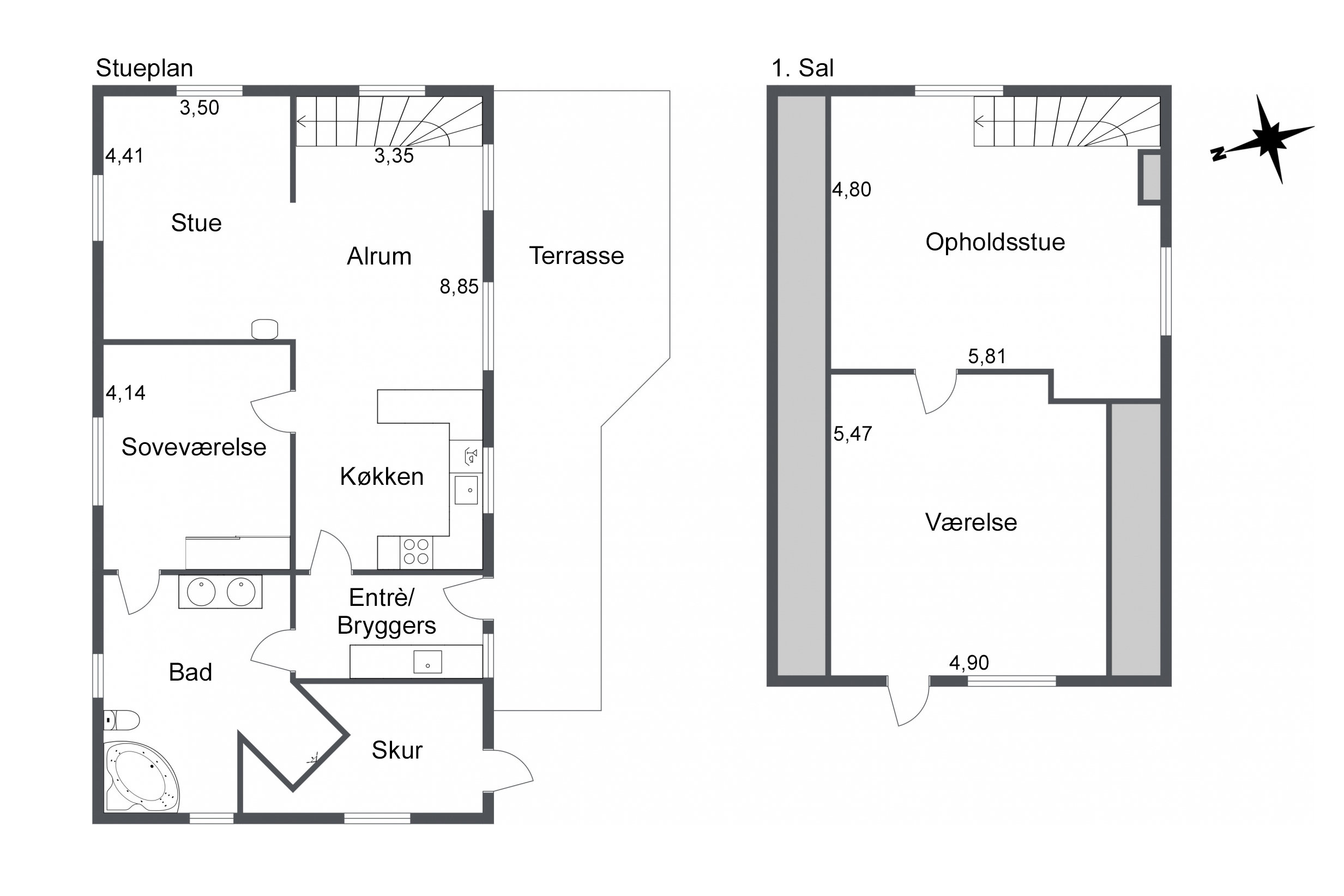
Boligen er indrettet med bryggers, der også fungerer som entré. Her er fint hvid skabs arrangement med mørkegrå bordplade med vask. Klinkerne på gulvet er sorte og her er gulvvarme. Herfra er der adgang til dejlig stort og flot badeværelse - også med gulvvarme. Badeværelset har spots i det lyst rustikke loft og er holdt i de sort/hvide farver, hvor gulvklinkerne er gråsorte, elementerne hvide og en stenbordplade i sort. Herudover er spabadekar, muret hjørnebrus og her er plads til både vaskemaskine og tørretumbler. Der er dør til værelse ved siden af, som har lamelparketgulv.
Fra værelset og bryggerset er der adgang til Designa køkken i hvid med grå bordplade og hvidevarer i stål med sort. Køkkenet står i åben forbindelse til alrummet, hvor spisepladsen er arrangeret og trappen til 1. sal går op. Herudover er der terrassedør ud til lækkert terrassemiljø. Alrummet er i ét med den rigtig hyggelige stue, der har brændeovn og stort vinduesparti der giver godt med lys. Lamelparket er gennemgående i køkken, alrum og stue.
På 1. salen er der indrettet stor stue og stort soveværelse med udgang til tagterrasse. Der kan fint indrettes flere værelser på 1. salen. Der er mahogni laminatgulv i begge rum.
I enden af huset er der lavet et fint integreret skur med troldtekt loft.
Haven er flot holdt og helt ude ved vejen er der lavet fin holdeplads med skærver til bilen,- med et par trin op herfra ledes man via flisebelagt sti op til husets indgang og det lækre terrassemiljø, der hævet lidt over niveau.
Boligen ligger i et roligt villakvarter i Østervrå, hvor der er nemt til indkøb, skole, sportsfaciliteter m.m.
Økonomisk overblik
Skal du også sælge?
Bestil salgsvurdering
Kontakt
Pia Thestrup
Om kommunen
INDBYGGERE
GRUNDSKYLD
KOMMUNESKAT
SKOLER
BØRNEPASNING
Hvor langt er der til nærmeste?
Se hvor lang tid der er mellem denne bolig og en anden adresse