Arkitekttegnet udsigtssommerhus kun 200 meter fra Vesterhavets bølger
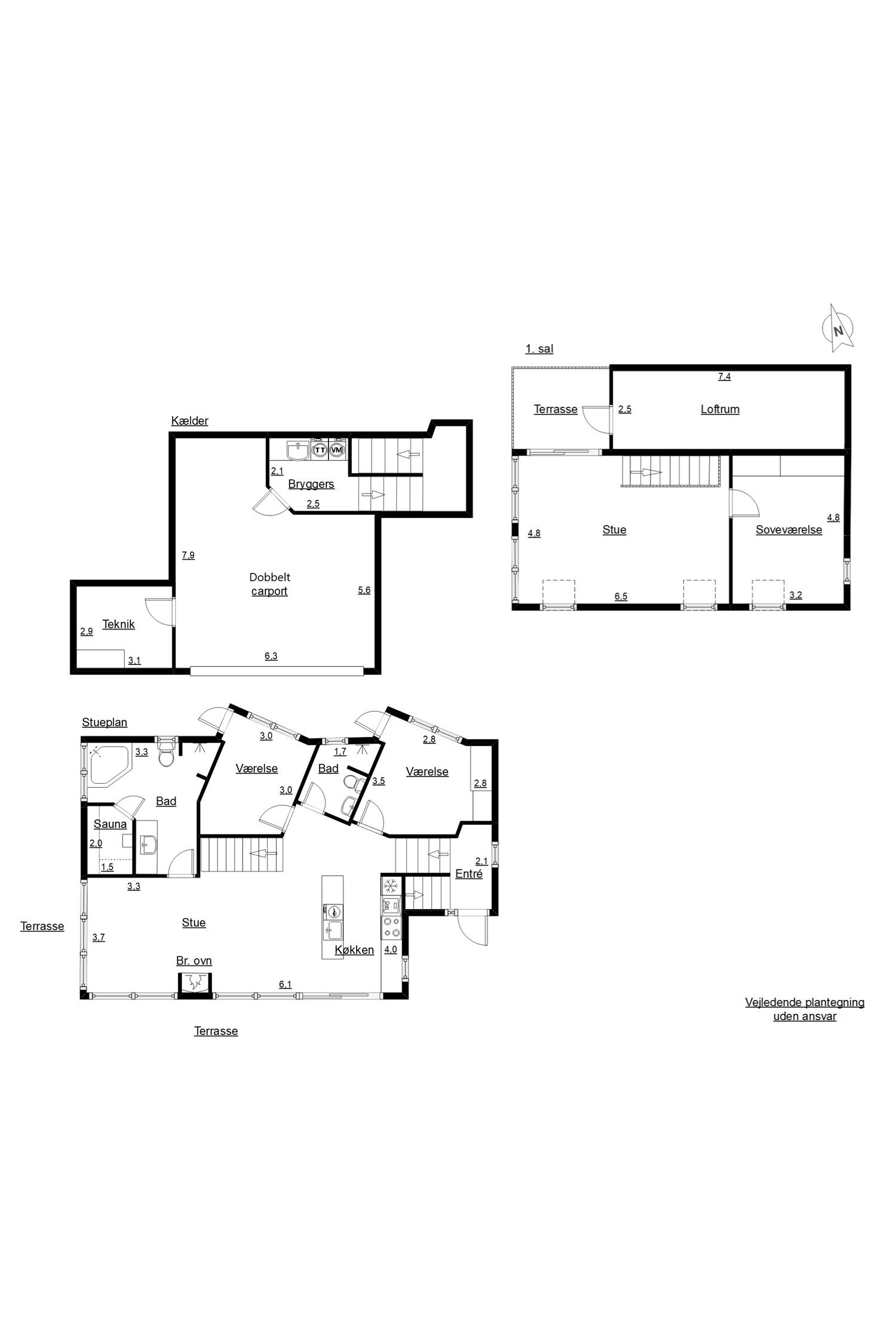
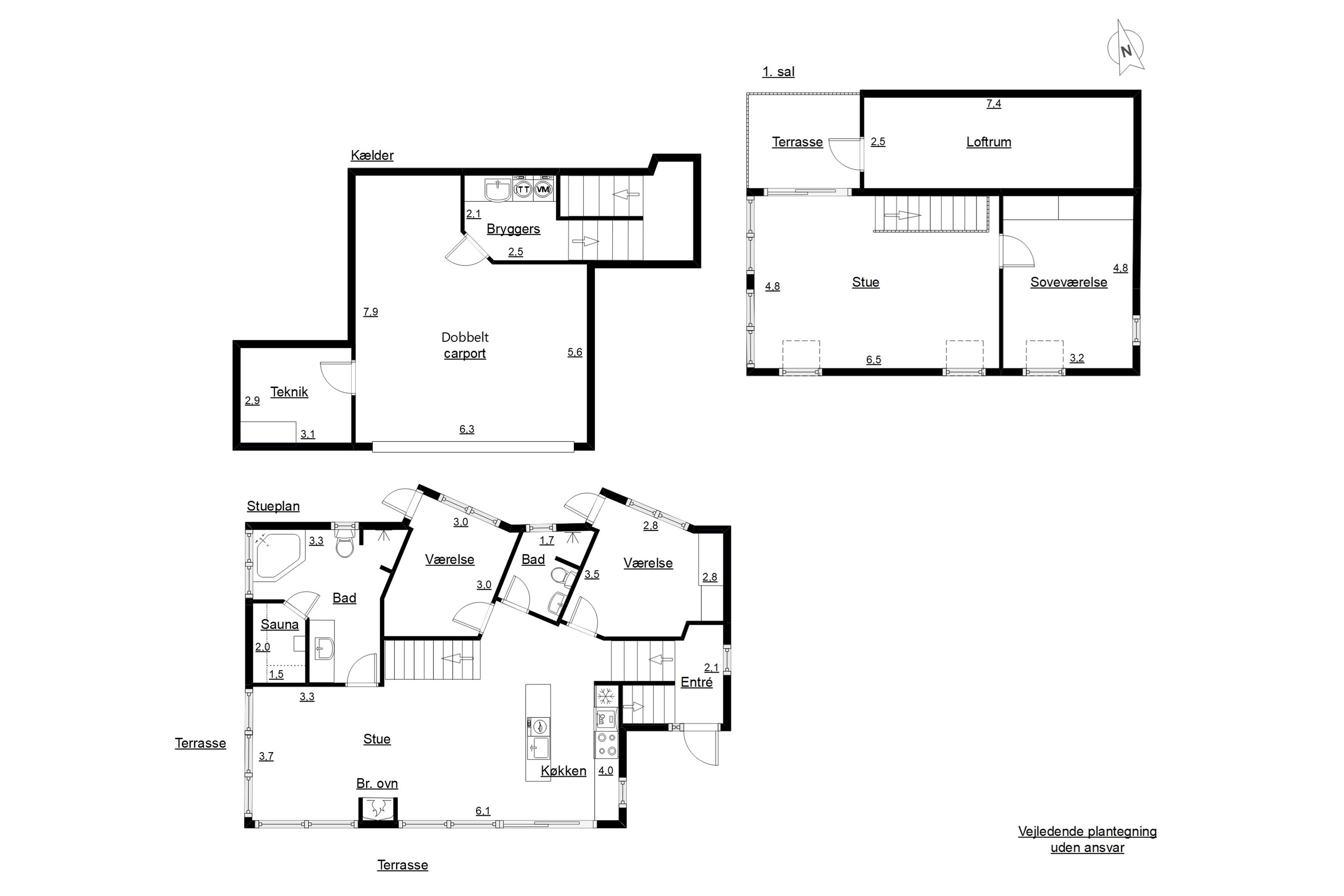
For enden af en blind vej i Henne Strands pragtfulde klitlandskab ligger dette lækre luksussommerhus med frit udsyn til det brusende Vesterhav. Huset måler 254 etagemeter fordelt på to lyse etager og en kælder med dobbelt carport ideelt placeret på en vedligeholdelsesfri grund. Rundt om huset får du tilmed et fantastisk terrassemiljø med mange solrige stunder, udsigt til havet og de enestående solnedgange.
Huset er arkitekttegnet og nøje tilpasset naturen omkring med store glaspartier, der på smukkeste vis iscenesætter beliggenheden kun 200 meter fra vandet. Trods nærheden til kilometerlange sandstrande, der hører under nogle af landets bedste, får du også let adgang til Henne Strands hyggelige handels- og butiksliv kun fem minutters gang fra adressen.
Henne Strand er en sand ferieperle – ikke kun på grund af strandene, men i høj grad også grundet den omkringliggende natur med bl.a. Blåbjerg Plantage og Filsø, der inviterer gå-, cykel og løbeture i smukke omgivelser.
Selve ejendommen blev opført i 2012 efter alle kunstens regler for moderne byggeri og med tanke på placeringen i klitterne tæt ved vandet. Huset er fuldmuret, har store vinduespartier mod samtlige verdenshjørner og byder på et hav af lækre detaljer, som skaber en sublim rumoplevelse. Samtidig kan du se frem til et ultralavt energiforbrug takket være solceller og jordvarmeanlæg.
Stueplan rummer et stort opholdsområde med stue og køkken i ét, hvor blotlagte mursten og stemningsfuld gaspejs slår hyggen an. Etagen indeholder også af to værelser og to badeværelser – det ene har spa og sauna. Dertil kommer husets entré, hvor den åbne etageadskillelse skaber en speciel tårnfornemmelse og binder etagerne elegant sammen.
Første sal består af endnu en stue med pejs og havudsigt, et soveværelse med skabsvæg og en lækker udsigtsterrasse med adgang til stort, anvendeligt loftsrum. Kælderplan tæller foruden dobbeltcarporten et bryggers og et teknikrum
Der foreligger udlejningsaftale med Esmark. Den årlige lejeindtægt androg for 2024 kr. 275.479,-. Efter beskatning med 40 % -reglen, udgør lejeindtægten kr. 230.145,- til ejer.
Kontakt os og oplev dens mange kvaliteter ved selvsyn!
Økonomisk overblik
Skal du også sælge?
Bestil salgsvurdering 
                Kontakt
Steffen Frederiksen
Om kommunen
INDBYGGERE
GRUNDSKYLD
KOMMUNESKAT
SKOLER
BØRNEPASNING
Hvor langt er der til nærmeste?
Se hvor lang tid der er mellem denne bolig og en anden adresse