STOR OG RUMMELIG FAMILIEVILLA
Velkommen til denne charmerende og rummelige familievilla beliggende på Kåstrupvej 59, blot en kort afstand fra Kalundborgs pulserende hjerteslag. Med sine 170 kvadratmeter fordelt på to etager, er denne ejendom et sandt fund for familien, der ønsker både plads og nærhed til naturskønne omgivelser.
Fra det øjeblik du ankommer til denne villa, som ligger på en grundstørrelse af 871 kvadratmeter, bliver det tydeligt, at her får du ikke blot et hjem, men også en del af en imødekommende og velfungerende lokalsamfund. Beliggenheden bringer dig tæt på alt det, der betyder mest i hverdagen – med lokale skoler som Tømmerup Kommuneskole og Tømmerup Fri- og Efterskole kun et stenkast væk. Dertil kommer de nærliggende børnehaver, Tømmerup Friluftsbørnehave og Kløvergården, samt idrætsfaciliteter ved Tømmerup Hallen, hvor børnene frit kan lege på multibanen eller du kan nyde et afslappende øjeblik i den nærliggende naturpark, Loch Ness.
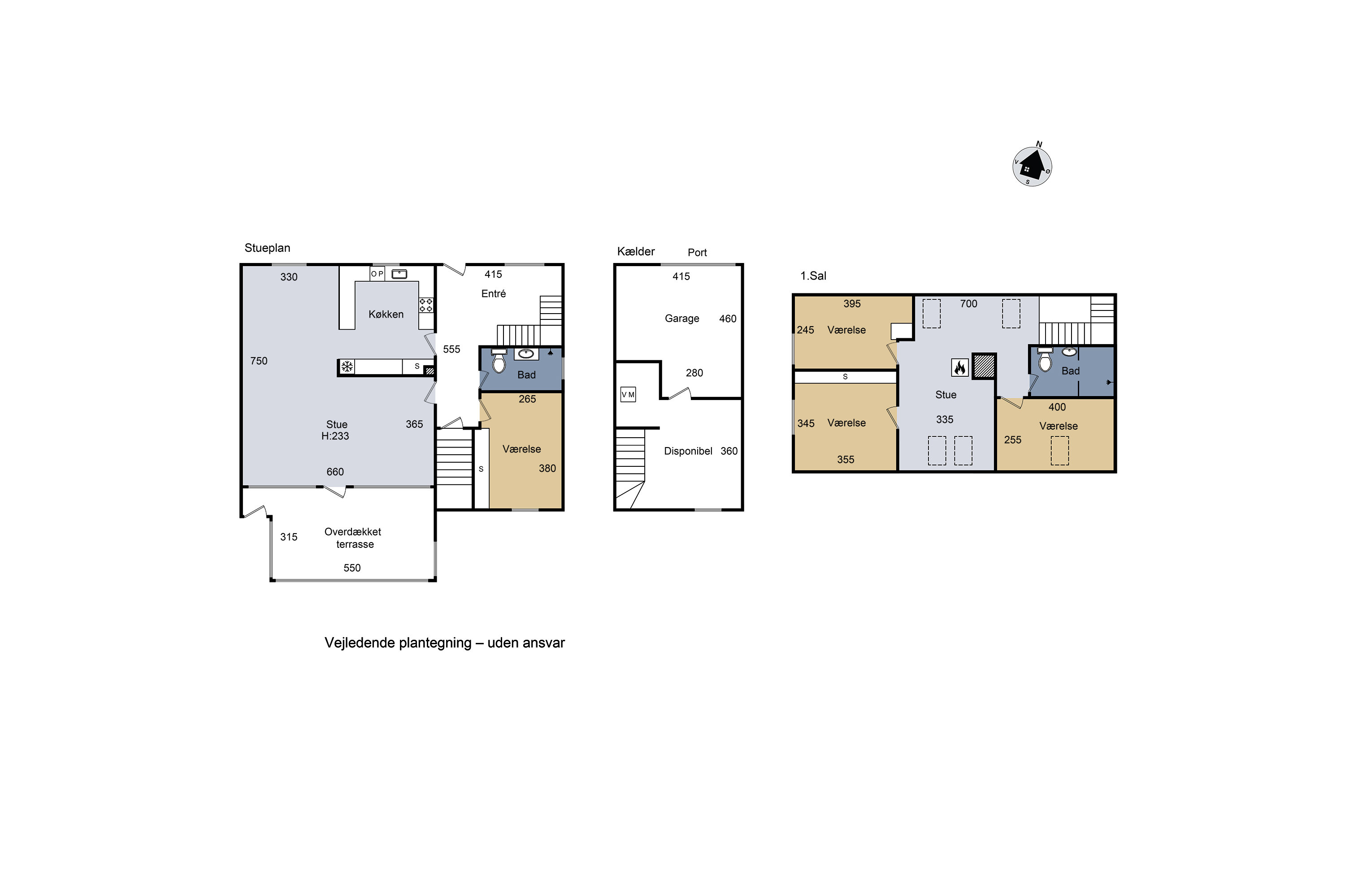
Indenfor mødes du af en stor og indbydende entre, der leder videre til et ældre, men meget velholdt køkken, som hurtigt ligger an til at blive hjemmets samlingspunkt. Det delvis åbne forløb ind til stuen sikrer en flydende overgang mellem madlavning og familiehygge, og fra stuen kan du lade blikket vandre over en flot anlagt ridebane, hvilket giver en følelse af frihed og åbenhed.
Stueetagen fuldendes med et flisebadeværelse med bruseniche samt et dejligt soveværelse. Herfra er der også adgang til en trappe, der fører ned til kælderen. Her åbner der sig et hav af muligheder med disponible rum til opbevaring eller hobbyprojekter, et praktisk vaskerum samt en integreret garage, der gør hverdagens logistik til en leg.
På første sal finder du yderligere tre værelser, som nemt kan tilpasses familiens behov – hvad enten det gælder børneværelser, hjemmekontor eller gæsteværelser. Denne etage rummer også en hyggelig, lille tv-stue, hvor familiens film- og spilleaftener kan få frit spil. For at fuldende komforten findes på denne etage endnu et badeværelse fra 1975, også med bruseniche.
Med sin perfekte beliggenhed kun fem minutters kørsel fra Kalundborg centrum, er denne villa ideelt placeret for dem, der ønsker det bedste fra begge verdener – roen i landlige omgivelser samt nem adgang til byens bekvemmeligheder.
Grib chancen og gør denne villa til jeres hjem. Her er plads til at vokse, drømme og skabe minder i et trygt og venligt nabolag. Det eneste, der mangler, er jer. Velkommen hjem til Kåstrupvej 59.
Økonomisk overblik
Skal du også sælge?
Bestil salgsvurdering
Kontakt
Thomas Ziegler Linnemann Jensen
Om kommunen
INDBYGGERE
GRUNDSKYLD
KOMMUNESKAT
SKOLER
BØRNEPASNING
Hvor langt er der til nærmeste?
Se hvor lang tid der er mellem denne bolig og en anden adresse