2-Families ejendom med 145 m2 garage.
Nogle boliger tilbyder mere end bare tag over hovedet – de tilbyder muligheder. På Kauslundevej 95 i rolige og grønne omgivelser lidt uden for Middelfart, ligger denne smukt renoverede ejendom med to selvstændige lejligheder, stor garage og plads til både nærhed og frihed. Her kan generationer bo dør om dør – med kærlighed, respekt og privatliv intakt.
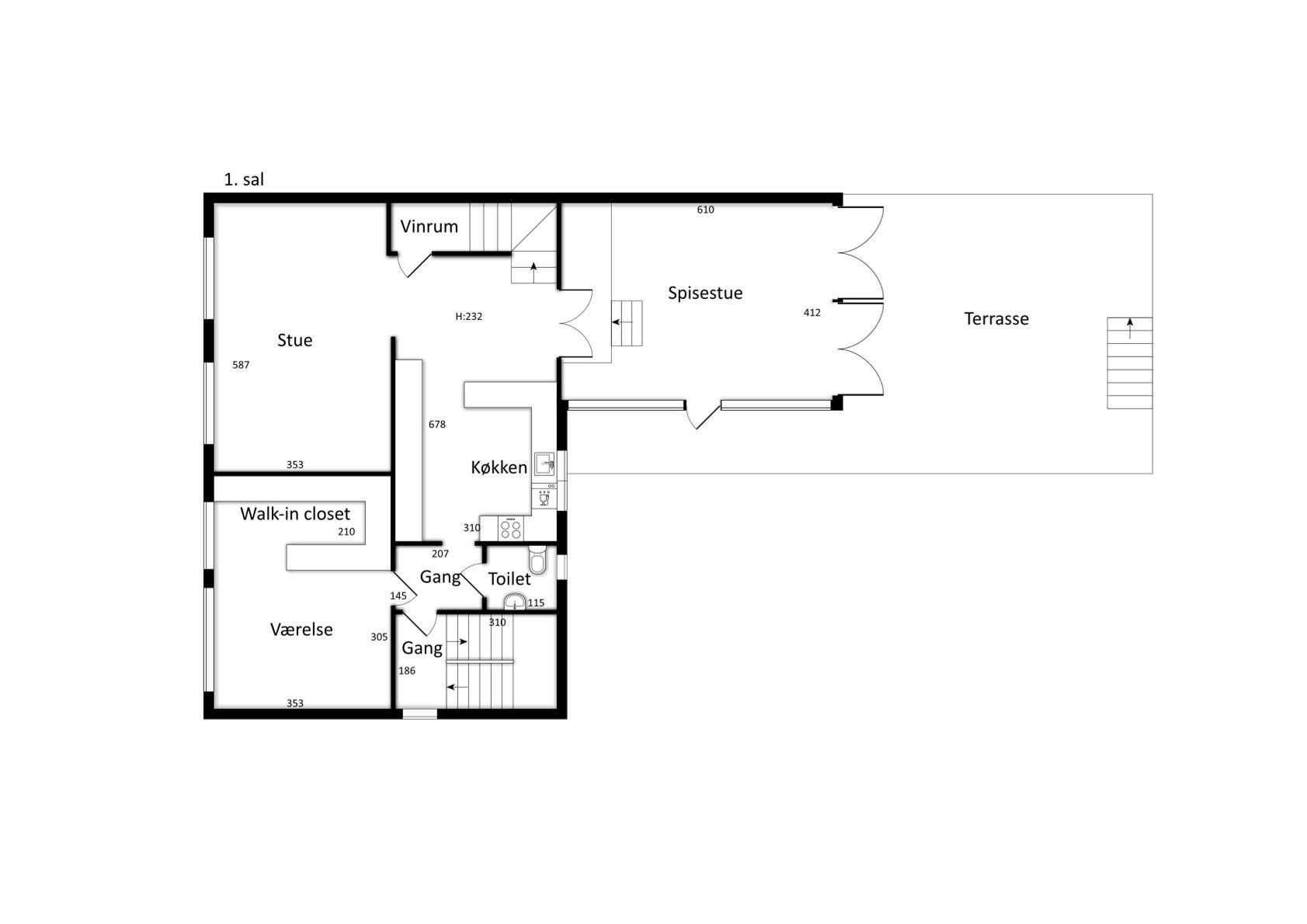
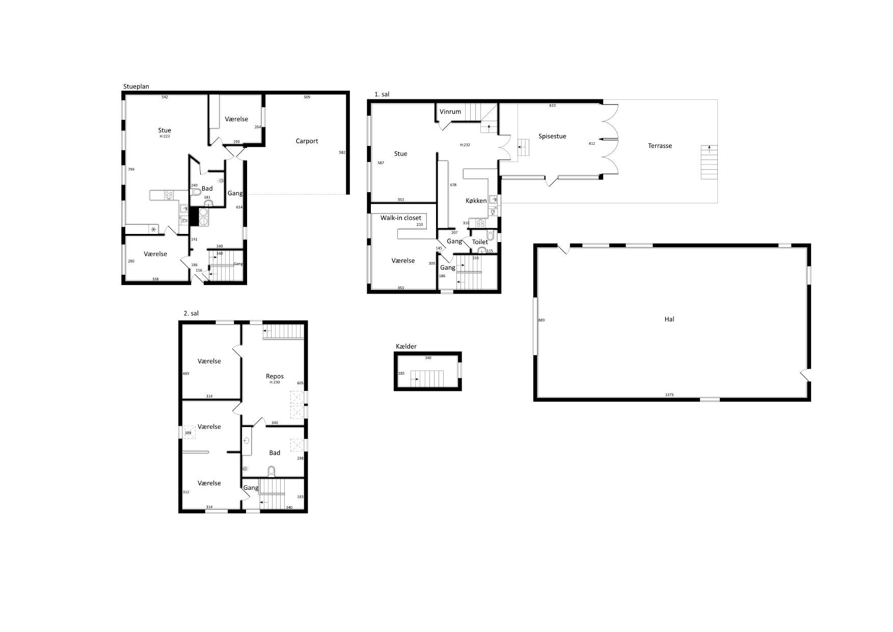
Ejendommen rummer to fulde boliger under samme tag: I stueplan ligger den ene på 95 m2 med god entré, bryggers, badeværelse, stort soveværelse og et dejligt, lyst køkken-alrum med plads til både madlavning og hverdagssnakke. Ovenpå – i den 168 m2 store bolig – fornemmer man straks det åbne og moderne udtryk. Her er forældresoveværelse, gæstetoilet, imponerende køkken-alrum i åben forbindelse med en skøn udestue, der bader i lys og giver adgang til en stor terrasse. Under trappen findes et charmerende vinrum, og på 2. salen ligger badeværelse og to værelser – der med lidt kreativitet kan deles op yderligere.
Den enorme garage på 145 m2 er i fantastisk stand – og oplagt til håndværk, opbevaring eller drømmeprojekter. Uanset om du drømmer om værksted, hobbyrum eller bare god plads til biler og grej, er rammerne her helt unikke.
Kauslunde byder på fred og plads – men uden at man går på kompromis med beliggenhed. Motorvejen er få minutter væk, Middelfart nås hurtigt, og naturen omkring dig ændrer ansigt med årstiderne – fra forårsgrønt til sneklædt stilhed. Her er et trygt sted for børn at vokse op og ro til at lade livet udfolde sig.
Hvis du drømmer om et hjem med muligheder – til familien, firmaet eller fremtiden – så skal du opleve Kauslundevej 95. Her mærker man potentialet, freden og pladsen til det hele.
Økonomisk overblik
Skal du også sælge?
Bestil salgsvurdering
Kontakt
Jan Bendorf
Om kommunen
INDBYGGERE
GRUNDSKYLD
KOMMUNESKAT
SKOLER
BØRNEPASNING
Hvor langt er der til nærmeste?
Se hvor lang tid der er mellem denne bolig og en anden adresse