Plads til hele livet
Indledning:
Forestil dig et hjem, hvor der er plads til både hverdag og højtider, børnelatter og lange middage, stille stunder og store armbevægelser. Et sted, hvor naturen er nabo, og hvor I er tæt på alt det praktiske – men alligevel føles langt væk fra byens støj. På Udsigten 2 i Middelfart får I netop dét – og mere til.
Størrelse og indretning:
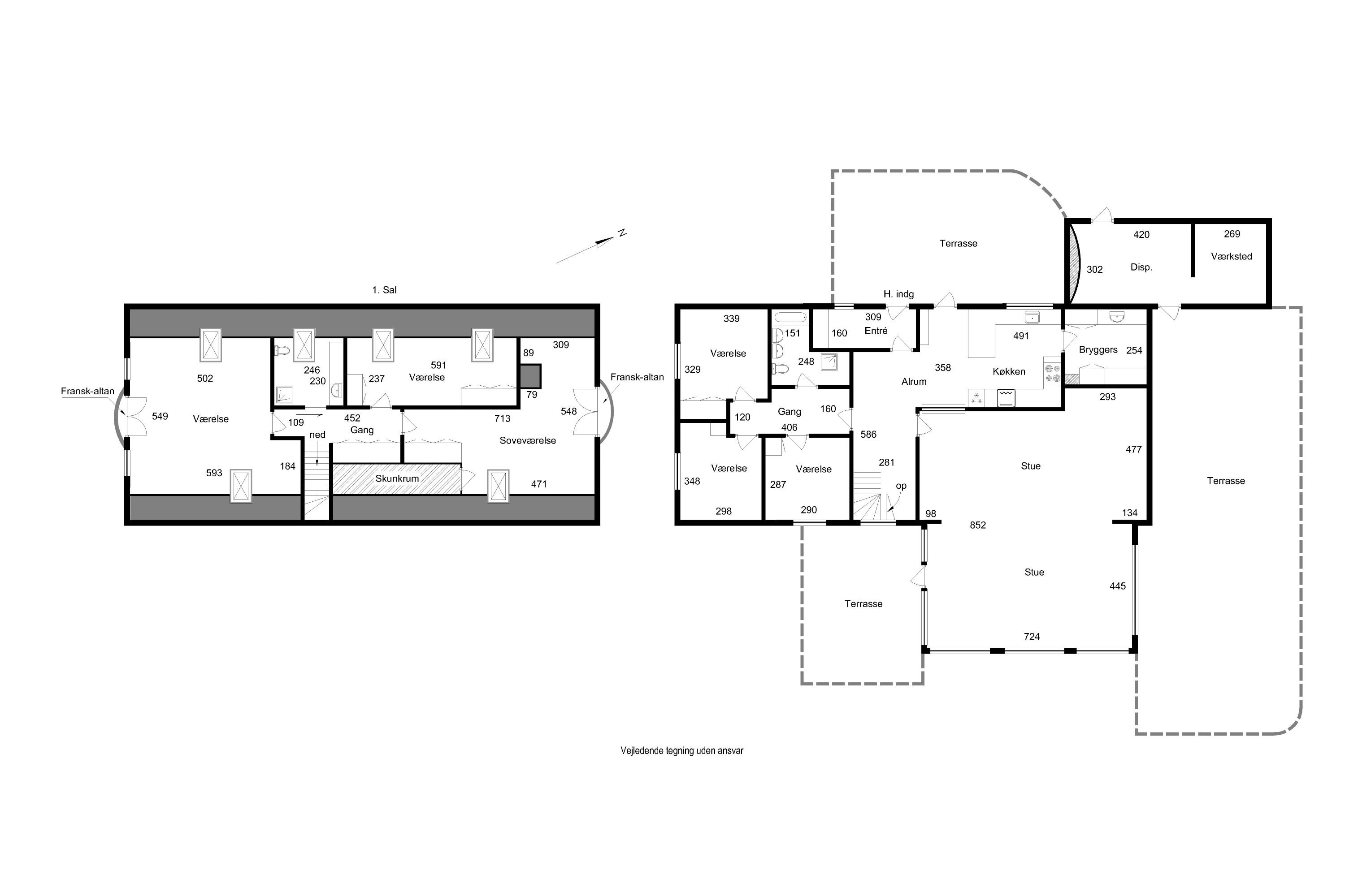
Boligen breder sig over imponerende 266 m2 – og allerede i entreen fornemmer man rummeligheden. Køkkenet er lyst, funktionelt og med god plads til både madlavning og snakke over spisebordet. Bryggerset ligger lige ved og er ideelt til familiens hverdag. Den store stue er et kapitel for sig – her er der lys, luft og udsigt til haven. Stueplan byder desuden på tre gode værelser og et ældre, men velfungerende badeværelse.
På første sal fortsætter mulighederne: To meget store værelser, et ekstra værelse og endnu et badeværelse med bruseniche. Det er nemt at forestille sig teenagerne have deres eget domæne her – eller måske kontor, hobbyrum og gæsteafdeling?
Beliggenhed og område:
Beliggenheden kombinerer det bedste fra to verdener: grønne omgivelser med skov og strand i gåafstand – og hurtig adgang til motorvejen. Her kan I starte dagen med en gåtur i naturen og stadig være på arbejde eller i skole til tiden. Haven er lukket og ugeneret, og den store garage giver plads til både biler, cykler og værksted.
Det her er ikke bare et hus – det er en ramme om livet. For den store familie, for dem med drømme og pladsbehov, eller for jer, der ønsker tre generationer under ét tag. Kom og mærk, hvordan det hele falder på plads – lige her.
Økonomisk overblik
Skal du også sælge?
Bestil salgsvurdering
Kontakt
Heidi Strandstoft
Om kommunen
INDBYGGERE
GRUNDSKYLD
KOMMUNESKAT
SKOLER
BØRNEPASNING
Hvor langt er der til nærmeste?
Se hvor lang tid der er mellem denne bolig og en anden adresse