Murermestervilla med fuldmuret værkstedsgarage
Nu har vi fornøjelsen af at præsentere jer for en klassisk murermestervilla fra 1937, som ikke bare oser af kvalitet, men også rummer imponerende meget værdi for pengene.
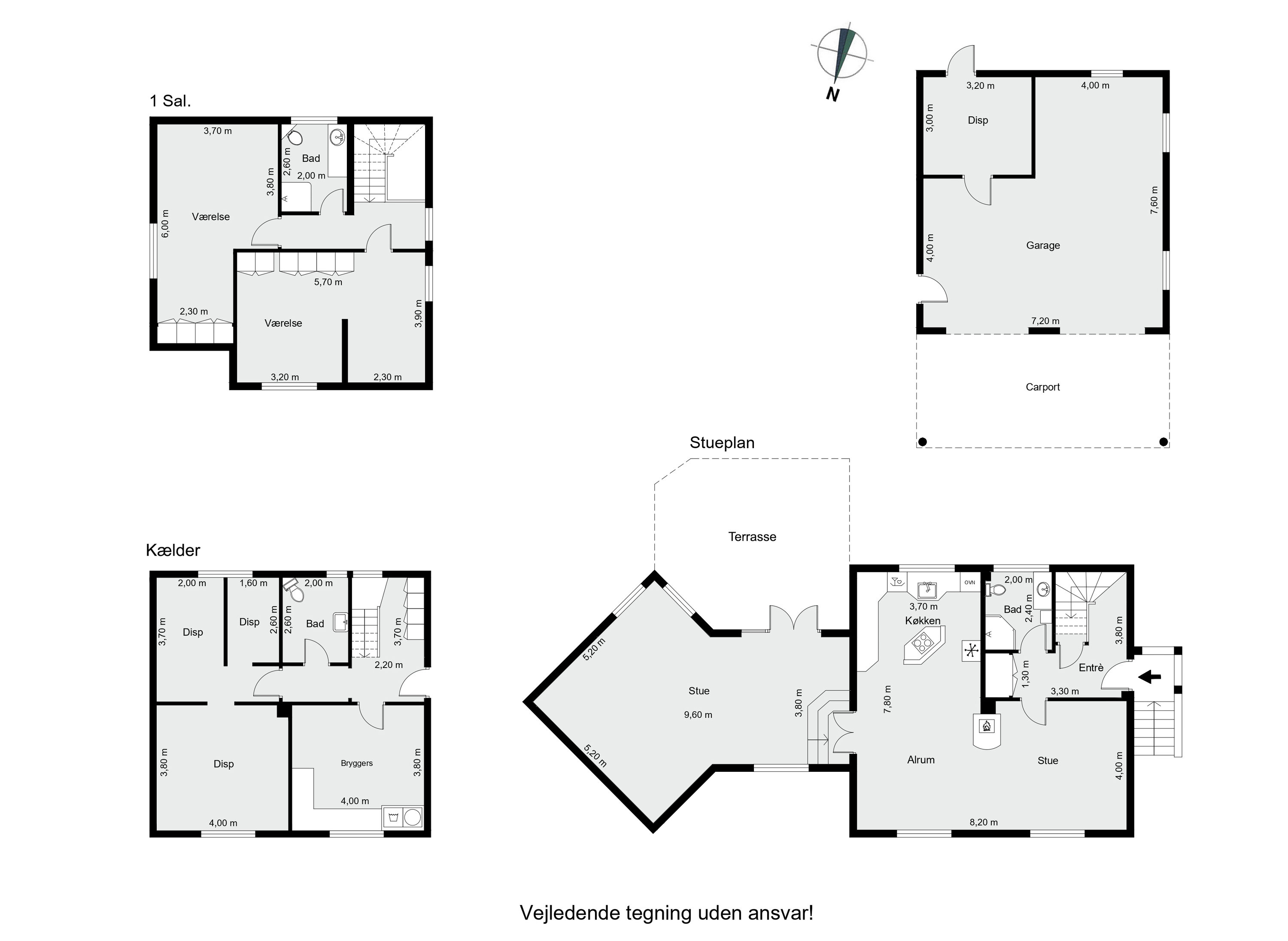
Her får du 183 veludnyttede boligkvadratmeter fordelt over tre etager, og dertil en fuldmuret dobbelt garage på hele 70 m² – et perfekt match til dig, der er selvstændig håndværker, har hobbyer med pladsbehov eller bare vil have god opbevarings- og værkstedsplads.
Boligen er løbende moderniseret med stor respekt for husets oprindelige stil – og det er gjort med omtanke og materialer af høj kvalitet. Seneste store løft skete i 2006, hvor man tilføjede en stemningsfuld stue på 49 m² med loft til kip, flotte synlige bjælker i pommersk fyr og selvfølgelig gulvvarme.
Indretningen i stueplan byder på entré, lyst badeværelse og et stort, åbent køkken-alrum, hvor man har fjernet et tidligere værelse for at skabe bedre plads og flow i hverdagen. Den tilbyggede stue ligger et niveau nede og føles som et hyggeligt samlingspunkt i hjemmet.
På første sal finder du et ekstra badeværelse, et stort soveværelse med masser af albuerum og endnu et godt værelse – ideelt som børneværelse, kontor eller gæsteværelse.
Kælderen rummer flere gode disponible rum, bryggers og et ekstra toilet – her er masser af funktionel plads til opbevaring, hobbyrum eller hvad du har af ideer.
Du bor tæt på dagligvareindkøb og har kun en kort cykeltur til centrum, samtidig med at du nemt kan komme til de større indfaldsveje. Det gør det let både at komme rundt i byen og hurtigt videre mod omkringliggende byer – helt uden at sidde fast i midtbyens trafik.
Ønsker du et hjem med kvalitet og usædvanligt mange muligheder, så kontakt os allerede i dag for en fremvisning.
Økonomisk overblik
Skal du også sælge?
Bestil salgsvurdering
Kontakt
Lasse Christensen
Om kommunen
INDBYGGERE
GRUNDSKYLD
KOMMUNESKAT
SKOLER
BØRNEPASNING
Hvor langt er der til nærmeste?
Se hvor lang tid der er mellem denne bolig og en anden adresse