Charmerende byhus med atelier midt i Nykøbing F
På hjørnet af Holchsgade og Kongensgade, på Holchsgade 2, finder du et flot byhus fra 1901, som emmer af charme og historie, men som samtidig fremstår flot moderniseret og indflytningsklart. Ejendommen er en selvstændig bolig med et lille mellemrum til nabohuset på den ene side, mens der til den anden side er frit, så huset har karakter af både hjørneejendom og rækkehus.
Placeringen er helt central i Nykøbing Falster, kun få minutters gang fra byens hyggelige gågade, butikker, caféer, indkøbsmuligheder og kulturtilbud. Der er kort afstand til skole, daginstitutioner og stationen, hvilket gør huset ideelt for både børnefamilier og pendlere. Desuden ligger rekreative områder som “Evigheden” tæt på, hvor man kan nyde naturen og roen ved Guldborgsund – en perfekt kontrast til byens pulserende liv.
Huset fremstår med pudset facade, tegltag og smukke stafferinger rundt om vinduerne, som vidner om husets oprindelse. Indvendigt er boligen moderniseret i en lys og tidssvarende stil med fine detaljer. Her er flotte gulve, lyse rum og masser af naturligt lysindfald.
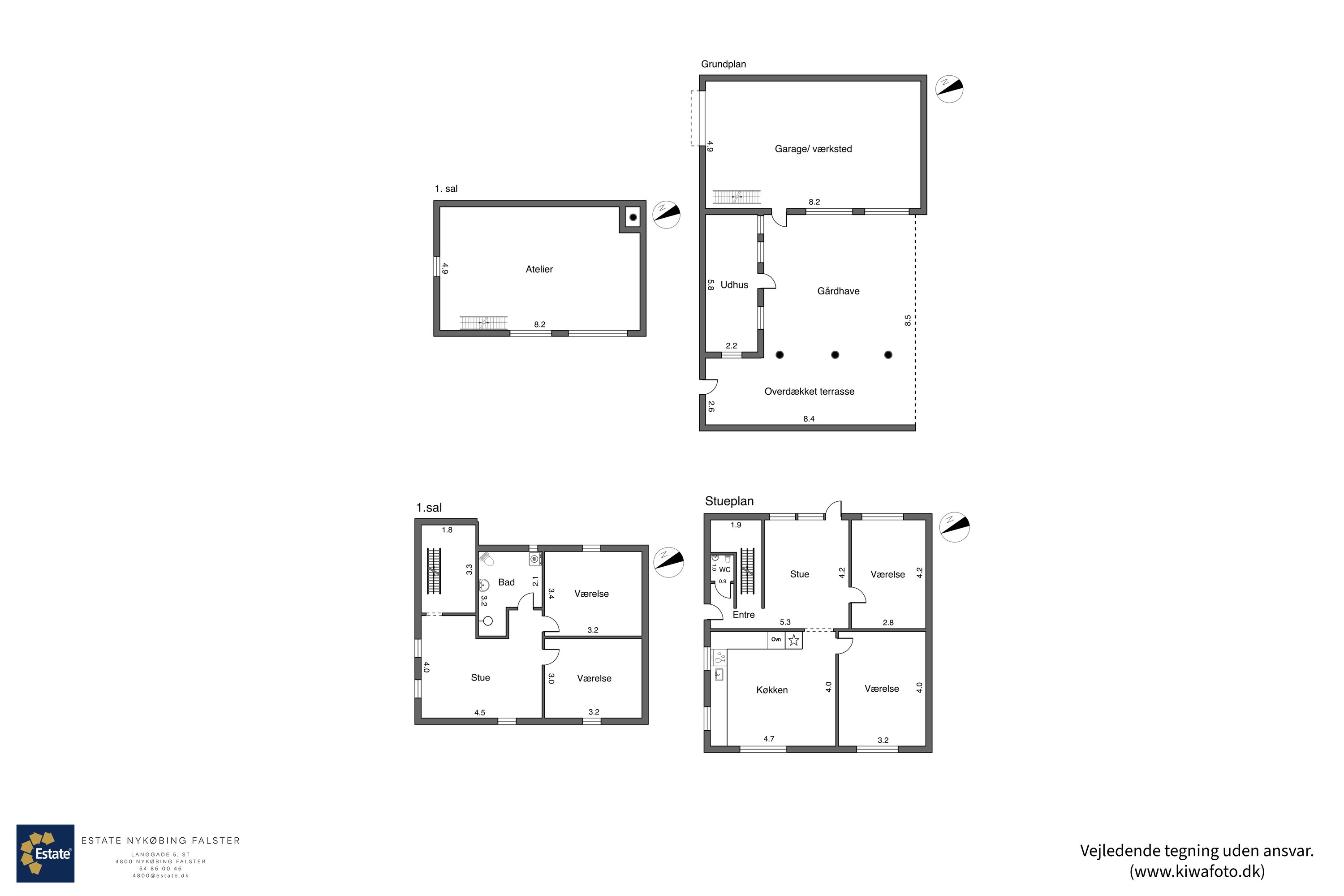
Indretningen er praktisk og rummelig: I stueetagen finder du en entré med trappeopgang og toilet, en hyggelig stue, et flot lyst køkken og to værelser. På førstesalen er der et trapperum, yderligere en stue, to værelser samt et badeværelse. Boligen er indrettet med både funktionalitet og atmosfære for øje, så her er plads til hele familien.
Udenfor byder en hyggelig, privat gårdhave på fred og ro midt i byen. Her finder du en overdækket terrasse, som kan forlænge sommeraftenerne, samt adgang til både et praktisk skur/værksted og et charmerende atelier, hvor kreative ideer kan føres ud i livet.
Alt i alt en sjælden mulighed for at få en lys og moderne bolig med central placering, kombineret med ro, privatliv og unikke rammer. Kom ud og oplev denne skønne byoase.
Økonomisk overblik
Skal du også sælge?
Bestil salgsvurdering
Kontakt
Thomas Kruse
Om kommunen
INDBYGGERE
GRUNDSKYLD
KOMMUNESKAT
SKOLER
BØRNEPASNING
Hvor langt er der til nærmeste?
Se hvor lang tid der er mellem denne bolig og en anden adresse