Renoveret hus, stort værksted, atelier og central beliggenhed - Her er det hele samlet!
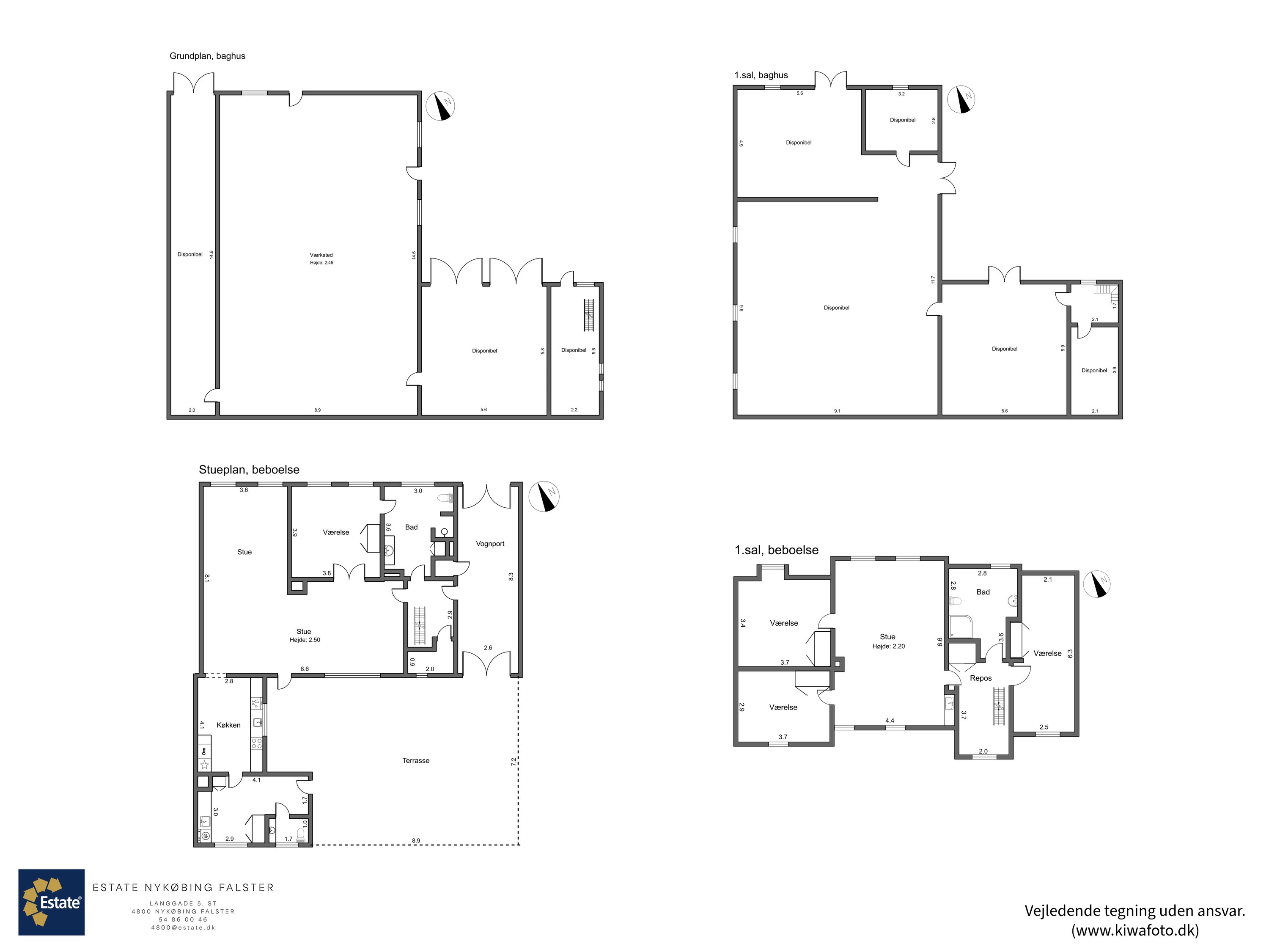
På Nørregade 8 finder du et charmerende og rummeligt byhus, der kombinerer historie, atmosfære og moderne komfort. Huset er opført i 1876 og rummer hele 225 m² fordelt på to plan. Igennem årene er det renoveret og moderniseret, så det i dag fremstår velholdt og indflytningsklart, men stadig med fine træk fra sin oprindelse.
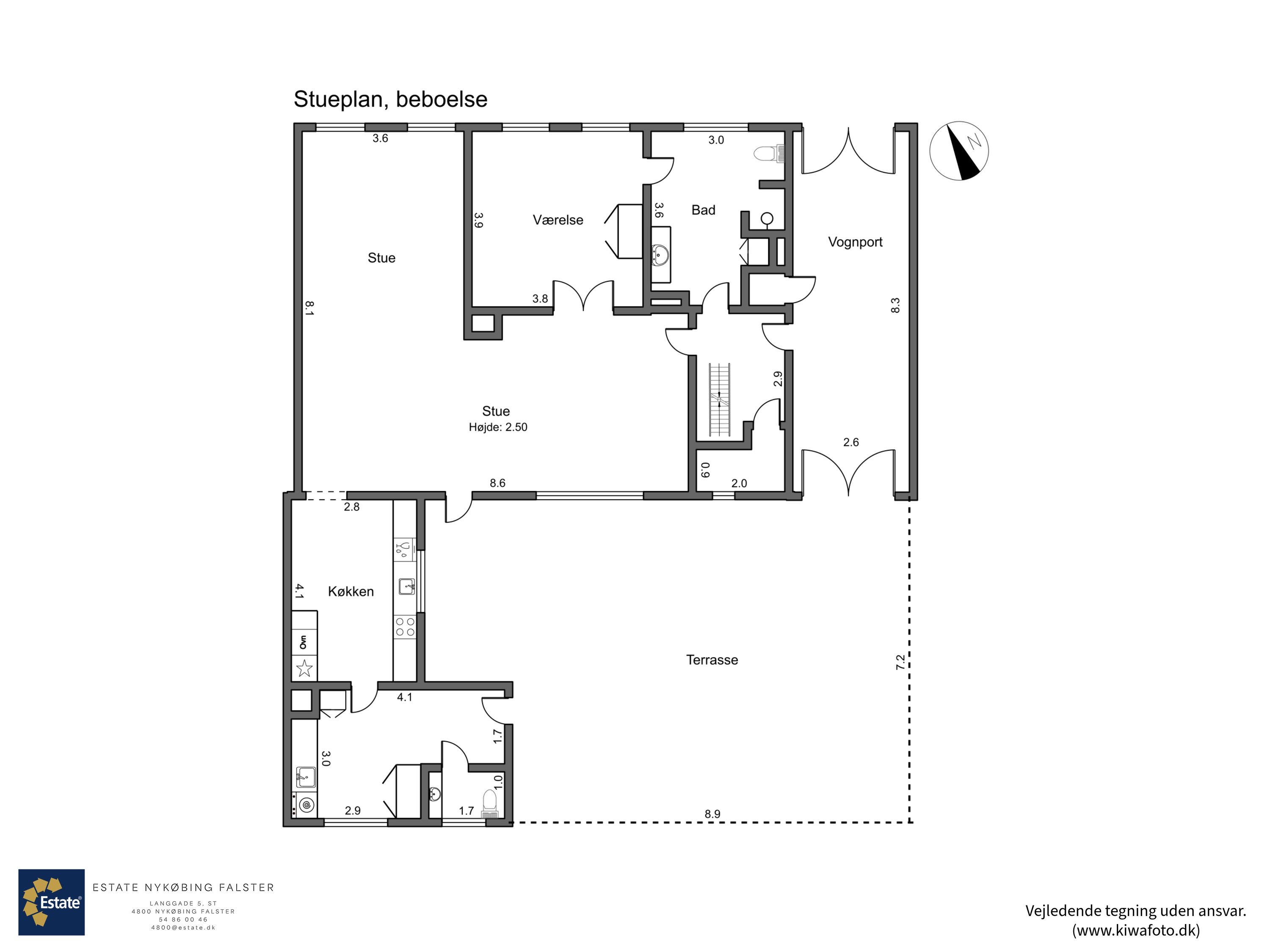
Ejendommen er opført i gule mursten med klassisk tegltag, hvide dannebrogsvinduer, karnap på første sal og kvistvinduer, der giver ekstra lys og charme. Vinderne mod gården er udskiftet og ligeledes er der gulvvarme i stueetagen. Facaden fremstår som et ægte byhus, hvor bygningen hænger sammen med nabohusene, men stadig er sin egen.
Bag huset åbenbarer der sig en stor, flisebelagt gårdhave med overdækket terrasse og masser af plads til både afslapning og socialt samvær. Her ligger også udhus og en tidligere staldbygning i to etager, der rummer enorme muligheder – hvad enten drømmen er værksted, gildesal, hobbyrum eller noget helt andet.
Indvendigt fremstår boligen lys og æstetisk, med hvide vægge, lofter og lyse trægulve. Planløsningen er funktionel og giver en skøn balance mellem åbne fællesrum og private værelser. I stueplan er der en indbydende entré, en stor stue med udgang til gårdhaven, et værelse, et lyst badeværelse, et rummeligt køkken og et bryggers med endnu et toilet. På første sal finder du repos, endnu en stue, tre gode værelser og et badeværelse. Flere indbyggede skabe og opbevaringsrum giver en praktisk hverdag.
Beliggenheden midt i Nykøbing by er ideel – her er du tæt på både indkøb, skoler, ungdomsuddannelser, og tog til Sjælland og København, kultur og byliv, men samtidig med at du kan trække dig tilbage til din egen private oase bag huset. Der er omkring 5 min gang op til stationen, hvor toget til København går direkte og kun med 4 stop.
Kom ud og oplev denne unikke bolig, hvor historien møder nutidens behov – et hjem fyldt med muligheder.
Økonomisk overblik
Skal du også sælge?
Bestil salgsvurdering
Om kommunen
INDBYGGERE
GRUNDSKYLD
KOMMUNESKAT
SKOLER
BØRNEPASNING
Hvor langt er der til nærmeste?
Se hvor lang tid der er mellem denne bolig og en anden adresse