Velindrettet og indflytningsklar villa med dejlig have i Egebjerg - Huset har netop fået helt nye vinduer og døre
Mange gode detaljer præger denne villa i Egebjerg, hvor den velholdte bolig suppleres af en skøn have. Indretningen er lys, boligen er indflytningsklar, og med fire værelser er huset især målrettet børnefamilien. I får desuden kort afstand til pasningsmuligheder og til Skovvejen Skole, mens de grønne områder er talrige – fra Egebjerg Naturpark til Hareskoven.
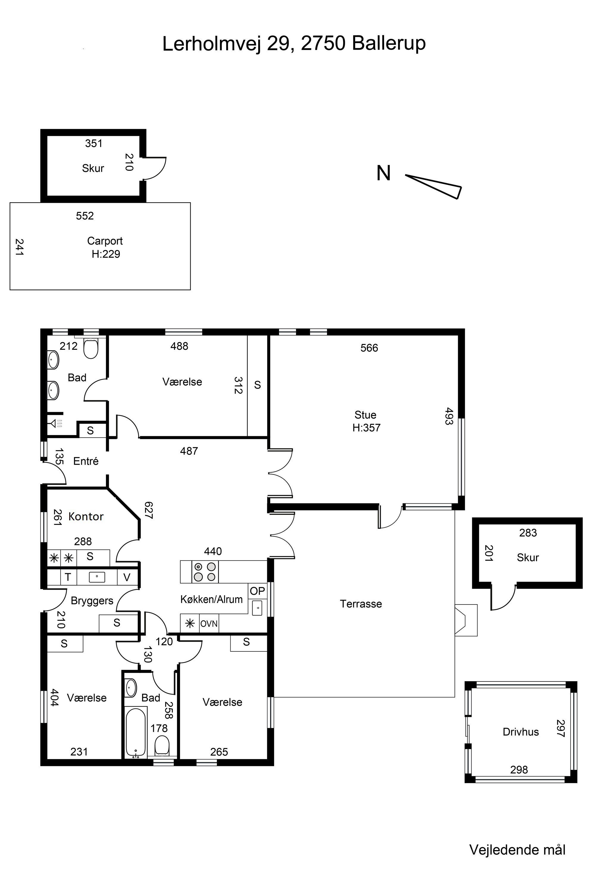
Umiddelbart er det ikke til at se, at huset er fra 1997. Den pæne etplansvilla fremstår nemlig i flot form, og det praktiske valmtag bidrager til et godt helhedsindtryk. Den tilhørende carport har ligeledes valmtag for at matche udtrykket, og med et drivhus fra 2018 får I også et hyggeligt sted til tidlige tomater, hvis ikke det skal dublere som en decideret havestue til de første, tiltrængte forårsdage. Haven er i sig selv en skøn og privat oase, hvor den store, sydvendte terrasse ligger godt i krogen af huset.
Indenfor er de 142 m2 fint udnyttet. Dele af inventaret er opdateret, så boligen fremstår tidssvarende, og i stuen er detaljer som loft til kip og et stort, sydvendt vinduesparti med til at understrege den behagelige og lette stemning. Både stuen og det tilstødende køkken-alrum har egen forbindelse til havens terrasse, og køkkenet er flot udført med hvide fyldningselementer og en elegant, sort bordplade. Her er det diskrete emfang en af de velvalgte detaljer, og det samme er trælamellerne ved halvmuren, som hjælper med at holde en behagelig akustik i opholdsrummet.
De fire værelser inkluderer et stort forældresoveværelse med eget badeværelse, og med mindre et navneskilt skal på døren, vil det mindste værelse være oplagt som hjemmekontor. Et ekstra badeværelse, en lille entré og et bryggers med separat indgang afrunder planløsningen.
Boligen kan sagtens stå alene, men det gør blot sagen bedre, at villaen ligger i et attraktivt område. Egebjerg har fundamentet på plads i forhold til fornødenheder, idrætstilbud og pendlervenlige distancer til resten af Storkøbenhavn, men omvendt er den omkringliggende natur med til at give lokalområdet sin helt egen fredelige profil.
OBS! Huset har netop fået helt nye vinduer og døre
Kontakt os for en fremvisning.
Økonomisk overblik
Skal du også sælge?
Bestil salgsvurdering
Kontakt
Victor Lykke Methmann
Om kommunen
INDBYGGERE
GRUNDSKYLD
KOMMUNESKAT
SKOLER
BØRNEPASNING
Hvor langt er der til nærmeste?
Se hvor lang tid der er mellem denne bolig og en anden adresse