Eksklusiv og indflytningsklar bolig i hjertet af Skovshoved – tæt på Øresund, SIF og skole
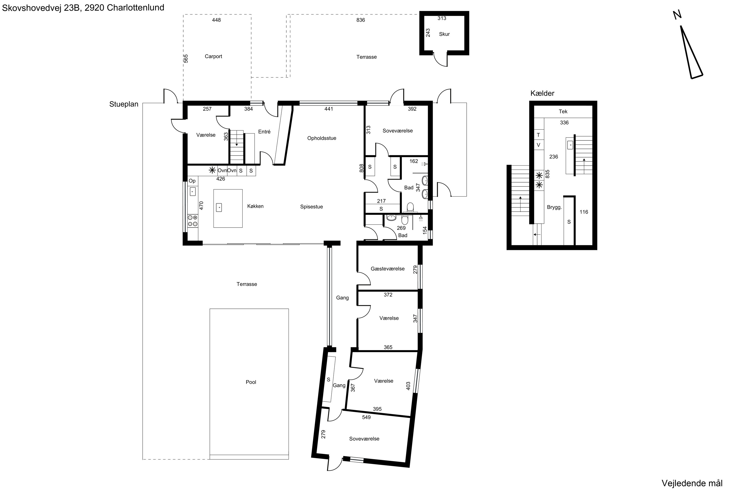
På en tilbagetrukket og sjældent udbudt beliggenhed i Skovshoved finder du denne unikke og gennemførte bolig på 258 etagemeter, som forener moderne komfort med eksklusivt materialevalg og gennemtænkte løsninger – både inde og ude. Her bor du tæt på Øresund, Skovshoved IF, Halgodt, skole og naturskønne omgivelser – alt sammen i gåafstand.
Boligen er fuldt energioptimeret med luft-til-vand-varmepumpe og gulvvarme i alle rum, og fremstår 100% indflytningsklar med fokus på komfort, funktionalitet og æstetik. Poolen er fuldautomatiseret og opvarmet saltvands-pool og der er desuden installeret BWT og varmegenvindingsanlæg i ejendommen.
Det åbne køkken/alrum og de store opholdsrum byder på et imponerende flow mellem inde- og udeliv via store foldedøre, der åbner op til lækre terrassemiljøer udført i bl.a. Ipé træ og poolområde – ideelt til både hverdag og gæstfrihed i topklasse.
Underetagen har egen indgang og rummer både praktisk bryggers, masser af opbevaringsplads og et eksklusivt vinrum med separat varmekreds. Planløsningen er familievenlig med flere gode soveværelser, som kan rumme selv den store familie.
Alt er udført i eksklusive materialer med stor sans for detaljen – her får du en bolig i særklasse i et af Danmarks mest eftertragtede områder.
Økonomisk overblik
Skal du også sælge?
Bestil salgsvurdering
Kontakt
Peter Holm
Om kommunen
INDBYGGERE
GRUNDSKYLD
KOMMUNESKAT
SKOLER
BØRNEPASNING
Hvor langt er der til nærmeste?
Se hvor lang tid der er mellem denne bolig og en anden adresse