Fin ejendom med mange muligheder - 3 boenheder og butik
Ejendom med mange muligheder for egen bolig, flerfamilies sommerhus, udlejning, sommerbutik mv. Ejendommen består af et hovedhus med ældre bolig og galleri samt 2 gode sommerboliger. Ejendommen har en skøn fredfyldt placering, men er synlig fra hovedvejen, hvilket gør den ideel i mange sammenhæng.
Ejendommen har en dejlig stor grund på hele 20.843 m2 med mange skønne kroge, terrasser og flot beplantning, og mod vest findes en dejlig have med frugttræer og bærbuske, og et pænt stykke skov. Beliggenheden er rigtig god mellem Vesterø og Byrum og synlig fra hovedvejen. Her er tæt til øens gratis busforbindelse, således man nemt kan besøge Vesterø med færge, indkøb, fiskehandler mv. og Byrum med slagter, skole, indkøbsmulighed mv. Ejendommen er oplagt til gode projekter eller som en god sommervirksomhed.
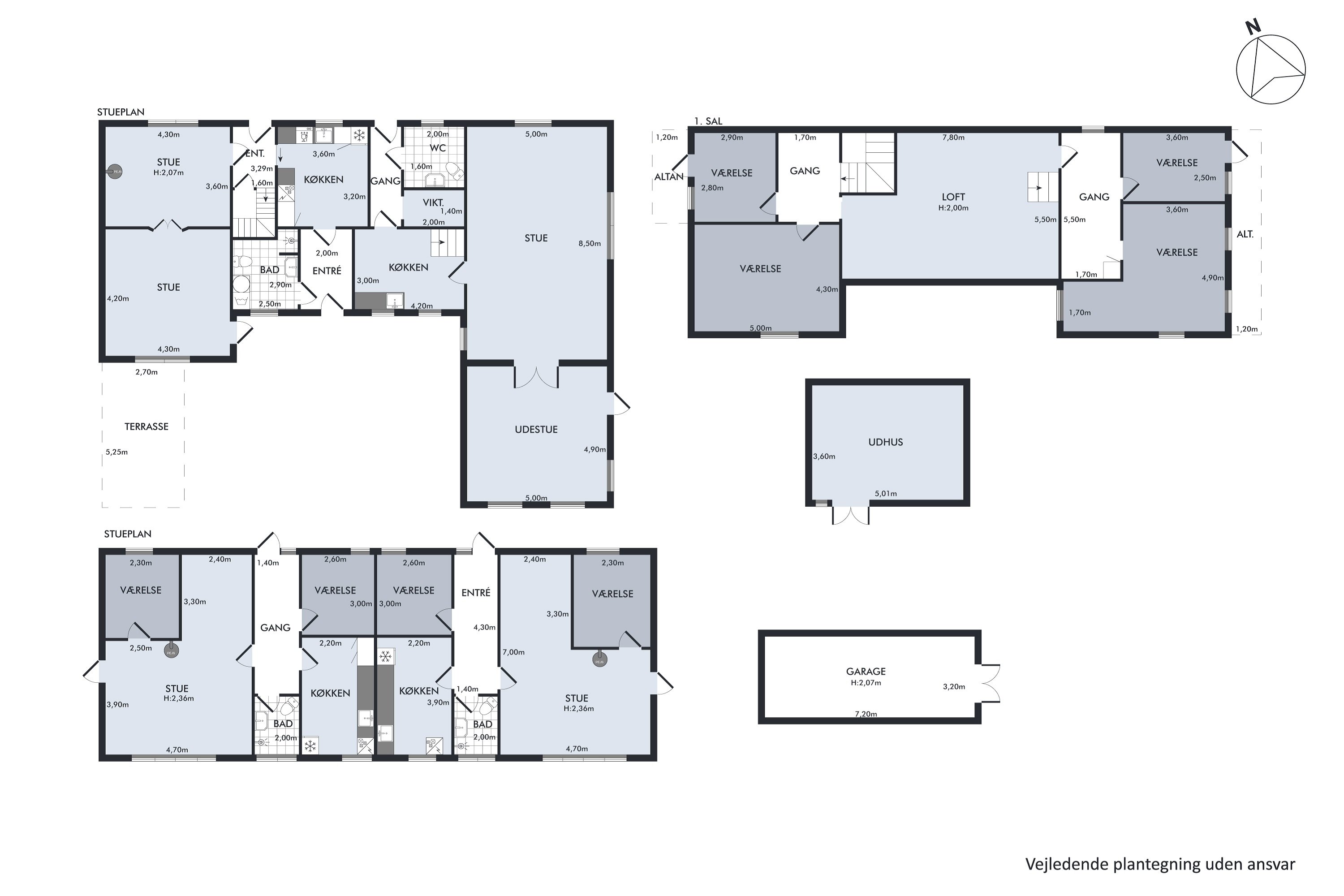
Hovedhuset er pt. opdelt i en boligdel på 137m2 samt en erhvervsdel på 88m2 som tidligere har været anvendt til galleri og butik. Huset bolig består af entre, badeværelse, stort ældre køkken, forgang, spisestue med brændeovn samt stue med udgang til sydvendt terrasse. 1. salen indeholder repos, stort værelse samt værelse med udgang til lille altan. I erhvervsdelen er der gode anvendelige rum med en udestue, stort butikslokale, thekøkken, entre, toilet og lager. 1 salen har et repos, værelse med udgang til terrasse samt et hjørneværelse.
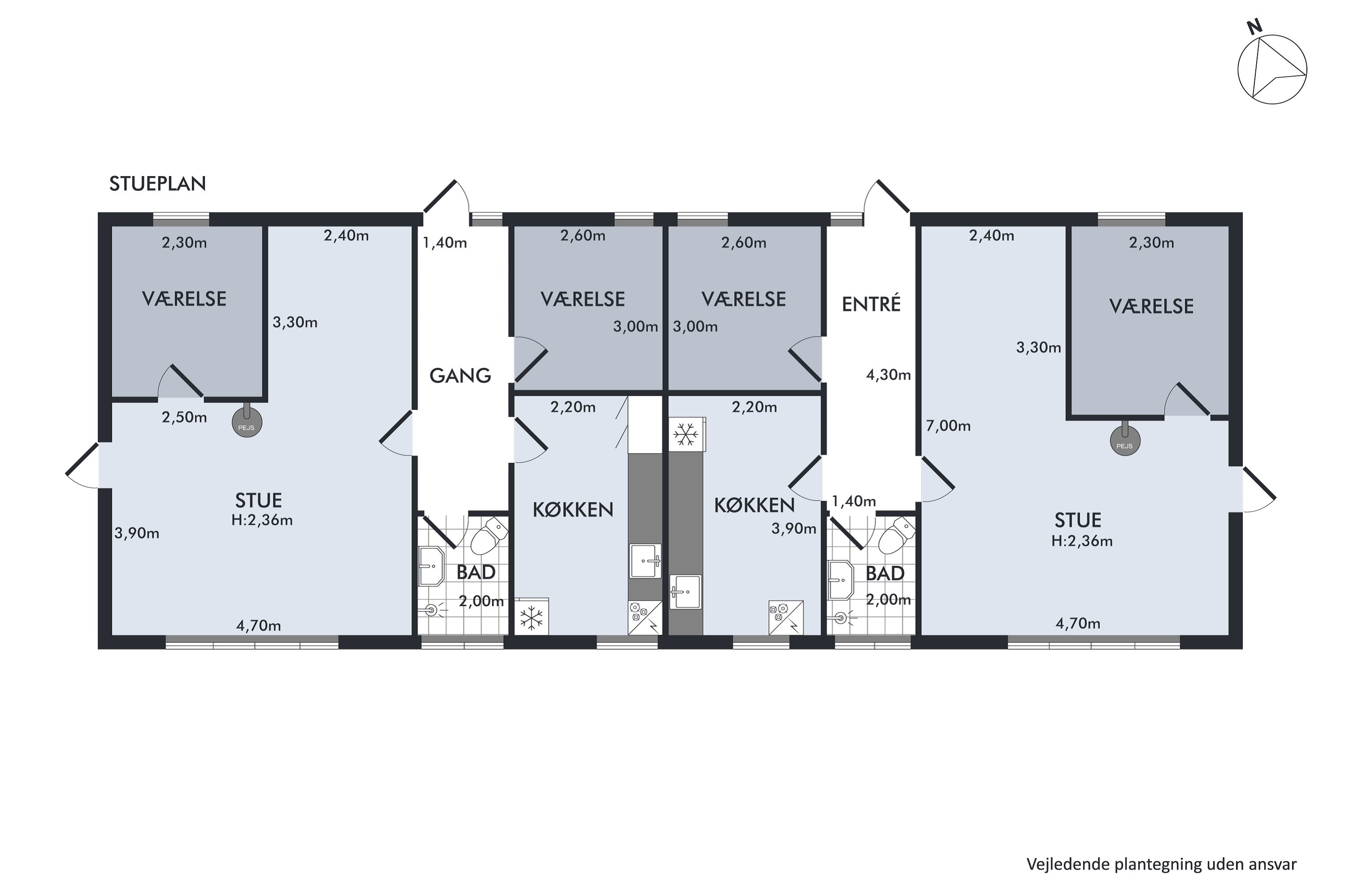
Hertil kommer yderligere de 2 fine sommerboliger i baghaven på hver 73m2. Boligerne er identisk og indeholder hver især en entre, stort soveværelse, ældre, men pænt køkken i 2B og nyere Ikeakøkken i 2C. Badeværelse med brus, stor lys stue med brændeovn og udgang til haven samt endnu et soveværelse, samt et lille teknikrum. Der er desuden en fritstående overdækket terrasse til hver lejlighed. Ejer har selv stået for udlejning af disse lejligheder med en lejeindtægt på ca. 30.000 kr. Der er registreret nedsat elafgift på ejendommen, fibernet i lejlighederne og møblement medfølger med få undtagelser.
Der er desuden et brændeskur, et ældre udhus, endnu en overdækket terrasse samt værksted.
Som husejer på Læsø tilbyder Læsø Kommune mulighed for Ø-kort, der giver adgang til rabatter på færgebilletten. Se mere info herom på Læsø Færgens hjemmeside.
Huset kan anvendes som fritidshus, da der ikke er bopælspligt for helårshusene på Læsø.
Har du spørgsmål eller ønsker du en fremvisning er du velkommen til at kontakte os på telefonnummer på 9665 8080.
Økonomisk overblik
Skal du også sælge?
Bestil salgsvurdering
Kontakt
Peter-Christian Pedersen
Om kommunen
INDBYGGERE
GRUNDSKYLD
KOMMUNESKAT
SKOLER
BØRNEPASNING
Hvor langt er der til nærmeste?
Se hvor lang tid der er mellem denne bolig og en anden adresse